£500,000
Land for saleOvingham, Prudhoe, Northumberland NE42
About this property
Opportunity
Bradley Hall is delighted to be appointed by Northumberland Estates Limited to market this fully affordable residential development opportunity at Land off Piper Road, Ovingham, Prudhoe, Northumberland, NE42 6AY.
Location
The subject site is situated off Piper Road in Ovingham. Located 1km away from the Ovingham village centre and outside the Ovingham Conservation area. Ovingham village centre has amenities including Londis, White Swan and St Mary The Virgin Church.
Ovingham is a village in south Northumberland which neighbours Prudhoe, Wylam and Ovington.
Road links to Ovingham include the A69 between Newcastle upon Tyne and Carlisle which is 1.8 miles away and the A695 which links between Gateshead and Hexham is just 0.9 miles away.
The site benefits from being 0.8 miles from Prudhoe Train Station which provides direct access to Newcastle upon Tyne city centre via Wylam and Metro Centre to the east and Carlisle via Hexham and Haydon Bridge to the west.
Description
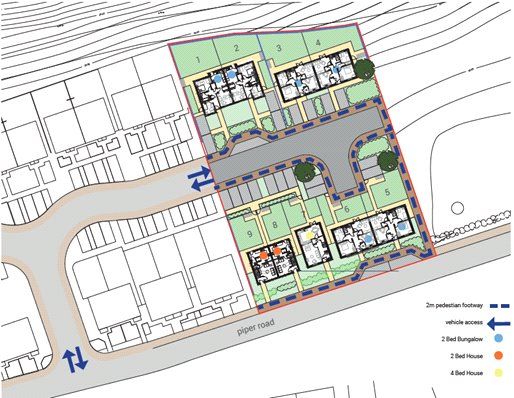
The rectangular site is currently used as an agricultural field and the site area is approximately 0.31 hectares.
The proposal is for a development of 100% affordable housing. 9 houses that consist of 6 no. 2-bed bungalows, 2 no. 2 bed 2-storey and 1 no. 4-bed 2 storey units. The house types have been developed in order to create a viable development that meets local housing needs.
Planning permission
Planning permission has been approved for the development of 9no residential dwellings, including associated access, car parking, landscaping. The site will provide 100% affordable housing.
A copy of the planning permission, S106 approval and related reports is available from the agent.
While the scheme design could be amended (which our Planning & Development Team would be delighted to assist with) offers are invited on an unconditional basis, based on the current planning permission.
Further information can be sought at Northumberland County Council’s planning portal using reference 20/03425/ful.
Services
Interested parties should make their own enquires of the utility companies to confirm availability and capacity.
Tenure
The site is sold freehold with vacant possession.
Terms
We are instructed to seek offers for the site. Offers must be submitted in writing to the sole agent and state:
• The proposed purchase price
• Proof funding is available for the purchase
• Details of the proposed residential scheme
All offers are to be made to Bradley Hall exclusive of VAT and, where silent, offers will be deemed net of VAT.
Offers must be submitted to our office at 1 Hood Street, Newcastle upon Tyne, NE1 6JQ. A closing date may be set subject to interest levels.
The client is not obliged to accept the highest or indeed any offer.
Each party is to bear their own legal costs involved in the transaction.
Viewing & further information
For all enquiries and viewing arrangements please contact Bradley Hall.
Bradley Hall is delighted to be appointed by Northumberland Estates Limited to market this fully affordable residential development opportunity at Land off Piper Road, Ovingham, Prudhoe, Northumberland, NE42 6AY.
Location
The subject site is situated off Piper Road in Ovingham. Located 1km away from the Ovingham village centre and outside the Ovingham Conservation area. Ovingham village centre has amenities including Londis, White Swan and St Mary The Virgin Church.
Ovingham is a village in south Northumberland which neighbours Prudhoe, Wylam and Ovington.
Road links to Ovingham include the A69 between Newcastle upon Tyne and Carlisle which is 1.8 miles away and the A695 which links between Gateshead and Hexham is just 0.9 miles away.
The site benefits from being 0.8 miles from Prudhoe Train Station which provides direct access to Newcastle upon Tyne city centre via Wylam and Metro Centre to the east and Carlisle via Hexham and Haydon Bridge to the west.
Description
The rectangular site is currently used as an agricultural field and the site area is approximately 0.31 hectares.
The proposal is for a development of 100% affordable housing. 9 houses that consist of 6 no. 2-bed bungalows, 2 no. 2 bed 2-storey and 1 no. 4-bed 2 storey units. The house types have been developed in order to create a viable development that meets local housing needs.
Planning permission
Planning permission has been approved for the development of 9no residential dwellings, including associated access, car parking, landscaping. The site will provide 100% affordable housing.
A copy of the planning permission, S106 approval and related reports is available from the agent.
While the scheme design could be amended (which our Planning & Development Team would be delighted to assist with) offers are invited on an unconditional basis, based on the current planning permission.
Further information can be sought at Northumberland County Council’s planning portal using reference 20/03425/ful.
Services
Interested parties should make their own enquires of the utility companies to confirm availability and capacity.
Tenure
The site is sold freehold with vacant possession.
Terms
We are instructed to seek offers for the site. Offers must be submitted in writing to the sole agent and state:
• The proposed purchase price
• Proof funding is available for the purchase
• Details of the proposed residential scheme
All offers are to be made to Bradley Hall exclusive of VAT and, where silent, offers will be deemed net of VAT.
Offers must be submitted to our office at 1 Hood Street, Newcastle upon Tyne, NE1 6JQ. A closing date may be set subject to interest levels.
The client is not obliged to accept the highest or indeed any offer.
Each party is to bear their own legal costs involved in the transaction.
Viewing & further information
For all enquiries and viewing arrangements please contact Bradley Hall.
Mortgage calculator
Monthly repayment
£2,501 per month
Whole of market comparison
70+ lenders and 10,000+ products
The monthly repayments provided are estimates and should be used as a guide only. The actual amount you can borrow will depend on your personal financial situation and subject to a full application. For a more precise estimate, please use the Mojo mortgage calculator. Your home or property may be repossessed if you do not keep up repayments on your mortgage.



.png)