Non quoting
Land for saleFormer Bunny Brickworks, Loughborough Road, Bunny NG11
650,000 sq. ft
About this property
A prime redevelopment opportunity forming part of a larger site which also has consent for employment development
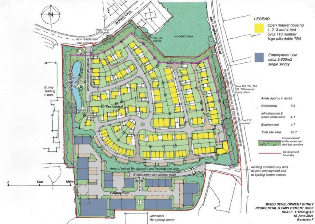
The former Bunny Brickworks site extends to approximately 16 acres in total
Outline planning consent has been granted for both residential and employment use
We are instructed to sell the residential element of the consented site which has the capability to provide up to 110 residential dwellings
It is envisaged that the employment component of the site will be sold in due course as a second phase sale
Bunny is a popular residential village which is located 8.5 miles south of Nottingham and 7.5 miles north of Loughborough and accessed from the A60
The former Bunny Brickworks site extends to approximately 16 acres in total
Outline planning consent has been granted for both residential and employment use
We are instructed to sell the residential element of the consented site which has the capability to provide up to 110 residential dwellings
It is envisaged that the employment component of the site will be sold in due course as a second phase sale
Bunny is a popular residential village which is located 8.5 miles south of Nottingham and 7.5 miles north of Loughborough and accessed from the A60


.png)