Sale by tender
Land for sale15 Market Place, Barton Upon Humber, 15 Market Place, Barton-Upon-Humber DN18
4,232 sq. ft
Freehold
About this property
For Sale by Auction - 26 March 2026
Prominent location in heart of the town centre
Extensive Grade II Listed building
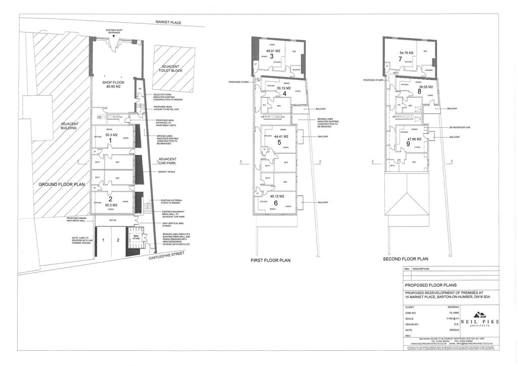
Planning and Listed Building consent granted for redevelopment to include shop and 9 apartments
Car parking opposite and adjacent
Freehold
Guide Price £150,000 +
Description
The property comprises a Grade II Listed Building dating from the early to mid 19th Century and being of three storey construction to the main part of the property with single storey off shoot to the rear. The ground floor provides former retail and storage space and the upper floors have historically been used for residential purposes. The building is of traditional brick construction with the main part of the property having a pitched tile roof. There is a small enclosed garden area to the rear of the property.
Planning and Listed Building consents have been granted to demolish the existing building to the rear and construction a two / two and a half storey extension with associated internal and external alterations to create 9 apartments. A ground floor retail unit will be retained to the front of the property.
Location
The property occupies a prominent position on the south side of Market Place. This forms part of the A1077 which is the main road running through the centre of the town. This is a commercial area, close to Co-op convenience store, but has a mixed range of occupiers including Banking Hub, retail and leisure uses. Market Place is situated close to the main retailing areas of George Street and King Street. Parking is available within Market Place.
The property comprises a Grade II Listed Building dating from the early to mid 19th Century and being of three storey construction to the main part of the property with single storey off shoot to the rear. The ground floor provides former retail and storage space and the upper floors have historically been used for residential purposes. The building is of traditional brick construction with the main part of the property having a pitched tile roof. There is a small enclosed garden area to the rear of the property.
Planning and Listed Building consents have been granted to demolish the existing building to the rear and construction a two / two and a half storey extension with associated internal and external alterations to create 9 apartments. A ground floor retail unit will be retained to the front of the property.
Location
The property occupies a prominent position on the south side of Market Place. This forms part of the A1077 which is the main road running through the centre of the town. This is a commercial area, close to Co-op convenience store, but has a mixed range of occupiers including Banking Hub, retail and leisure uses. Market Place is situated close to the main retailing areas of George Street and King Street. Parking is available within Market Place.
Mortgage calculator
Monthly repayment
£750 per month
Whole of market comparison
70+ lenders and 10,000+ products
The monthly repayments provided are estimates and should be used as a guide only. The actual amount you can borrow will depend on your personal financial situation and subject to a full application. For a more precise estimate, please use the Mojo mortgage calculator. Your home or property may be repossessed if you do not keep up repayments on your mortgage.



.png)