£650,000
(£291.74/sq. ft)
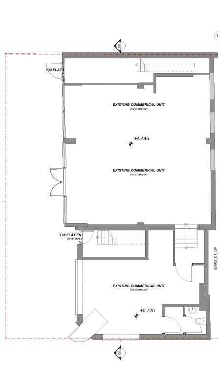
Retail premises for sale134-138 Kingsley Park Terrace, 134-138 Kingsley Park Terrace, Northampton NN2
2,228 sq. ft
Freehold
About this property
Comprising of 2 x retail units and 2 x flats above (1 x 1 bed and 1 x 2 bed)
Recently redeveloped
Retail units will be in shell condition
Of interest to owner occupiers and investors
Popular commercial and residential location
Description
The property comprises two retail units on the ground floor and 2 residential flats above, all of which have undergone substantial refurbishment/redevelopment. The ground floor will comprise one double-fronted mid-terrace retail unit and one corner retail unit. The retail units will be in a shell condition.
The upper floors will comprise of 1 x 1 bedroom flat and 1 x 2 bedroom flat (both separately accessed).
Location
The property is located on Kingsley Park Terrace, approximately one mile east of Northampton town centre and three miles east of junction 15 of the M1 motorway. The Kettering Road (A508) is the major arterial road linking Northampton and Kettering.
The area is characterised by a mixture of national and independent retailers. Local occupiers include Tesco Express, Pizza Hut, Betfred and a number of restaurants/pubs
The property comprises two retail units on the ground floor and 2 residential flats above, all of which have undergone substantial refurbishment/redevelopment. The ground floor will comprise one double-fronted mid-terrace retail unit and one corner retail unit. The retail units will be in a shell condition.
The upper floors will comprise of 1 x 1 bedroom flat and 1 x 2 bedroom flat (both separately accessed).
Location
The property is located on Kingsley Park Terrace, approximately one mile east of Northampton town centre and three miles east of junction 15 of the M1 motorway. The Kettering Road (A508) is the major arterial road linking Northampton and Kettering.
The area is characterised by a mixture of national and independent retailers. Local occupiers include Tesco Express, Pizza Hut, Betfred and a number of restaurants/pubs
Mortgage calculator
Monthly repayment
£3,251 per month
Whole of market comparison
70+ lenders and 10,000+ products
The monthly repayments provided are estimates and should be used as a guide only. The actual amount you can borrow will depend on your personal financial situation and subject to a full application. For a more precise estimate, please use the Mojo mortgage calculator. Your home or property may be repossessed if you do not keep up repayments on your mortgage.



.png)