£130,000
Land for saleLand Moreton Lane, Bishopstone HP17
Freehold
About this property
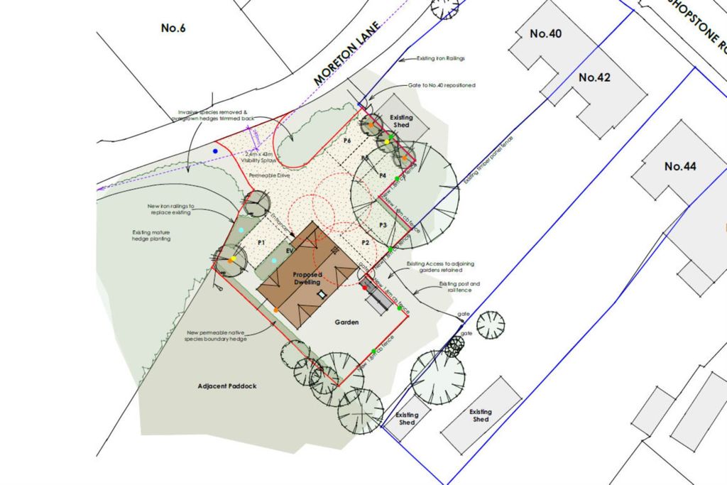
Building plot
Planning granted for detached house
Approximately 412sqm plot
Located between Aylesbury & Princes Risborough
Village location
Conservation area
Building plot - planning consent granted - A 412 square meter site with planning consent granted for a three bedroom detached house. The building plot is located in the Buckinghamshire village of Bishopstone between Aylesbury & Princes Risborough. Please note - Any buyer will be responsible for clearing the site & developing 4 additional parking spaces for the existing houses. Planning Application Reference - 24/00991/app
Notice
Please note we have not tested any apparatus, fixtures, fittings, or services. Interested parties must undertake their own investigation into the working order of these items. All measurements are approximate and photographs provided for guidance only.
Notice
Please note we have not tested any apparatus, fixtures, fittings, or services. Interested parties must undertake their own investigation into the working order of these items. All measurements are approximate and photographs provided for guidance only.
Mortgage calculator
Monthly repayment
£650 per month
Whole of market comparison
70+ lenders and 10,000+ products
The monthly repayments provided are estimates and should be used as a guide only. The actual amount you can borrow will depend on your personal financial situation and subject to a full application. For a more precise estimate, please use the Mojo mortgage calculator. Your home or property may be repossessed if you do not keep up repayments on your mortgage.



.png)