Guide price
£520,000
Property for saleFairlawn Road, Ramsgate CT12
Freehold
About this property
For Sale by Online Auction
Auction Date : 18 September 2025
Lot Number : 30
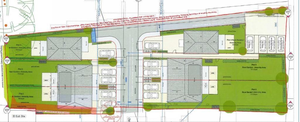
Land With Planning For Six Houses - Two Detached Houses And Four Semi-detached
Land with Planning
Freehold
*Guide Price : £520,000 plus + Fees
A freehold and vacant site located on the outskirts of the popular town of Broadstairs and close to the popular Westwood Cross shopping area with its range of amenities. The site is situated at the end of a dead-end road and sold with Planning Permission for six houses with four of these being semi-detached and two detached.
The proposed scheme has at least two parking spaces for each property, the semi-detached houses having four bedrooms with two en-suites and accommodation over three floors, the detached houses have three-bedrooms with one en-suite.
The site is nice and flat and we understand gas, water and electric are all close by. We have been informed by the sellers that Planning has been implemented and evidence to support this will be included as part of the legal pack.
Planning
Planning Permission was granted by Thanet District Council under reference F/th/21/1732, dated 13th April 2022, for erection of six dwellings (four four-bedroom dwellings and two three-bedroom dwellings) with associated access, parking and landscaping, subject to conditions.
A copy of the Planning Permission and accompanying documents may be downloaded from the Thanet District Council website, . Tel:
Proposed Accommodation
Plots 1,2,5 & 6 - Semi-Detached
Entrance porch, entrance hall, kitchen, living room, dining area and W.C.
First Floor
Main bedroom with en-suite bathroom with W.C., two further bedrooms and family bathroom with W.C.
Second Floor
Fourth bedroom with en-suite shower room with W.C.
Plots 3 & 4 - Detached
Entrance porch, entrance hall, kitchen, living room, dining area and W.C.
First Floor
Main bedroom with en-suite bathroom with W.C, two further bedrooms and bathroom with W.C.
Site Measurements
The site extends to 0.191 hectares (0.473 acres).
Auctioneer's Note
We have been informed by the seller that all the necessary Section 106 contributions have been paid.
Important:
All lots are sold subject to the Common Auction Conditions and Special Conditions of Sale (unless varied by the Sellers Solicitors), together with the Addendum, which will be available on the Auction Day.
Price Information
*Guides are provided as an indication of each Seller's minimum expectation. They are not necessarily figures at which a property will sell for and may change at any time prior to Auction. Unless stated otherwise, each Lot will be offered subject to a reserve (a figure below which the Auctioneer cannot sell the Lot during the Auction). We expect the reserve will be set within the guide range or no more than 10% above a single figure guide. Please check our website regularly at , or contact us on , in order to stay fully informed with the up-to-date information.
*An Administration fee and Other non-optional fees may also be payable in addition to the bid price. All lots are offered subject to the Common Auction Conditions and Special Conditions of Sale or Revised Special Conditions of Sale (as applicable) and may include the repayment of search and other fees and or costs payable by the buyer. All buyers are advised to inspect all available legal documentation prior to bidding and will be deemed to fully understand what they may be liable for if they are successful in purchasing. This should also include Stamp Duty, Land Registry fees and VAT which may become payable on completion in line with any property transaction, whether it is by auction or private treaty. If, as a buyer, you are in doubt you should seek advice from your own professional advisors. For more information on fees please go to
The proposed scheme has at least two parking spaces for each property, the semi-detached houses having four bedrooms with two en-suites and accommodation over three floors, the detached houses have three-bedrooms with one en-suite.
The site is nice and flat and we understand gas, water and electric are all close by. We have been informed by the sellers that Planning has been implemented and evidence to support this will be included as part of the legal pack.
Planning
Planning Permission was granted by Thanet District Council under reference F/th/21/1732, dated 13th April 2022, for erection of six dwellings (four four-bedroom dwellings and two three-bedroom dwellings) with associated access, parking and landscaping, subject to conditions.
A copy of the Planning Permission and accompanying documents may be downloaded from the Thanet District Council website, . Tel:
Proposed Accommodation
Plots 1,2,5 & 6 - Semi-Detached
Entrance porch, entrance hall, kitchen, living room, dining area and W.C.
First Floor
Main bedroom with en-suite bathroom with W.C., two further bedrooms and family bathroom with W.C.
Second Floor
Fourth bedroom with en-suite shower room with W.C.
Plots 3 & 4 - Detached
Entrance porch, entrance hall, kitchen, living room, dining area and W.C.
First Floor
Main bedroom with en-suite bathroom with W.C, two further bedrooms and bathroom with W.C.
Site Measurements
The site extends to 0.191 hectares (0.473 acres).
Auctioneer's Note
We have been informed by the seller that all the necessary Section 106 contributions have been paid.
Important:
All lots are sold subject to the Common Auction Conditions and Special Conditions of Sale (unless varied by the Sellers Solicitors), together with the Addendum, which will be available on the Auction Day.
Price Information
*Guides are provided as an indication of each Seller's minimum expectation. They are not necessarily figures at which a property will sell for and may change at any time prior to Auction. Unless stated otherwise, each Lot will be offered subject to a reserve (a figure below which the Auctioneer cannot sell the Lot during the Auction). We expect the reserve will be set within the guide range or no more than 10% above a single figure guide. Please check our website regularly at , or contact us on , in order to stay fully informed with the up-to-date information.
*An Administration fee and Other non-optional fees may also be payable in addition to the bid price. All lots are offered subject to the Common Auction Conditions and Special Conditions of Sale or Revised Special Conditions of Sale (as applicable) and may include the repayment of search and other fees and or costs payable by the buyer. All buyers are advised to inspect all available legal documentation prior to bidding and will be deemed to fully understand what they may be liable for if they are successful in purchasing. This should also include Stamp Duty, Land Registry fees and VAT which may become payable on completion in line with any property transaction, whether it is by auction or private treaty. If, as a buyer, you are in doubt you should seek advice from your own professional advisors. For more information on fees please go to



.png)