Guide price
£2,300,000
(£357.31/sq. ft)
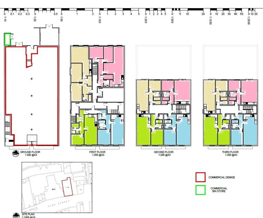
Block of flats for saleDrake House, 17A High Street, Gosport, Hampshire PO12
6,437 sq. ft
Freehold
About this property
12 newly refurbished apartments, let on one overriding lease to a registered care provider.
Centrally located on Gosport High Street
Guaranteed income for 5 years.
Location
The property is situated at the heart of Gosport centre, just west of the intersection of the pedestrian High Street and North Cross Street. High Street connects at each end to Gosport's circular access road, Mumby Road, which in turn leads to Gosport Marina and Ferry Port.
The town is accessed via the A32 Gosport Road from junction 11 of the M27. There is excellent access to Portsmouth, via the Harbour ferry which operates every 15 minutes (every 7.5 minutes at peak times) from Gosport Ferry Terminal (approximately 5 minutes walk from Royal Clarence Marina). The ferry journey time is four minutes to Portsmouth Harbour where there is a regular direct line train service to London Waterloo. Royal Clarence Marina benefits from 154 berths for all types of vessel. Southampton International Airport is within a 30 minute drive.
Description
We are delighted to offer this hands-off investment of twelve newly developed apartments for sale in Gosport. The block is fully let to a single registered care provider, offering guaranteed income for a term of 5 years. The block contains 12 apartments, plus residential lobby; 2 x 2-bed and 10x 1-bed.
Tenure Comments
We are seeking offers in excess of £2,300,000 (exclusive) for the freehold investment. This represents a net initial yield of 7.65% assuming purchasers costs of 6.34%.
The property is held in an spv and therefore It is anticipated that the sale will be treated as a togc.
Service Charge Information
The property runs a service charge to cover the repair, upkeep, cleaning and maintenance of the common areas and share structure. This is managed by the housing provider.
Planning
The property has planning for Class C.
VAT
We are advised that the property is not elected for VAT.
Legal Costs
Each party will be responsible for covering their own legal costs incurred in the transaction.
The property is situated at the heart of Gosport centre, just west of the intersection of the pedestrian High Street and North Cross Street. High Street connects at each end to Gosport's circular access road, Mumby Road, which in turn leads to Gosport Marina and Ferry Port.
The town is accessed via the A32 Gosport Road from junction 11 of the M27. There is excellent access to Portsmouth, via the Harbour ferry which operates every 15 minutes (every 7.5 minutes at peak times) from Gosport Ferry Terminal (approximately 5 minutes walk from Royal Clarence Marina). The ferry journey time is four minutes to Portsmouth Harbour where there is a regular direct line train service to London Waterloo. Royal Clarence Marina benefits from 154 berths for all types of vessel. Southampton International Airport is within a 30 minute drive.
Description
We are delighted to offer this hands-off investment of twelve newly developed apartments for sale in Gosport. The block is fully let to a single registered care provider, offering guaranteed income for a term of 5 years. The block contains 12 apartments, plus residential lobby; 2 x 2-bed and 10x 1-bed.
Tenure Comments
We are seeking offers in excess of £2,300,000 (exclusive) for the freehold investment. This represents a net initial yield of 7.65% assuming purchasers costs of 6.34%.
The property is held in an spv and therefore It is anticipated that the sale will be treated as a togc.
Service Charge Information
The property runs a service charge to cover the repair, upkeep, cleaning and maintenance of the common areas and share structure. This is managed by the housing provider.
Planning
The property has planning for Class C.
VAT
We are advised that the property is not elected for VAT.
Legal Costs
Each party will be responsible for covering their own legal costs incurred in the transaction.
Mortgage calculator
Monthly repayment
£11,505 per month
Whole of market comparison
70+ lenders and 10,000+ products
The monthly repayments provided are estimates and should be used as a guide only. The actual amount you can borrow will depend on your personal financial situation and subject to a full application. For a more precise estimate, please use the Mojo mortgage calculator. Your home or property may be repossessed if you do not keep up repayments on your mortgage.



.png)