Offers over
£520,000
(£59.69/sq. ft)
Property for sale469 Gorgie Road, Edinburgh EH11
8,712 sq. ft
Available immediately
Freehold
About this property
Desirable location opposite Saughton Park & The Water of Leith
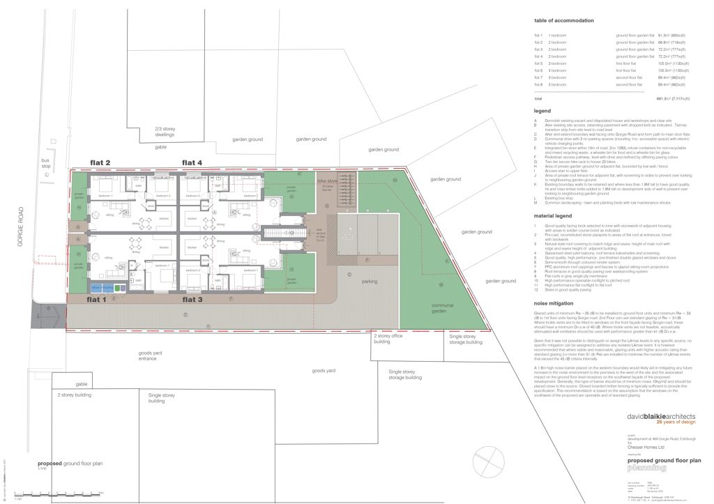
Detailed planning consent or 8 generously proportioned private residential apartments
Fully serviced site
Build warrant already granted
The site which extends to 0.2 acres is broadly rectangular in shape and was formerly used as a Blacksmiths together private owner's accommodation. The current owners have subsequently demolished the previous buildings (with completion certificate) leaving a cleared, ready to build residential development opportunity. Neighbouring the site to the east and south are established private housing whilst commercial uses accommodate the building to the west.
Mortgage calculator
Monthly repayment
£2,601 per month
Whole of market comparison
70+ lenders and 10,000+ products
The monthly repayments provided are estimates and should be used as a guide only. The actual amount you can borrow will depend on your personal financial situation and subject to a full application. For a more precise estimate, please use the Mojo mortgage calculator. Your home or property may be repossessed if you do not keep up repayments on your mortgage.



.png)