Offers over
£550,000
(£47.62/sq. ft)
Land for saleThe Gables, Priory Lane, Chelmsford CM3
11,550 sq. ft
Freehold
About this property
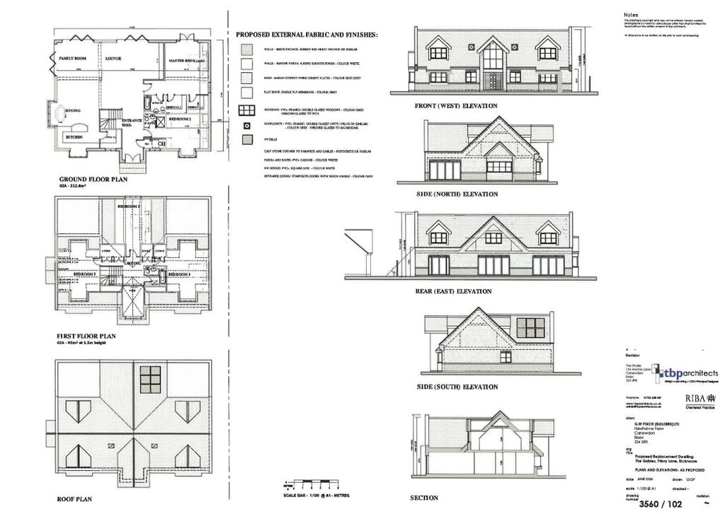
Planning permission for dwelling
Sought after location
Planning app/W1525/W/20/3262868
Offers in Excess of £550,000
Ideal development site
Description
It is a rendered and painted chalet bungalow, It has a large footprint, as well as a detached garage, but it is sited on a substantial plot and has the benefit of private garden areas behind fences and well grown hedges. It is currently vacant, the property needs refurbishment, and we feel it could be refurbished, alternatively Planning permission has been granted to demolish the existing property and build a replacement development app/W1525/W/20/3262868.
Location
The Gables’ stands in a prominent location at the junction of Priory Lane and Hill View, with access from both.
Viewings
Strictly by prior appointment via landlords appointed agents Ayers & Cruiks
Price
Offers in excess of £550,000
It is a rendered and painted chalet bungalow, It has a large footprint, as well as a detached garage, but it is sited on a substantial plot and has the benefit of private garden areas behind fences and well grown hedges. It is currently vacant, the property needs refurbishment, and we feel it could be refurbished, alternatively Planning permission has been granted to demolish the existing property and build a replacement development app/W1525/W/20/3262868.
Location
The Gables’ stands in a prominent location at the junction of Priory Lane and Hill View, with access from both.
Viewings
Strictly by prior appointment via landlords appointed agents Ayers & Cruiks
Price
Offers in excess of £550,000
Mortgage calculator
Monthly repayment
£2,751 per month
Whole of market comparison
70+ lenders and 10,000+ products
The monthly repayments provided are estimates and should be used as a guide only. The actual amount you can borrow will depend on your personal financial situation and subject to a full application. For a more precise estimate, please use the Mojo mortgage calculator. Your home or property may be repossessed if you do not keep up repayments on your mortgage.



.png)