Non quoting
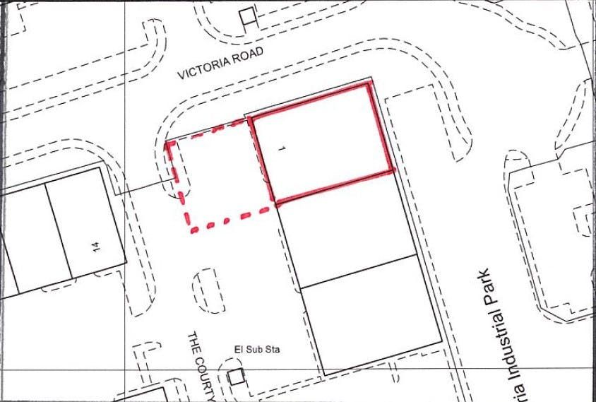
Industrial for saleUnit 1, The Courtyards, Victoria Park, Leeds LS14
6,647 sq. ft
EPC Rating: C
Freehold
About this property
Trade counter
High quality office
Clear working height of 6m
Estimated Rates Payable: £15593.75
Description
The property is an end terrace unit of steel frame construction with brick and metal clad elevations with both pedestrian access and loading door. The property benefits from:
· Heating and lighting
· High quality office with excellent fenestration
· Trade counter
· Clear working height of 6m
· Excellent parking and loading areas
· The property stands in a secure compound
Location
The Courtyards at Victoria Park is a well established industrial location situated to the north east of Leeds City Centre benefitting from excellent access to the new East Leeds Radial route, the motorways, the City Centre and the Greater Leeds/West Yorkshire conurbation as a whole. There are plenty of good local amenities in the area.
Terms
The property is available to let for a term to be agreed.
Our Clients will consider a sale of the property.
The property is an end terrace unit of steel frame construction with brick and metal clad elevations with both pedestrian access and loading door. The property benefits from:
· Heating and lighting
· High quality office with excellent fenestration
· Trade counter
· Clear working height of 6m
· Excellent parking and loading areas
· The property stands in a secure compound
Location
The Courtyards at Victoria Park is a well established industrial location situated to the north east of Leeds City Centre benefitting from excellent access to the new East Leeds Radial route, the motorways, the City Centre and the Greater Leeds/West Yorkshire conurbation as a whole. There are plenty of good local amenities in the area.
Terms
The property is available to let for a term to be agreed.
Our Clients will consider a sale of the property.


.png)