From
£165,000
(£165.00/sq. ft)
Industrial for saleChatsworth Business Park, Scarborough YO11
From 1,000 - 12,000 sq. ft
About this property
Ideal for small and growing businesses
Suitable for sipp/ssas purchase
Warehouse/Industrial accommodation
May suit other business types
93 – 1,115 sq m (1000 – 12,000 sq ft) approx.
Well positioned site close to A64, shopping and food outlets
Location
Chatsworth business Pakr is situated in an established commercial location on Scarborough Business Pakr which forms part of an extesnive commercial area with a vibrant mix of industrial, warehosuing, showroom, retail and leisure business. The development is approximately 3.5 miles south of Scarborough town centre. The property itself is accessed from Lake View which connects via dunslow Road to the A64 close by. Seamer railway station is within walking distance and which forms part of the Trans Pennine rail link. There are very good local and regional bus servcies also.
The Morrisons superstore and a number of food and drinks ourtlets are within easy walking distance.
Scarborough itself is an east coast holiday resort situated approximately 36 miles east of York and 40 miles to the north of Hull, with a total catchment population of approximately 82,000 people.
The town hosts a number of well known occupiers, with major manufacturing operations located within the vicinity of the subject property, including, McCain Frozen Foods, adl, Schneider Electrical, Bluebird Engineering and InfoTone.
Description
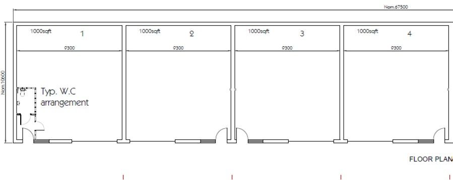
The subject development will provide an excellent range of up to 19 small business units that will lend themsleves to a range of business types. They are to be built in terraces so a variety of sizes can be provided between 1,000 sq ft and 12,000 sq ft.
The units will be provided with;
Steel portal framed structure
Clad with insulated pre cast panels
Solid concrete floors
3 phase power supply to a distribution board
Electric roller shutter loading door
WC and tea point
LED lighting
Designated parking
Tenure
The units are available at prices starting from £165,000.
Please contact the agents for pricing of larger units.
Rates
The properties will be separately rated on completion of build. We believe the smallest units will be subject to small business relief subject to the premises being the occupiers only business premises. Interested parties must make their own enquiries in tihe regard.
Service charge
A service charge will be levied in respect of the maintenance and management of common external areas.
Chatsworth business Pakr is situated in an established commercial location on Scarborough Business Pakr which forms part of an extesnive commercial area with a vibrant mix of industrial, warehosuing, showroom, retail and leisure business. The development is approximately 3.5 miles south of Scarborough town centre. The property itself is accessed from Lake View which connects via dunslow Road to the A64 close by. Seamer railway station is within walking distance and which forms part of the Trans Pennine rail link. There are very good local and regional bus servcies also.
The Morrisons superstore and a number of food and drinks ourtlets are within easy walking distance.
Scarborough itself is an east coast holiday resort situated approximately 36 miles east of York and 40 miles to the north of Hull, with a total catchment population of approximately 82,000 people.
The town hosts a number of well known occupiers, with major manufacturing operations located within the vicinity of the subject property, including, McCain Frozen Foods, adl, Schneider Electrical, Bluebird Engineering and InfoTone.
Description
The subject development will provide an excellent range of up to 19 small business units that will lend themsleves to a range of business types. They are to be built in terraces so a variety of sizes can be provided between 1,000 sq ft and 12,000 sq ft.
The units will be provided with;
Steel portal framed structure
Clad with insulated pre cast panels
Solid concrete floors
3 phase power supply to a distribution board
Electric roller shutter loading door
WC and tea point
LED lighting
Designated parking
Tenure
The units are available at prices starting from £165,000.
Please contact the agents for pricing of larger units.
Rates
The properties will be separately rated on completion of build. We believe the smallest units will be subject to small business relief subject to the premises being the occupiers only business premises. Interested parties must make their own enquiries in tihe regard.
Service charge
A service charge will be levied in respect of the maintenance and management of common external areas.
Mortgage calculator
Monthly repayment
£825 per month
Whole of market comparison
70+ lenders and 10,000+ products
The monthly repayments provided are estimates and should be used as a guide only. The actual amount you can borrow will depend on your personal financial situation and subject to a full application. For a more precise estimate, please use the Mojo mortgage calculator. Your home or property may be repossessed if you do not keep up repayments on your mortgage.


.png)