Guide price
£75,000
(£15.65/sq. ft)
Land for saleThe Lizard TR12
9,583 sq. ft
EPC Rating: D
About this property
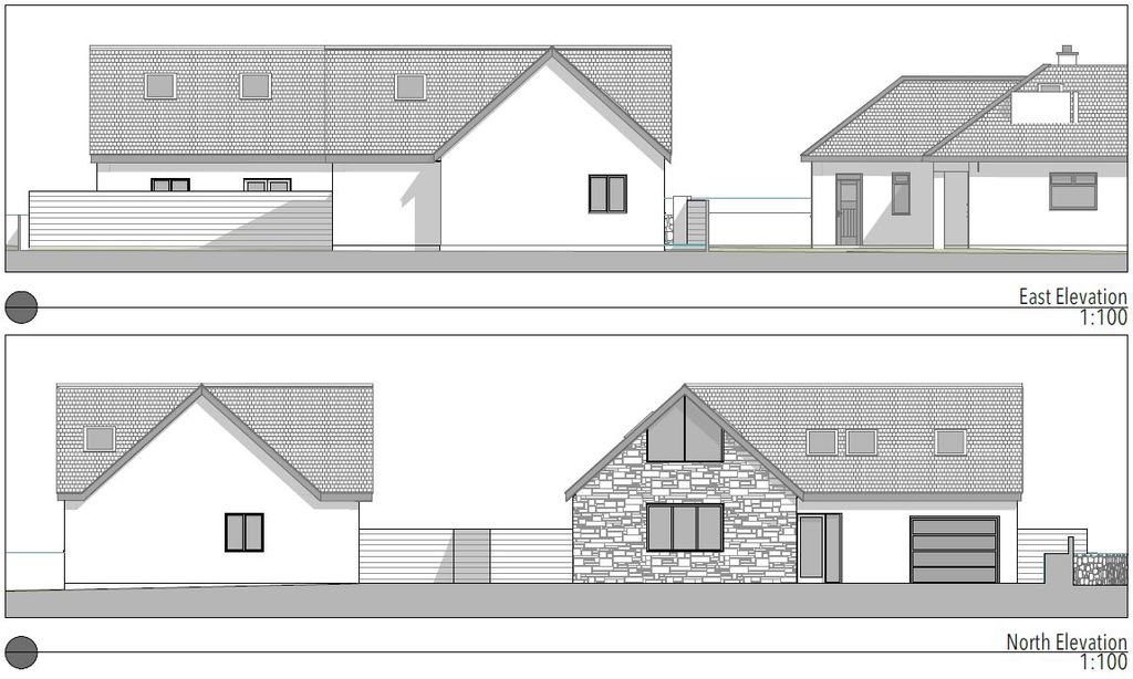
Two building plots
Planning permission granted
A 4-bedroom & A 3-bedroom
Stunning location
PA23/10217
Full Details
Plot 1:
Detached 4 Bedroom House - 149.0sqm (1,604sqft)
Integral garage plus private parking for 3 cars.
Plot 2:
Detached 3 Bedroom House - 131.0sqm (1,410sqft)
Integral garage plus private parking for 3 cars.
Estimated gdv
Plot 1 - £475,000
Plot 2 - £450,000
Total - £925,000
Planning Permission:
Planning is granted under PA23/10217
Community Infrastructure Levy:
There is a cil liability of £33,547.
Inspection:
Interested parties are encouraged to help themselves to a site inspection, we would request that you contact Redgrave Commercial to inform them that you intend to do this in order that we can warn the neighbour. For any other enquiries, please also contact Redgrave Commercial.
Plot 1:
Detached 4 Bedroom House - 149.0sqm (1,604sqft)
Integral garage plus private parking for 3 cars.
Plot 2:
Detached 3 Bedroom House - 131.0sqm (1,410sqft)
Integral garage plus private parking for 3 cars.
Estimated gdv
Plot 1 - £475,000
Plot 2 - £450,000
Total - £925,000
Planning Permission:
Planning is granted under PA23/10217
Community Infrastructure Levy:
There is a cil liability of £33,547.
Inspection:
Interested parties are encouraged to help themselves to a site inspection, we would request that you contact Redgrave Commercial to inform them that you intend to do this in order that we can warn the neighbour. For any other enquiries, please also contact Redgrave Commercial.
Mortgage calculator
Monthly repayment
£375 per month
Whole of market comparison
70+ lenders and 10,000+ products
The monthly repayments provided are estimates and should be used as a guide only. The actual amount you can borrow will depend on your personal financial situation and subject to a full application. For a more precise estimate, please use the Mojo mortgage calculator. Your home or property may be repossessed if you do not keep up repayments on your mortgage.



.png)