Non quoting
Land for saleSite Of Former Baldovan House, Off Baldovan Road, Strathmartine, Dundee DD3
86,684 sq. ft
Freehold
About this property
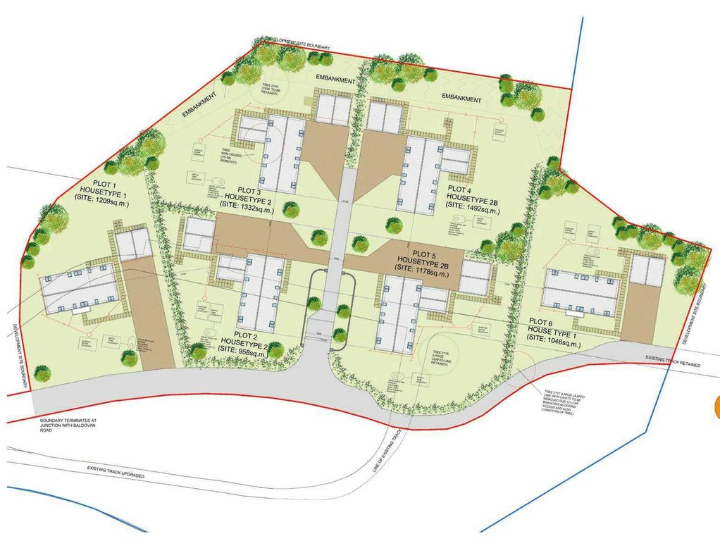
Total site area approx. 1.99 acres (0.805 hectares) Aerial footage of the site can be viewed at ‚ù
Excellent access to Dundee City Centre
Detailed Planning Consent for 6 large detached houses
Aerial footage of the site can be viewed at ‚ù
Offers invited
Description
The subjects comprise a relatively level parcel of land extending to circa 1.99 acres (0.805 hectares) and benefits from detailed planning permission for 6 detached large 5 bedroom houses. The site is accessed via an access track off Baldovan Road and the site is currently bounded by open fields along the western and southern boundaries and a mature tree line along the northern and eastern boundaries. Planning: All planning enquires should be put forward to the Angus Council Planning Department. Further information regarding the existing planning consent can be found on the Angus Council Planning Portal under the reference 20/00624/full.
Location
The city of Dundee has a population of around 150,000 and it is situated on the north bank of the Firth of Tay approximately 25 miles east of Perth. Dundee benefits from a main line railway station sitting on the East Coast Line with a further rail link to Perth and the central Scotland area. The city also has the benefit of excellent road links to Aberdeen to the north with access to the main motorway network via the M90 and M9 to the south and east. The city has been through a period of urban regeneration in recent years with a number of redevelopment projects including the comprehensive office/retail and residential development of nearby City Quay. In addition the Dundee Waterfront Project is well advanced with the V & A museum and visitor centre now open and attracting many visitors to the city. The subjects themselves are situated off Baldovan Road, on the northern periphery of Dundee in a somewhat rural area with easy access to Strathmartine Road and therefore to the city centre and beyond.
The subjects comprise a relatively level parcel of land extending to circa 1.99 acres (0.805 hectares) and benefits from detailed planning permission for 6 detached large 5 bedroom houses. The site is accessed via an access track off Baldovan Road and the site is currently bounded by open fields along the western and southern boundaries and a mature tree line along the northern and eastern boundaries. Planning: All planning enquires should be put forward to the Angus Council Planning Department. Further information regarding the existing planning consent can be found on the Angus Council Planning Portal under the reference 20/00624/full.
Location
The city of Dundee has a population of around 150,000 and it is situated on the north bank of the Firth of Tay approximately 25 miles east of Perth. Dundee benefits from a main line railway station sitting on the East Coast Line with a further rail link to Perth and the central Scotland area. The city also has the benefit of excellent road links to Aberdeen to the north with access to the main motorway network via the M90 and M9 to the south and east. The city has been through a period of urban regeneration in recent years with a number of redevelopment projects including the comprehensive office/retail and residential development of nearby City Quay. In addition the Dundee Waterfront Project is well advanced with the V & A museum and visitor centre now open and attracting many visitors to the city. The subjects themselves are situated off Baldovan Road, on the northern periphery of Dundee in a somewhat rural area with easy access to Strathmartine Road and therefore to the city centre and beyond.



.png)