Guide price
£400,000
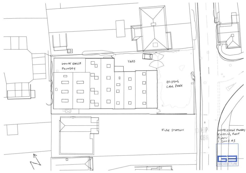
Light industrial for saleThe White Eagle Foundry, 199 Cuckfield Road, Hurstpierpoint, West Sussex BN6
About this property
Industrial unit - former foundry premises
Class B2 use
Potential for a variety of uses (STP)
Pre-app for 4 x houses
Immediate availability
Industrial Building - Potential Re-development (4 Houses) or Refurbishment Opportunity
Pre app for four houses.
It is believed the site has been a foundry since the 1940's and has been operated in its present form since 1985. The plot extends to approximately 11,250sqft/1145sqm gross, upon which sits a single industrial building comprising four sections. The property has a yard to the north side with loading doors into the building together with a large full width car park at the front of the plot for around 10+cars.
The buildings reflect their use as a foundry and would benefit from some refurbishment to the roof areas, welfare facilities and offices.
The building has a 3-phase electrical supply, concrete floors, radiant heaters, a sand silo (internally) and a 1,000kg Clayton Hoist.
The buildings extend to 5,462sqft/507sqm.
Pre app for four houses.
It is believed the site has been a foundry since the 1940's and has been operated in its present form since 1985. The plot extends to approximately 11,250sqft/1145sqm gross, upon which sits a single industrial building comprising four sections. The property has a yard to the north side with loading doors into the building together with a large full width car park at the front of the plot for around 10+cars.
The buildings reflect their use as a foundry and would benefit from some refurbishment to the roof areas, welfare facilities and offices.
The building has a 3-phase electrical supply, concrete floors, radiant heaters, a sand silo (internally) and a 1,000kg Clayton Hoist.
The buildings extend to 5,462sqft/507sqm.
Mortgage calculator
Monthly repayment
£2,000 per month
Whole of market comparison
70+ lenders and 10,000+ products
The monthly repayments provided are estimates and should be used as a guide only. The actual amount you can borrow will depend on your personal financial situation and subject to a full application. For a more precise estimate, please use the Mojo mortgage calculator. Your home or property may be repossessed if you do not keep up repayments on your mortgage.



.png)