£2,100,000
(£232.02/sq. ft)
Property for saleFormer Tuition Centre, Providence Road, West Drayton UB7
9,051 sq. ft
Available immediately
About this property
Freehold
Former school
2 annexes
Corner site
Secure site
Suitable for A variety of uses
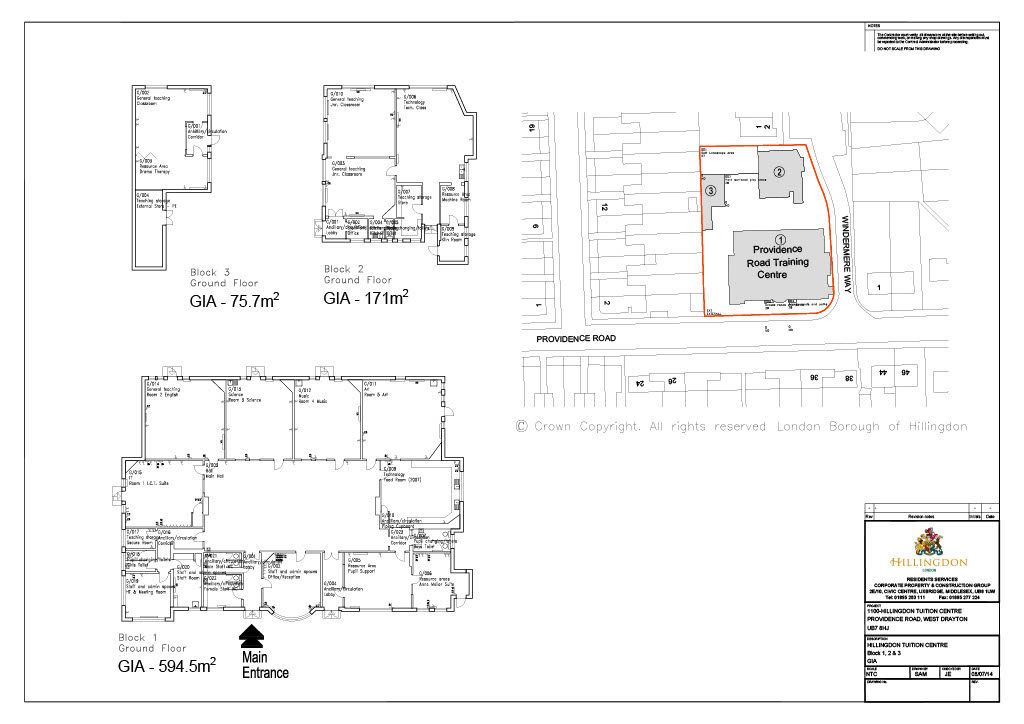
The property is a former Victorian school which has more recently been used for training and other educational purpose. The main buildings are mostly of attractive yellow brick elevations under pitched tiled roofs. All the accommodation is on the ground floor.
The main building comprises a full height hall with various rooms off. Some of which could be combined to provide larger open plan spaces. There is a separate smaller building to the rear which can also be accessed from Windemere Way.
A third more recent building with some parking completes the space available and is situated at the side of the main building.
The property is surplus to the requirements of our client, Hillingdon Council.
The property is considered suitable for a variety of uses such as community, educational and medical subject to any necessary changes of use.
Priority is likely to be given to offers which are not subject to change of use.
Location
The property is situated in a densely populated residential area on the corner of Providence Road and Windermere Way.
It is a few minutes' walk from West Drayton Station which is also served by the Elizabeth Line providing a fast service to Central London. High Street is also nearby offering a wide range of shops, food outlets and services.
By road, the property has very good access to Heathrow Airport and the M4 and onwards to the M25
Strictly by appointment through vdbm.
A Display Energy Certificate is available upon request. The property has an energy rating of F (135)
The main building comprises a full height hall with various rooms off. Some of which could be combined to provide larger open plan spaces. There is a separate smaller building to the rear which can also be accessed from Windemere Way.
A third more recent building with some parking completes the space available and is situated at the side of the main building.
The property is surplus to the requirements of our client, Hillingdon Council.
The property is considered suitable for a variety of uses such as community, educational and medical subject to any necessary changes of use.
Priority is likely to be given to offers which are not subject to change of use.
Location
The property is situated in a densely populated residential area on the corner of Providence Road and Windermere Way.
It is a few minutes' walk from West Drayton Station which is also served by the Elizabeth Line providing a fast service to Central London. High Street is also nearby offering a wide range of shops, food outlets and services.
By road, the property has very good access to Heathrow Airport and the M4 and onwards to the M25
Strictly by appointment through vdbm.
A Display Energy Certificate is available upon request. The property has an energy rating of F (135)



.png)