£775,000
(£626.52/sq. ft)
Land for saleNavarino Road, London E8
1,237 sq. ft
Freehold
About this property
Development opportunity
Full planning permission
Detached home
Large outside space
Prime London Fields location
Self-build project
Description
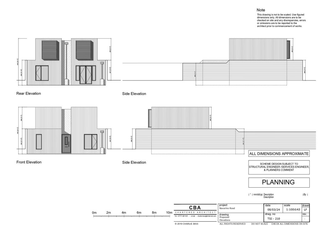
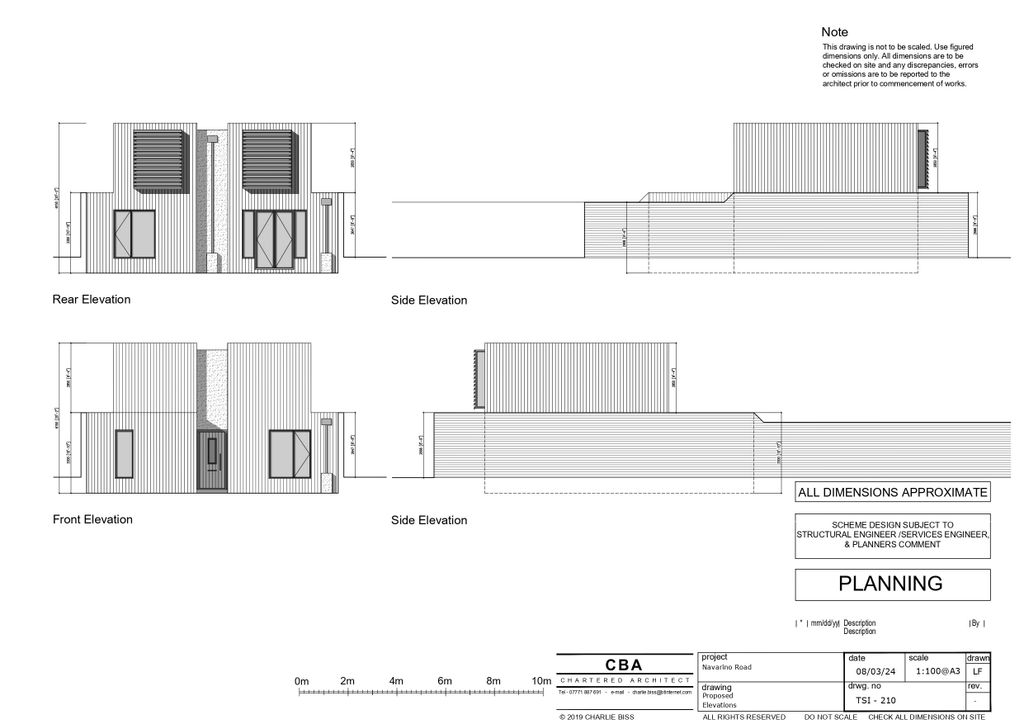
Situated within the Graham Road and Mapledene Conservation Area, this land with full planning permission is offered for sale on one of London Fields’ most desirable residential streets, Navarino Road.
Planning consent has been granted for the construction of a rare detached modernist home extending to approximately 1,237 sq ft, arranged over two floors with a flat roof. The approved design provides three bedrooms, two bathrooms, a separate WC and a dedicated home office, with the layout carefully designed to maximise light and privacy throughout.
The secure, fully enclosed plot is accessed via a private walkway between two handsome Victorian houses, opening onto the main site. The scheme includes a generous private front courtyard and a rear terrace, providing excellent outdoor space rarely found in this vibrant East London neighbourhood.
This opportunity will appeal to an ambitious self-build owner-occupier with an appreciation for modernist architecture and the chance to create a detached home finished to a bespoke specification. Full planning permission was granted in December 2025, with a signed Section 106 Agreement in place. The eventual purchaser will be responsible for approximately £51,000 in Section 106 and carbon offset contributions; all other associated costs have been settled by the vendor. The site will be cleared prior to completion. Purchasers will be responsible for the removal of a small disused brick WC and a timber and sheet-metal storage shed, both of which are already accounted for within the approved plans.
Location
London Fields is just a short stroll away, offering cricket pitches, tennis courts and the much-loved London Fields Lido, one of London’s few remaining outdoor heated pools. London Fields and Hackney Downs Overground stations are nearby, providing swift connections across the city. The area is also renowned for its outstanding food and drink scene, with local favourites including Wilton Way Deli & Wines, Binch, Pophams, E5 Bakehouse and Pockets, alongside acclaimed restaurants such as brat x Climpson’s Arch, Elliott’s, Bambi and Behind. Broadway Market, with its independent shops, cafés and vibrant weekend street food stalls, is also within easy reach.
Situated within the Graham Road and Mapledene Conservation Area, this land with full planning permission is offered for sale on one of London Fields’ most desirable residential streets, Navarino Road.
Planning consent has been granted for the construction of a rare detached modernist home extending to approximately 1,237 sq ft, arranged over two floors with a flat roof. The approved design provides three bedrooms, two bathrooms, a separate WC and a dedicated home office, with the layout carefully designed to maximise light and privacy throughout.
The secure, fully enclosed plot is accessed via a private walkway between two handsome Victorian houses, opening onto the main site. The scheme includes a generous private front courtyard and a rear terrace, providing excellent outdoor space rarely found in this vibrant East London neighbourhood.
This opportunity will appeal to an ambitious self-build owner-occupier with an appreciation for modernist architecture and the chance to create a detached home finished to a bespoke specification. Full planning permission was granted in December 2025, with a signed Section 106 Agreement in place. The eventual purchaser will be responsible for approximately £51,000 in Section 106 and carbon offset contributions; all other associated costs have been settled by the vendor. The site will be cleared prior to completion. Purchasers will be responsible for the removal of a small disused brick WC and a timber and sheet-metal storage shed, both of which are already accounted for within the approved plans.
Location
London Fields is just a short stroll away, offering cricket pitches, tennis courts and the much-loved London Fields Lido, one of London’s few remaining outdoor heated pools. London Fields and Hackney Downs Overground stations are nearby, providing swift connections across the city. The area is also renowned for its outstanding food and drink scene, with local favourites including Wilton Way Deli & Wines, Binch, Pophams, E5 Bakehouse and Pockets, alongside acclaimed restaurants such as brat x Climpson’s Arch, Elliott’s, Bambi and Behind. Broadway Market, with its independent shops, cafés and vibrant weekend street food stalls, is also within easy reach.
Mortgage calculator
Monthly repayment
£3,876 per month
Whole of market comparison
70+ lenders and 10,000+ products
The monthly repayments provided are estimates and should be used as a guide only. The actual amount you can borrow will depend on your personal financial situation and subject to a full application. For a more precise estimate, please use the Mojo mortgage calculator. Your home or property may be repossessed if you do not keep up repayments on your mortgage.

![Property photo 2 of 7 Drawing 1-210[80]_Page-0001.Jpg](https://lid.zoocdn.com/u/1024/768/f2ba74966b11b5ea11a9c2886b6161d641023184.jpg)
![Property photo 3 of 7 Drawing 1-200[77]_Page-0001.Jpg](https://lid.zoocdn.com/u/1024/768/cd9a1842c1f27a90394a0a4cdb65a23a230eac05.jpg)
.png)