Offers over
£170,000
(£7.81/sq. ft)
Land for saleBangor Street, Y Felinheli LL56
43,560 sq. ft
About this property
Auction
Development Opportunity
Auction Now Live - Ending 30th May 2026
An exceptional waterfront development opportunity at the highly sought-after Port Dinorwic Dock, Y Felinheli, North Wales
Occupying a prominent marina-facing position within one of North Wales' most desirable coastal villages, this consented scheme presents immediate development potential in a location known for strong residential and lifestyle demand.
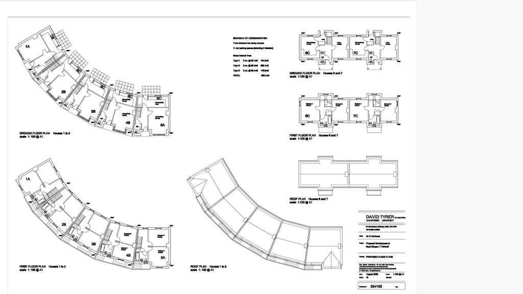
Full planning permission has been granted for:
* 7 contemporary two-bedroom residential units
* 11 parking spaces (including 2 disabled bays)
* Efficient, well-considered site layout
* Immediate build potential
The site benefits from existing on-site electricity substation infrastructure, offering a significant practical advantage and reducing additional utility requirements.
Y Felinheli is renowned for its waterfront setting, marina, and convenient access to Bangor, Caernarfon and the wider North Wales coastline. The area continues to attract both owner-occupiers and investors seeking premium coastal living.
An exceptional waterfront development opportunity at the highly sought-after Port Dinorwic Dock, Y Felinheli, North Wales
Occupying a prominent marina-facing position within one of North Wales' most desirable coastal villages, this consented scheme presents immediate development potential in a location known for strong residential and lifestyle demand.
Full planning permission has been granted for:
* 7 contemporary two-bedroom residential units
* 11 parking spaces (including 2 disabled bays)
* Efficient, well-considered site layout
* Immediate build potential
The site benefits from existing on-site electricity substation infrastructure, offering a significant practical advantage and reducing additional utility requirements.
Y Felinheli is renowned for its waterfront setting, marina, and convenient access to Bangor, Caernarfon and the wider North Wales coastline. The area continues to attract both owner-occupiers and investors seeking premium coastal living.
Mortgage calculator
Monthly repayment
£850 per month
Whole of market comparison
70+ lenders and 10,000+ products
The monthly repayments provided are estimates and should be used as a guide only. The actual amount you can borrow will depend on your personal financial situation and subject to a full application. For a more precise estimate, please use the Mojo mortgage calculator. Your home or property may be repossessed if you do not keep up repayments on your mortgage.



.png)