£450,000
Land for saleKensington Terrace, Willington, Crook DL15
About this property
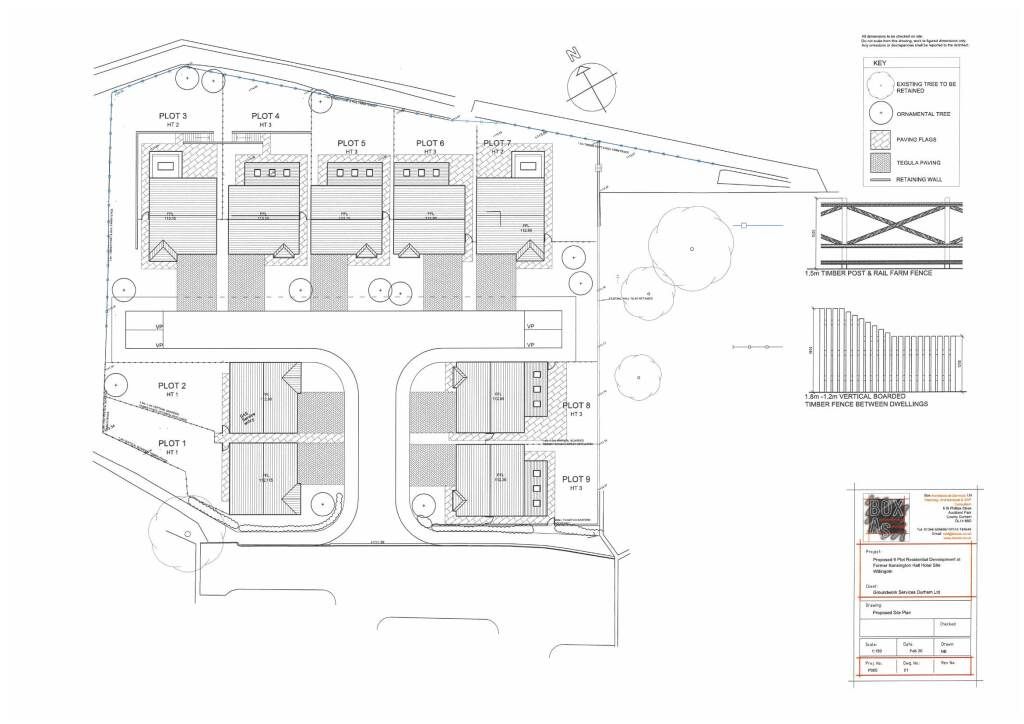
Land to be sold with outline planning. Planning portal reference DM/19/02002/out
planning application approved by commitee decision - please refer to durham county council planning portal for full details and registered documentation. DM/19/02002/out
images displayed are for illustrative purposes.
Ben Charles are delighted to offer this residential development opportunity to the market. The land is to be sold with outline planning permission for nine units. Please refer to the Durham County Council planning portal for further detail. Ref DM/19/02002/out
The proposed property type and site density have been carefully considered and tailored specifically to the development location.
The site is located at the head of a cul de sac on Kensington Terrace, off Willington High Street:
, -1.6976844,127a, 35y, 90h, 45t/data=!3m1!1e3!4m5!3m4!1s0x487e81b80f2a0ef1:0xedad31af97501172!8m2!3d54.711429!4d-1.693737
, -1.6957094,3a, 75y, 90h, 90t/data=!3m6!1e1!3m4!1sFZjfEqFg5IIw-Gn8JqZvdA!2e0!7i13312!8i6656
, -1.6957094,3a, 75y, 90t/data=!3m6!1e1!3m4!1sFZjfEqFg5IIw-Gn8JqZvdA!2e0!7i13312!8i6656
Site access and topography appear favourable in terms of development ease.
To discuss further please contact Ben Charles Ltd.
Disclaimer
Disclaimer: Our details have been compiled in good faith using publicly available sources and information obtained from the vendor prior to marketing. Verification and clarification of this information, along with any further details concerning Material Information parts A, B & C, should be sought from a legal representative or appropriate authorities before making any financial commitments. Ben Charles Ltd cannot accept liability for any information provided subsequent amendments or unintentional errors or omissions.
planning application approved by commitee decision - please refer to durham county council planning portal for full details and registered documentation. DM/19/02002/out
images displayed are for illustrative purposes.
Ben Charles are delighted to offer this residential development opportunity to the market. The land is to be sold with outline planning permission for nine units. Please refer to the Durham County Council planning portal for further detail. Ref DM/19/02002/out
The proposed property type and site density have been carefully considered and tailored specifically to the development location.
The site is located at the head of a cul de sac on Kensington Terrace, off Willington High Street:
, -1.6976844,127a, 35y, 90h, 45t/data=!3m1!1e3!4m5!3m4!1s0x487e81b80f2a0ef1:0xedad31af97501172!8m2!3d54.711429!4d-1.693737
, -1.6957094,3a, 75y, 90h, 90t/data=!3m6!1e1!3m4!1sFZjfEqFg5IIw-Gn8JqZvdA!2e0!7i13312!8i6656
, -1.6957094,3a, 75y, 90t/data=!3m6!1e1!3m4!1sFZjfEqFg5IIw-Gn8JqZvdA!2e0!7i13312!8i6656
Site access and topography appear favourable in terms of development ease.
To discuss further please contact Ben Charles Ltd.
Disclaimer
Disclaimer: Our details have been compiled in good faith using publicly available sources and information obtained from the vendor prior to marketing. Verification and clarification of this information, along with any further details concerning Material Information parts A, B & C, should be sought from a legal representative or appropriate authorities before making any financial commitments. Ben Charles Ltd cannot accept liability for any information provided subsequent amendments or unintentional errors or omissions.
Mortgage calculator
Monthly repayment
£2,251 per month
Whole of market comparison
70+ lenders and 10,000+ products
The monthly repayments provided are estimates and should be used as a guide only. The actual amount you can borrow will depend on your personal financial situation and subject to a full application. For a more precise estimate, please use the Mojo mortgage calculator. Your home or property may be repossessed if you do not keep up repayments on your mortgage.
More information
Tenure
Council tax band
A band has not yet been confirmed.



.png)