£145,000
Land for saleCanonstown, Hayle TR27
Chain free
Freehold
About this property
Building Plot
No Chain
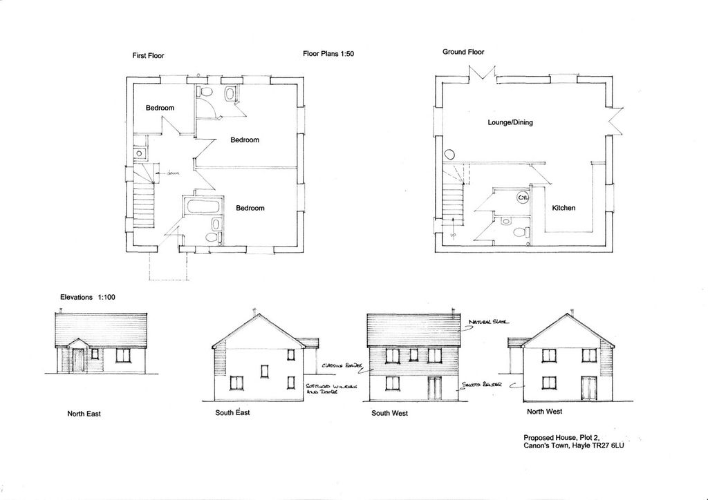
A good size building plot situated down a lane with beautiful countryside walks nearby. The plot has approved planning permission under reference number: (PA19 -09988. The development is in a superb location just off the A30 with nearby transport links via the St. Erth Park and Ride on the scenic St. Ives Bay Line. The planning is for an attractive detached three bedroom house (one en-suite) of approximately 109 square meters. The services have been facilitated by the current vendor and the plot is construction ready. There is potential to build one large house (Plot 1 also available separately). Plot 2 has plans for contemporary accommodation comprising of family bathroom, with open plan lounge/diner and kitchen.
Set away from traffic with rolling countryside views, this building plot is a great opportunity for any developer or self-build.
Set away from traffic with rolling countryside views, this building plot is a great opportunity for any developer or self-build.
Mortgage calculator
Monthly repayment
£725 per month
Whole of market comparison
70+ lenders and 10,000+ products
The monthly repayments provided are estimates and should be used as a guide only. The actual amount you can borrow will depend on your personal financial situation and subject to a full application. For a more precise estimate, please use the Mojo mortgage calculator. Your home or property may be repossessed if you do not keep up repayments on your mortgage.



.png)