£265,000
Land for saleOld Road, Braunston, Northamptonshire NN11
Freehold
About this property
Building Plot
Four Bed Executive Home
Plot Purchase Only
Plot Purchase and Build Option
No 'cil' Payment Requirement
Enquire For Further Details
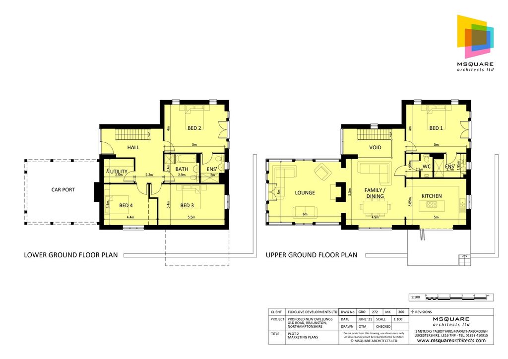
Located in the highly desirable Northamptonshire Village of Braunston and close to local amenities and giving easy access to the grand union canal is this building plot on 1/4 of an acre with planning approved for an executive detached two storey home of 2354 Sq ft/219 Sqm
Designs - The current planning permission is to create a 2 storey property with open plan kitchen/living/dining room, dual aspect lounge, family room, cloakroom, four bedrooms, two ensuites and family bathroom.
Option 1: Plot purchase only
Option 2: Plot purchase and build by Developer if required - Please enquire for further details.
The Plot is not subect to Community Infrastructure Levy.
Planning
Planning Links
Planning Decisions / References
Full planning:
Da/2015/0072
Decision date: 22nd May 2015
Two amendments:
Da/2018/0680
Decision date: 19th November 2018
da/2018/1075
Decision date: 25th April 2019
Designs - The current planning permission is to create a 2 storey property with open plan kitchen/living/dining room, dual aspect lounge, family room, cloakroom, four bedrooms, two ensuites and family bathroom.
Option 1: Plot purchase only
Option 2: Plot purchase and build by Developer if required - Please enquire for further details.
The Plot is not subect to Community Infrastructure Levy.
Planning
Planning Links
Planning Decisions / References
Full planning:
Da/2015/0072
Decision date: 22nd May 2015
Two amendments:
Da/2018/0680
Decision date: 19th November 2018
da/2018/1075
Decision date: 25th April 2019
Mortgage calculator
Monthly repayment
£1,325 per month
Whole of market comparison
70+ lenders and 10,000+ products
The monthly repayments provided are estimates and should be used as a guide only. The actual amount you can borrow will depend on your personal financial situation and subject to a full application. For a more precise estimate, please use the Mojo mortgage calculator. Your home or property may be repossessed if you do not keep up repayments on your mortgage.



.png)