Guide price
£60,000
Land for salePlot 8, Maes Maldwyn, Llanddew, Brecon, Powys LD3
EPC Rating: B
Freehold
About this property
An affordable building plot (plot 8) on a select cul-de-sac development on the edge of Llanddew village.
Description
An affordable housing building plot (plot 8) situated on the Maes Maldwyn estate represents a rare opportunity for a self-builder or small scale developer to acquire an individual building plot in this beautiful village of Llanddew.
Llanddew is a popular village set just 1 mile north of the picturesque market town of Brecon. Brecon offers a good choice of local amenities including leisure centre complex, theatre, cinema, supermarkets, education facilities, doctor's surgery and shops. Whilst the regional centres of Hereford, Cardiff and Swansea are all within approximately a 1 hours' drive.
Planning Permission
Outline planning permission was granted by Powys County Council in May 2011 (application number P/2009/0844).
Affordable Housing Criteria
The plot is restricted to a local housing needs criteria as per the Powys ldp - Affordable Housing spg, October 2018.
The two main elements to the assessment are:
1. An assessment of the Local Connection of the household with the area within which the dwelling is proposed or is located.
2. An assessment of the Financial/Personal Circumstances of a household i.e. The ability of the household to not afford market housing.
A copy of Appendix C, Local Need Assessment Process is available upon request from the selling agent.
Services
The site road incorporates most service media or pipe/ducting. Buyers should make their own enquiries as to the availability and connection costs associated with the cost of connecting to individual plots before committing to purchase.
We are advised that mains gas will not be available.
Drainage will be to the mains sewers.
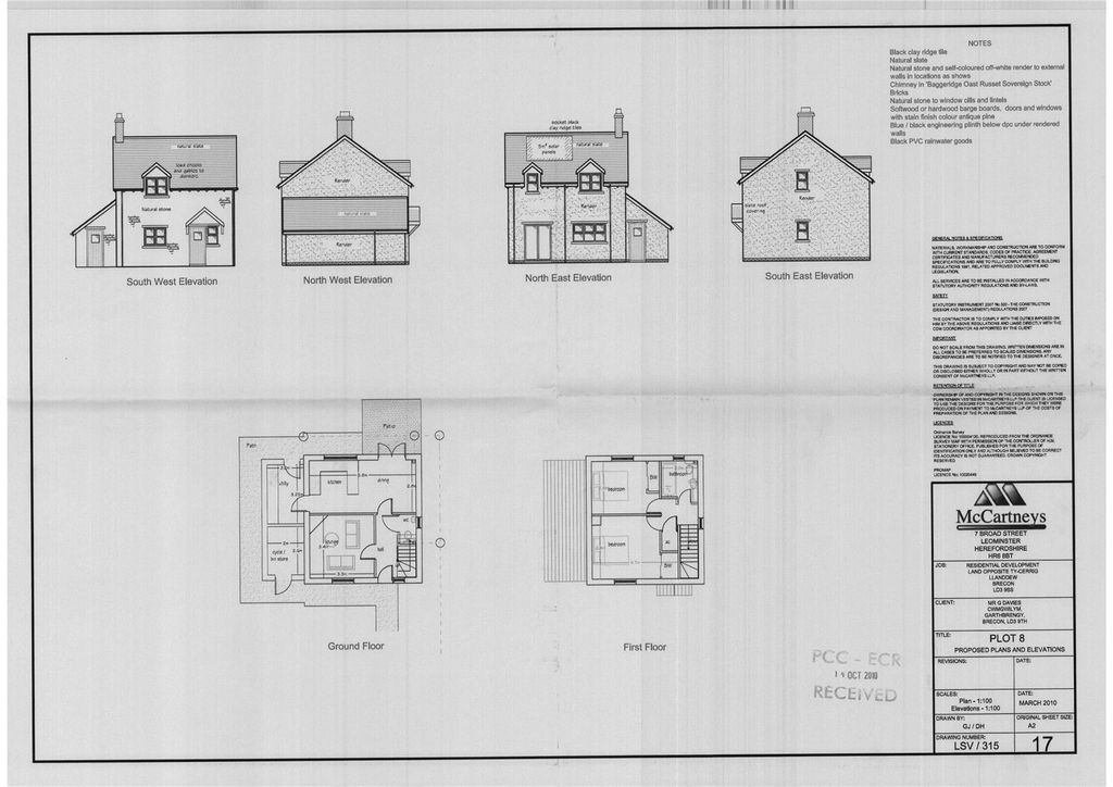
Plans
The plans provided are not to scale and all measurement are to be checked on site. Plans are provide for identification only.
Site Road
It is proposed that in due course the site road will be adopted to the council's specification.
Description
An affordable housing building plot (plot 8) situated on the Maes Maldwyn estate represents a rare opportunity for a self-builder or small scale developer to acquire an individual building plot in this beautiful village of Llanddew.
Llanddew is a popular village set just 1 mile north of the picturesque market town of Brecon. Brecon offers a good choice of local amenities including leisure centre complex, theatre, cinema, supermarkets, education facilities, doctor's surgery and shops. Whilst the regional centres of Hereford, Cardiff and Swansea are all within approximately a 1 hours' drive.
Planning Permission
Outline planning permission was granted by Powys County Council in May 2011 (application number P/2009/0844).
Affordable Housing Criteria
The plot is restricted to a local housing needs criteria as per the Powys ldp - Affordable Housing spg, October 2018.
The two main elements to the assessment are:
1. An assessment of the Local Connection of the household with the area within which the dwelling is proposed or is located.
2. An assessment of the Financial/Personal Circumstances of a household i.e. The ability of the household to not afford market housing.
A copy of Appendix C, Local Need Assessment Process is available upon request from the selling agent.
Services
The site road incorporates most service media or pipe/ducting. Buyers should make their own enquiries as to the availability and connection costs associated with the cost of connecting to individual plots before committing to purchase.
We are advised that mains gas will not be available.
Drainage will be to the mains sewers.
Plans
The plans provided are not to scale and all measurement are to be checked on site. Plans are provide for identification only.
Site Road
It is proposed that in due course the site road will be adopted to the council's specification.
Mortgage calculator
Monthly repayment
£300 per month
Whole of market comparison
70+ lenders and 10,000+ products
The monthly repayments provided are estimates and should be used as a guide only. The actual amount you can borrow will depend on your personal financial situation and subject to a full application. For a more precise estimate, please use the Mojo mortgage calculator. Your home or property may be repossessed if you do not keep up repayments on your mortgage.



.png)