£425,000
Land for saleHigh Street, Long Wittenham, Abingdon, Oxfordshire OX14
3 beds
1 bath
3 receptions
EPC Rating: F
Chain free
Freehold
About this property
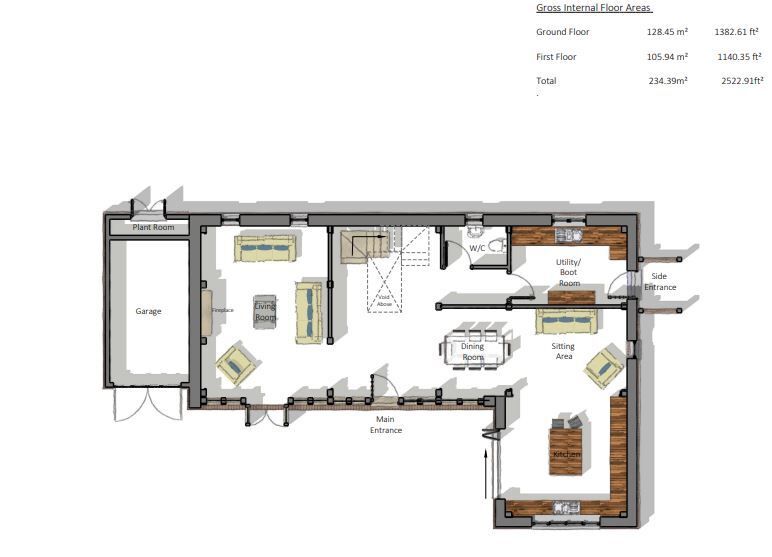
Unique self build opportunity
Cottage in need of extensive renovation or demolition
Planning permission granted for a detached house
Circa 2500 sqft
Plot overlooks open fields
Village location close to Didcot and Abingdon
*** make me an offer *** Situated on 3920 sq ft of land, is this original cottage in need of extensive renovation or demolition in the sought after village of Long Wittenham. The property comes chain free. Planning was previously granted for a replacement home of circa 2500 square feet. EPC Exempt
(South Oxfordshire District Council Application No: P21/S3004/ful)
Long Wittenham is a tranquil village featuring a variety of architectural housing styles. The village benefits from a well-regarded Primary School as well as beautiful pubs, restaurants and abundance of countryside walks.
Didcot is less than 4 miles away where you can catch a train to London in less than 40 minutes. Didcot has a wealth of shops, restaurants, cafes, sport, fitness, leisure and art facilities. There are a number of excellent schools at both primary and secondary level including three with an Ofsted Outstanding rating. Famous walks and landmarks including the mysterious White Horse Hill and the iconic Wittenham Clumps are also on your doorstep. Didcot is a great place to shop and socialise. This follows a 50 million pound investment in the Orchard Centre which is now home to popular brands such as Costa, Starbucks, Nandos, H&M, River Island, tk Maxx and M&S. The town centre also has a cinema, Sainsbury’s and purpose-built arts and entertainment centre which hosts a range of shows, exhibitions and dance classes.
Abingdon-on-Thames is 5.5 miles from Long Wittenham. Abingdon has a range of shops, supermarkets, restaurants, pubs, bars and cafes, a cinema, leisure centres including excellent swimming, tennis and football facilities. Milton & Harwell business parks are also just a short drive away. There are a range of private and state schools in Abingdon as well as the sought after European School in nearby Culham. There are beautiful places to take a walk nearby including Radley Lakes, Boars Hill and the banks of the River Thames where there's a children's playground and splash park.
Please contact us now for more information on this unique, self-build opportunity.
Conveyancing
We work with DT Conveyancing to help you buy your property with confidence. Your dedicated conveyancer will keep you informed at every stage from start to finish. Making your move a stress-free and straightforward as possible.
Mortgages
your home may be repossessed if you do not keep up repayments on your mortgage
Exclusive deals are made available to Embrace Financial Services by primis Mortgage Network, to which Embrace Financial Services are an Appointed Representative
Davis Tate Limited is an Introducer Appointed Representative of primis Mortgage Network, a trading name of First Complete Limited which is authorised and regulated by the Financial Conduct Authority for mortgages, protection insurance and general insurance products.
Embrace Financial Services Ltd. Is an Appointed Representative of primis Mortgage Network, a trading name of First Complete Ltd which is authorised and regulated by the Financial Conduct Authority.
Lettings and management
We offer a complete range of services for Landlords, from fully managed lets to advertising only. Each Landlord who chooses full management has a personal Property Manager and all our fees are based on a ‘no let - no fee’ basis.
Disclaimer
These particulars are a general guide only. They do not form part of any contract. Services, systems and appliances have not been tested.
Buyers information
To conform with government Money Laundering Regulations 2019, we are required to confirm the identity of all prospective buyers. We use the services of our appointed compliance provider, Simplify, who will contact you directly at an agreed time to do this. They will need the full name, date of birth and current address of all buyers. There is a charge of £99 including VAT for this (for the transaction not per person), payable direct to Simplify.
Referral fees
We may refer you to recommended providers of ancillary services such as Conveyancing, Financial Services, Insurance and Surveying. We may receive a commission payment fee or other benefit (known as a referral fee) for recommending their services. You are not under any obligation to use the services of the recommended provider. The ancillary service provider may be an associated company of Davis Tate.
DAB230007/
(South Oxfordshire District Council Application No: P21/S3004/ful)
Long Wittenham is a tranquil village featuring a variety of architectural housing styles. The village benefits from a well-regarded Primary School as well as beautiful pubs, restaurants and abundance of countryside walks.
Didcot is less than 4 miles away where you can catch a train to London in less than 40 minutes. Didcot has a wealth of shops, restaurants, cafes, sport, fitness, leisure and art facilities. There are a number of excellent schools at both primary and secondary level including three with an Ofsted Outstanding rating. Famous walks and landmarks including the mysterious White Horse Hill and the iconic Wittenham Clumps are also on your doorstep. Didcot is a great place to shop and socialise. This follows a 50 million pound investment in the Orchard Centre which is now home to popular brands such as Costa, Starbucks, Nandos, H&M, River Island, tk Maxx and M&S. The town centre also has a cinema, Sainsbury’s and purpose-built arts and entertainment centre which hosts a range of shows, exhibitions and dance classes.
Abingdon-on-Thames is 5.5 miles from Long Wittenham. Abingdon has a range of shops, supermarkets, restaurants, pubs, bars and cafes, a cinema, leisure centres including excellent swimming, tennis and football facilities. Milton & Harwell business parks are also just a short drive away. There are a range of private and state schools in Abingdon as well as the sought after European School in nearby Culham. There are beautiful places to take a walk nearby including Radley Lakes, Boars Hill and the banks of the River Thames where there's a children's playground and splash park.
Please contact us now for more information on this unique, self-build opportunity.
Conveyancing
We work with DT Conveyancing to help you buy your property with confidence. Your dedicated conveyancer will keep you informed at every stage from start to finish. Making your move a stress-free and straightforward as possible.
Mortgages
your home may be repossessed if you do not keep up repayments on your mortgage
Exclusive deals are made available to Embrace Financial Services by primis Mortgage Network, to which Embrace Financial Services are an Appointed Representative
Davis Tate Limited is an Introducer Appointed Representative of primis Mortgage Network, a trading name of First Complete Limited which is authorised and regulated by the Financial Conduct Authority for mortgages, protection insurance and general insurance products.
Embrace Financial Services Ltd. Is an Appointed Representative of primis Mortgage Network, a trading name of First Complete Ltd which is authorised and regulated by the Financial Conduct Authority.
Lettings and management
We offer a complete range of services for Landlords, from fully managed lets to advertising only. Each Landlord who chooses full management has a personal Property Manager and all our fees are based on a ‘no let - no fee’ basis.
Disclaimer
These particulars are a general guide only. They do not form part of any contract. Services, systems and appliances have not been tested.
Buyers information
To conform with government Money Laundering Regulations 2019, we are required to confirm the identity of all prospective buyers. We use the services of our appointed compliance provider, Simplify, who will contact you directly at an agreed time to do this. They will need the full name, date of birth and current address of all buyers. There is a charge of £99 including VAT for this (for the transaction not per person), payable direct to Simplify.
Referral fees
We may refer you to recommended providers of ancillary services such as Conveyancing, Financial Services, Insurance and Surveying. We may receive a commission payment fee or other benefit (known as a referral fee) for recommending their services. You are not under any obligation to use the services of the recommended provider. The ancillary service provider may be an associated company of Davis Tate.
DAB230007/
Mortgage calculator
Monthly repayment
£2,126 per month
Whole of market comparison
70+ lenders and 10,000+ products
The monthly repayments provided are estimates and should be used as a guide only. The actual amount you can borrow will depend on your personal financial situation and subject to a full application. For a more precise estimate, please use the Mojo mortgage calculator. Your home or property may be repossessed if you do not keep up repayments on your mortgage.



.png)