£450,000
Land for saleLand On The South Side Of, Red Hall Lane, Wakefield WF1
Freehold
About this property
A fantastic development opportunity.
Sort after Wakefield location.
Luxury gated development.
Full planning permission.
22/01364/ful.
Viewings is highly recommended.
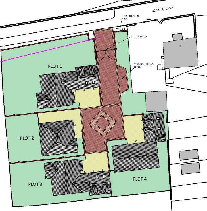
A fantastic land opportunity to develop 4 truly luxurious detached properties in the heart of Wakefield.
With full planning permission to build 4 detached dwellings within a gated development, Red Hall Lane brings premium living with the convenience of Wakefield City Centre.
Each property has been drawn to a high specification, making each home perfectly sized for families and working professionals.
Enjoying one of Wakefield’s most iconic locations, this development offers fantastic amenities such as local supermarkets, restaurants and bars as well as the convenience of both the M1 & M62 for daily commuters. Access onto the site can be found from Leeds Road, avoiding any major traffic from the A650.
Full planning details can be found on Wakefield planning portal with reference 22/01364/ful.
A viewing is highly recommended to appreciate this development for all it has to offer.
Important notice Any plans, areas and dimensions contained within these sales particulars are for guidance only and are not to scale, any buyer should check the accuracy of the measurements on site. Please visit Wakefield Planning Portal for any additional planning documents. Interested parties are advised to carry out their own due diligence before purchase.
Anti-Money Laundering (aml) Checks - As part of making an offer, we're required by law to complete Anti-Money Laundering (aml) checks to confirm the identity of all purchasers. To cover the cost of this process, a fee of £48 inc VAT per buyer is payable when your offer is accepted. This is a standard requirement for all buyers and helps us ensure your offer can be progressed as quickly and smoothly as possible.
With full planning permission to build 4 detached dwellings within a gated development, Red Hall Lane brings premium living with the convenience of Wakefield City Centre.
Each property has been drawn to a high specification, making each home perfectly sized for families and working professionals.
Enjoying one of Wakefield’s most iconic locations, this development offers fantastic amenities such as local supermarkets, restaurants and bars as well as the convenience of both the M1 & M62 for daily commuters. Access onto the site can be found from Leeds Road, avoiding any major traffic from the A650.
Full planning details can be found on Wakefield planning portal with reference 22/01364/ful.
A viewing is highly recommended to appreciate this development for all it has to offer.
Important notice Any plans, areas and dimensions contained within these sales particulars are for guidance only and are not to scale, any buyer should check the accuracy of the measurements on site. Please visit Wakefield Planning Portal for any additional planning documents. Interested parties are advised to carry out their own due diligence before purchase.
Anti-Money Laundering (aml) Checks - As part of making an offer, we're required by law to complete Anti-Money Laundering (aml) checks to confirm the identity of all purchasers. To cover the cost of this process, a fee of £48 inc VAT per buyer is payable when your offer is accepted. This is a standard requirement for all buyers and helps us ensure your offer can be progressed as quickly and smoothly as possible.
Mortgage calculator
Monthly repayment
£2,251 per month
Whole of market comparison
70+ lenders and 10,000+ products
The monthly repayments provided are estimates and should be used as a guide only. The actual amount you can borrow will depend on your personal financial situation and subject to a full application. For a more precise estimate, please use the Mojo mortgage calculator. Your home or property may be repossessed if you do not keep up repayments on your mortgage.



.png)