Offers over
£1,500,000
Land for salePenn Road, Knotty Green, Beaconsfield HP9
EPC Rating: D
Freehold
About this property
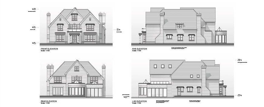
A building plot in the region of 0.3 acres with planning permission granted to build a 6,500 sq. Ft house, in a popular location with views to the rear over neigbouring countryside.
Keystones is a building plot in a fanstastic location, just off of Penn Road, situated on an excellent plot of approximately 0.3 of an acre.
The property offers a scope for complete development, with the property enjoying planning consent for approaching 6,500 square feet of accommodation.
Situated in a popular location, the property benefits from views over the adjoining property over fantastic fields owned by Earl Howe and the Penn Estate, and is a great oppurtunity for someone looking to create their own home.
Location
The Old Town is forever England, with traditional inns and teahouses, quaint boutiques and a tempting array of restaurants: The Crazy Bear and Giggling Squid are just two that stand out among the rising and falling rooflines of the delightful conservation area.
In close proximity to Beaconsfield the New Town, a mere century old, is a thriving retail centre, hosting three busy supermarkets – Waitrose, Sainsbury’s and Marks & Spencer Simply Food – along with quality high-street names, all jostling for position with up-market independent stores, cosmopolitan cafés and trendy salons and spas. Beaconsfield also hosts a historic weekly market and the monthly Farmers’ Market is a popular, recent addition.
Beaconsfield boasts popular rugby, football, cricket and tennis clubs. The Beacon Centre is home to a gym and sports hall, David Lloyd hosts swimming (both indoor and outdoor), while the spas at The Retreat and Cliveden House Hotel offer the ultimate indulgence. Prestigious golf clubs abound, from Beaconsfield’s own historic club to the grandeur of Stoke Park. Lovers of boating and fishing will enjoy their proximity to the Thames and the Grand Union Canal, with the regatta at Henley, polo at Windsor and racing at Ascot within easy reach.
Minutes away is High March (for girls) and Davenies (for boys) are just two of the area’s select range of high calibre preparatory schools; for older children, Wycombe Abbey, Harrow School and Eton College are easily accessible. There are also a number of “outstanding” grammar schools in the county.
Keystones is a building plot in a fanstastic location, just off of Penn Road, situated on an excellent plot of approximately 0.3 of an acre.
The property offers a scope for complete development, with the property enjoying planning consent for approaching 6,500 square feet of accommodation.
Situated in a popular location, the property benefits from views over the adjoining property over fantastic fields owned by Earl Howe and the Penn Estate, and is a great oppurtunity for someone looking to create their own home.
Location
The Old Town is forever England, with traditional inns and teahouses, quaint boutiques and a tempting array of restaurants: The Crazy Bear and Giggling Squid are just two that stand out among the rising and falling rooflines of the delightful conservation area.
In close proximity to Beaconsfield the New Town, a mere century old, is a thriving retail centre, hosting three busy supermarkets – Waitrose, Sainsbury’s and Marks & Spencer Simply Food – along with quality high-street names, all jostling for position with up-market independent stores, cosmopolitan cafés and trendy salons and spas. Beaconsfield also hosts a historic weekly market and the monthly Farmers’ Market is a popular, recent addition.
Beaconsfield boasts popular rugby, football, cricket and tennis clubs. The Beacon Centre is home to a gym and sports hall, David Lloyd hosts swimming (both indoor and outdoor), while the spas at The Retreat and Cliveden House Hotel offer the ultimate indulgence. Prestigious golf clubs abound, from Beaconsfield’s own historic club to the grandeur of Stoke Park. Lovers of boating and fishing will enjoy their proximity to the Thames and the Grand Union Canal, with the regatta at Henley, polo at Windsor and racing at Ascot within easy reach.
Minutes away is High March (for girls) and Davenies (for boys) are just two of the area’s select range of high calibre preparatory schools; for older children, Wycombe Abbey, Harrow School and Eton College are easily accessible. There are also a number of “outstanding” grammar schools in the county.
Mortgage calculator
Monthly repayment
£7,503 per month
Whole of market comparison
70+ lenders and 10,000+ products
The monthly repayments provided are estimates and should be used as a guide only. The actual amount you can borrow will depend on your personal financial situation and subject to a full application. For a more precise estimate, please use the Mojo mortgage calculator. Your home or property may be repossessed if you do not keep up repayments on your mortgage.



.png)