Guide price
£750,000
Land for saleSouth Cowton, Northallerton DL7
Freehold
About this property
Road side Frontage.
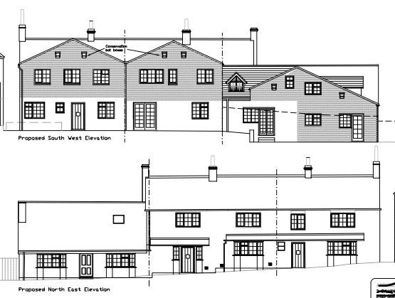
Development opportunity stnpp ZB23/00920/ful (pending)
Village location.
Former Public House.
Public house and land
Bridgfords are pleased to offer for Sale the Arden Arms (recently closed). Set in this idylic North Yorkshire Village. Potential here to add value stnpp.
Planning Ref: ZB23/00920/ful (Pending)
0.73 Acres
815.12 ft Perimiter.
Road side frontage.
Unconditional/ Conditional Offers Invited.
Bridgfords are pleased to offer for Sale the Arden Arms (recently closed). Set in this idylic North Yorkshire Village. Potential here to add value stnpp.
Planning Ref: ZB23/00920/ful (Pending)
0.73 Acres
815.12 ft Perimiter.
Road side frontage.
Unconditional/ Conditional Offers Invited.



.png)