£500,000
Land for saleHammond Drive, Ramsey, Harwich, Essex CO12
About this property
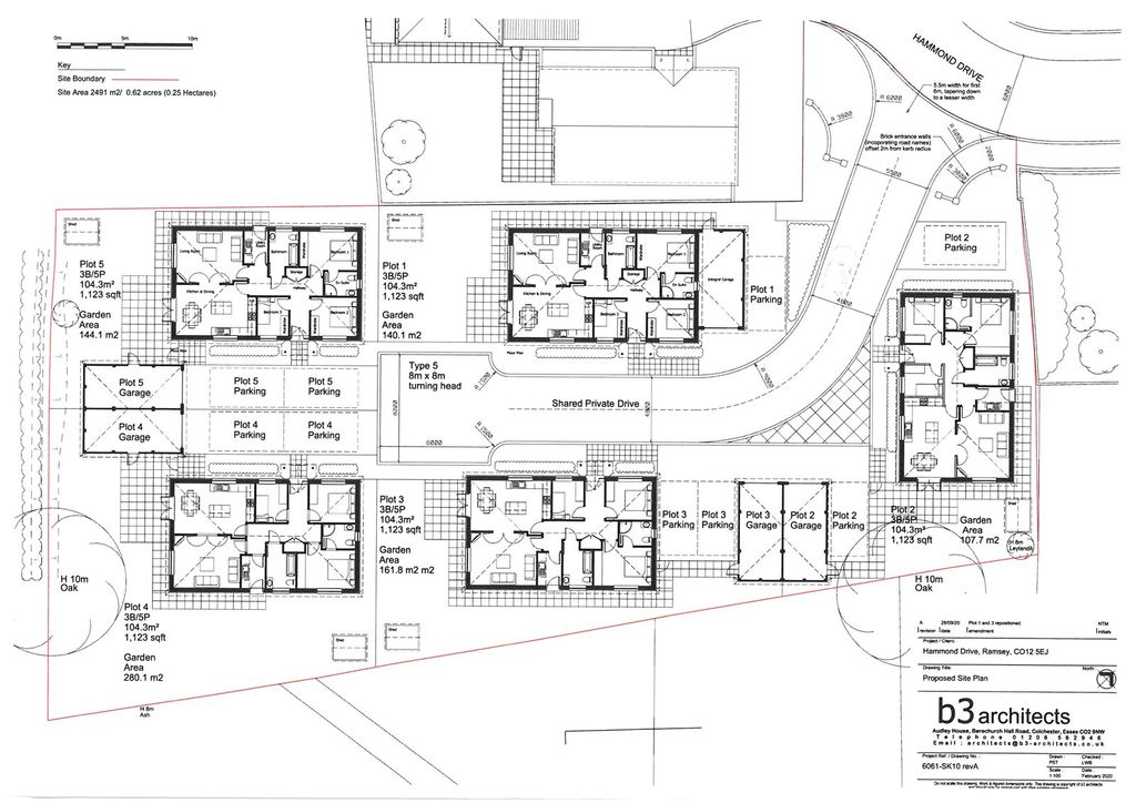
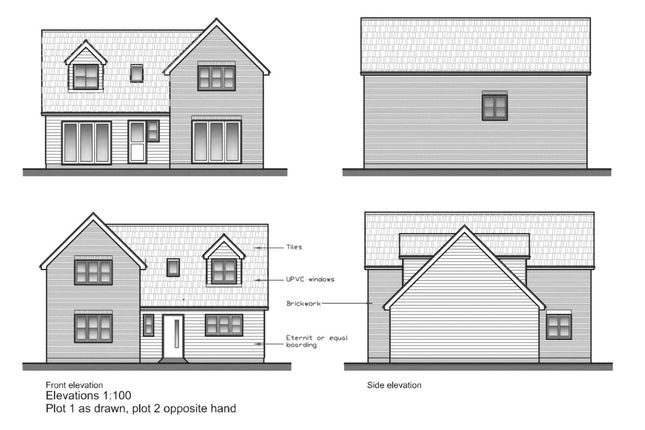
Plot of land for sale - hammond drive, ramsey, essex. Price £500,000. A unique opportunity to purchase a plot of land with detailed planning permission for 3 x three bedroomed detached bungalows with single garage.
The plot will be in a quiet cul-de-sac location located off Hammond drive, being within access to the Two Village primary school, Dovercourt town centre and A120.
All details can be viewed under Tendring District Council Public Access site - planning permission number 20/00342/ful link to site is:
For easy reference Plot 1,2 & 3 on the block plan are on offer. Plots 4 & 5 are being retained by the current owner.
Footings are already in place.
Roadway to be provided at the buyer’s cost.
For further information and to discuss this prospect in further detail contact .
The plot will be in a quiet cul-de-sac location located off Hammond drive, being within access to the Two Village primary school, Dovercourt town centre and A120.
All details can be viewed under Tendring District Council Public Access site - planning permission number 20/00342/ful link to site is:
For easy reference Plot 1,2 & 3 on the block plan are on offer. Plots 4 & 5 are being retained by the current owner.
Footings are already in place.
Roadway to be provided at the buyer’s cost.
For further information and to discuss this prospect in further detail contact .
Mortgage calculator
Monthly repayment
£2,501 per month
Whole of market comparison
70+ lenders and 10,000+ products
The monthly repayments provided are estimates and should be used as a guide only. The actual amount you can borrow will depend on your personal financial situation and subject to a full application. For a more precise estimate, please use the Mojo mortgage calculator. Your home or property may be repossessed if you do not keep up repayments on your mortgage.
More information
Tenure
Council tax band
A band has not yet been confirmed.



.png)