Offers over
£250,000
Land for saleDevelopment Site For 3 Dwellings, Seaton, East Devon EX12
Freehold
About this property
Commenced approved planning for a detached dwelling (ref. 15/1949/res)
Detailed planning approval for two further houses (24/1593/ful)
Coastal and estuary views
Site extends to c. 0.26 ha / 0.64 acres
Offers invited in excess of £250,000
The site
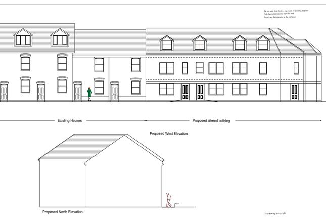
Positioned in an elevated setting overlooking the coastal town of Seaton in East Devon and offering estuary and coastal views, this development site extends to c. 0.26ha / 0.64 acres. Reserved matters planning approval ref. 15/1949/res has been attained (and commenced) for the construction of a new detached dwelling on the western side of the site - the approved new three bedroom detached property has a gross internal floor area extending to c. 171sqm (1841sqft).
On the eastern side of the site, detailed planning application ref. 24/1593/ful was approved on 4th April 2025 for the "Erection of two detached residential units". Each property is planned as a four bedroom, 1 ½ storey dwelling with floor areas extending to 190sqm (2045sqft) each. Interested parties may also wish to note that another planning approval (ref. 23/2222/ful) was approved in February 2024 for a single detached dwelling of c. 204sqm (2200sqft) as an alternative to the two detached properties proposed on the eastern side of the site. All new properties are proposed to be accessed via a private driveway off Marlpit Lane
seaton, east devon
Located between the ancient harbour of Axmouth and the white cliffs of Beer, Seaton is a popular, bustling coastal town situated on the Jurassic Coast and Dorset and East Devon Coast World Heritage Site, within an Area of Outstanding Natural Beauty. The renowned mile-long pebble beach with esplanade opens onto the waters of Lyme Bay. The renowned Colyton Grammar School, one of the England's top state schools is located about 2 miles from the plot.
The county town of Exeter, with its international airport and direct access to the M5 motorway and A38 Devon Expressway, is some twenty miles to the west, and a mainline rail link to London Waterloo at Axminster is approximately seven miles distance. There are also regular bus services from Seaton to Exeter.
Planning
East Devon District Council granted outline planning approval (ref. 12/0966/out for the construction of a dwelling on 10th September 2012. Subsequently, reserved matters approval (ref. 15/1949/res) was granted on 3rd November2015. The Agents have on file a letter from East Devon dated 27th October 2017, confirming the discharge of all pre-commencement conditions and a material start on the site. A further detailed planning application (ref. 23/2222/ful) was approved on 8th February 2024 for a single detached dwelling on the eastern side of the site. Finally the latest application (ref. 24/1593/ful) was approved on 4th April 2025 granting permission for two detached dwellings on the eastern side.
A comprehensive planning / technical information pack can be supplied electronically to interested parties on request.
Community infrastructure levy & S106
The Agents are advised that there are no S106 or cil payments applicable in relation to the approved reserved matters application (ref. 15/1949/res). However, the Agents understand the subsequent approvals (ref. 23/2222/ful & 24/1593/ful) are cil liable – although self-builders are able to apply for exemption from this charge – please see the East Devon Council website for further information.
Method of sale
The freehold site is offered for sale as a whole by private treaty, with offers invited in excess of £250,000
Viewing - strictly by appointment only
Please contact the joint Agents klp to arrange a viewing
Positioned in an elevated setting overlooking the coastal town of Seaton in East Devon and offering estuary and coastal views, this development site extends to c. 0.26ha / 0.64 acres. Reserved matters planning approval ref. 15/1949/res has been attained (and commenced) for the construction of a new detached dwelling on the western side of the site - the approved new three bedroom detached property has a gross internal floor area extending to c. 171sqm (1841sqft).
On the eastern side of the site, detailed planning application ref. 24/1593/ful was approved on 4th April 2025 for the "Erection of two detached residential units". Each property is planned as a four bedroom, 1 ½ storey dwelling with floor areas extending to 190sqm (2045sqft) each. Interested parties may also wish to note that another planning approval (ref. 23/2222/ful) was approved in February 2024 for a single detached dwelling of c. 204sqm (2200sqft) as an alternative to the two detached properties proposed on the eastern side of the site. All new properties are proposed to be accessed via a private driveway off Marlpit Lane
seaton, east devon
Located between the ancient harbour of Axmouth and the white cliffs of Beer, Seaton is a popular, bustling coastal town situated on the Jurassic Coast and Dorset and East Devon Coast World Heritage Site, within an Area of Outstanding Natural Beauty. The renowned mile-long pebble beach with esplanade opens onto the waters of Lyme Bay. The renowned Colyton Grammar School, one of the England's top state schools is located about 2 miles from the plot.
The county town of Exeter, with its international airport and direct access to the M5 motorway and A38 Devon Expressway, is some twenty miles to the west, and a mainline rail link to London Waterloo at Axminster is approximately seven miles distance. There are also regular bus services from Seaton to Exeter.
Planning
East Devon District Council granted outline planning approval (ref. 12/0966/out for the construction of a dwelling on 10th September 2012. Subsequently, reserved matters approval (ref. 15/1949/res) was granted on 3rd November2015. The Agents have on file a letter from East Devon dated 27th October 2017, confirming the discharge of all pre-commencement conditions and a material start on the site. A further detailed planning application (ref. 23/2222/ful) was approved on 8th February 2024 for a single detached dwelling on the eastern side of the site. Finally the latest application (ref. 24/1593/ful) was approved on 4th April 2025 granting permission for two detached dwellings on the eastern side.
A comprehensive planning / technical information pack can be supplied electronically to interested parties on request.
Community infrastructure levy & S106
The Agents are advised that there are no S106 or cil payments applicable in relation to the approved reserved matters application (ref. 15/1949/res). However, the Agents understand the subsequent approvals (ref. 23/2222/ful & 24/1593/ful) are cil liable – although self-builders are able to apply for exemption from this charge – please see the East Devon Council website for further information.
Method of sale
The freehold site is offered for sale as a whole by private treaty, with offers invited in excess of £250,000
Viewing - strictly by appointment only
Please contact the joint Agents klp to arrange a viewing
Mortgage calculator
Monthly repayment
£1,250 per month
Whole of market comparison
70+ lenders and 10,000+ products
The monthly repayments provided are estimates and should be used as a guide only. The actual amount you can borrow will depend on your personal financial situation and subject to a full application. For a more precise estimate, please use the Mojo mortgage calculator. Your home or property may be repossessed if you do not keep up repayments on your mortgage.



.png)