Guide price
£1,950,000
Land for saleWoodside Avenue, Beaconsfield, Buckinghamshire HP9
4 beds
2 baths
3 receptions
EPC Rating: D
Just added
Freehold
About this property
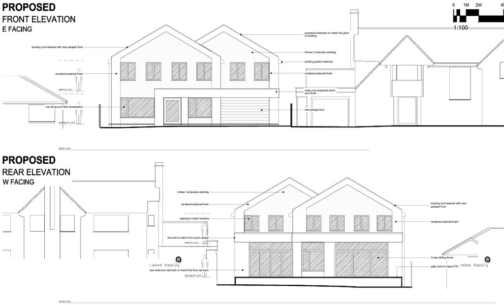
With planning permission granted to erect a detached house in the rear of the plot (pl/25/5240/pip) - this is an excellent opportunity to acquire a house with outstanding potential, in a fantastic location with planning permission also granted to extend the current house (pl/25/1201/fa).
This inviting family home opens into a large reception hall featuring original herringbone parquet flooring and an open staircase. This level hosts a bright sitting room featuring a classic brick fireplace that flows seamlessly into the living room, with an adjoining conservatory providing a direct transition to the outdoors.. A well proportioned formal dining room offers an ideal space for entertaining, while a dedicated study provides a quiet retreat for home working. The substantial kitchen and breakfast room serves as the heart of the home, complemented by a traditional walk-in pantry, a convenient ground floor family bathroom, and direct access to the integrated garage.
The first floor is centered around a light-filled landing and offers four well-proportioned double bedrooms. The accommodation is highlighted by an impressive principal suite which enjoys dual aspects, built-in wardrobes, and a practical integrated sink. Each of the additional bedrooms offers elevated views of the leafy surroundings, ensuring a sense of peace and privacy throughout the upper level. These rooms are served by a spacious, tiled family bathroom suite featuring a wood-panelled bath and integrated storage solutions.
Gardens and Grounds
To the front, the property features a large integrated garage and a private gravelled driveway providing parking for multiple vehicles.
The exterior is a standout feature of the property, headlined by a deep, west-facing rear garden primarily laid to lawn and framed by mature specimen trees and lush herbaceous borders. A sheltered patio area and a charming covered loggia offer the perfect settings for alfresco dining and enjoying the afternoon sun.
Location
Woodside Avenue is one of the popular roads in Beaconsfield due to its central yet quiet location equidistant to both the Old and New Towns. It is only 0.1 of a mile from Beaconsfield High Street, with its excellent range of shopping facilities, coffee shops and restaurants and Beaconsfield Old Town, at 0.7 miles which has a further selection of popular venues, public houses and bars.
For commuters, there is a fast track train line within close proximity, giving swift access to London Marylebone in under 30 minutes. The M40 is within 2 miles, giving access to the M25 and M4, with Heathrow close by.
Buckinghamshire is renowned for its excellent choice of state and independent schools, including leading grammar schools, such as Beaconsfield High for Girls, Dr Challoner’s Boys Grammar School, Dr Challoner’s High School for Girls and The Royal Grammar School, as well as top private schools including Wycombe Abbey, The Royal Masonic, Berkhamsted School, Harrow, Merchant Taylors and Eton.
Additional
information
Council Tax Band: G
Local Authority: Buckinghamshire Council
EPC Rating: D
This inviting family home opens into a large reception hall featuring original herringbone parquet flooring and an open staircase. This level hosts a bright sitting room featuring a classic brick fireplace that flows seamlessly into the living room, with an adjoining conservatory providing a direct transition to the outdoors.. A well proportioned formal dining room offers an ideal space for entertaining, while a dedicated study provides a quiet retreat for home working. The substantial kitchen and breakfast room serves as the heart of the home, complemented by a traditional walk-in pantry, a convenient ground floor family bathroom, and direct access to the integrated garage.
The first floor is centered around a light-filled landing and offers four well-proportioned double bedrooms. The accommodation is highlighted by an impressive principal suite which enjoys dual aspects, built-in wardrobes, and a practical integrated sink. Each of the additional bedrooms offers elevated views of the leafy surroundings, ensuring a sense of peace and privacy throughout the upper level. These rooms are served by a spacious, tiled family bathroom suite featuring a wood-panelled bath and integrated storage solutions.
Gardens and Grounds
To the front, the property features a large integrated garage and a private gravelled driveway providing parking for multiple vehicles.
The exterior is a standout feature of the property, headlined by a deep, west-facing rear garden primarily laid to lawn and framed by mature specimen trees and lush herbaceous borders. A sheltered patio area and a charming covered loggia offer the perfect settings for alfresco dining and enjoying the afternoon sun.
Location
Woodside Avenue is one of the popular roads in Beaconsfield due to its central yet quiet location equidistant to both the Old and New Towns. It is only 0.1 of a mile from Beaconsfield High Street, with its excellent range of shopping facilities, coffee shops and restaurants and Beaconsfield Old Town, at 0.7 miles which has a further selection of popular venues, public houses and bars.
For commuters, there is a fast track train line within close proximity, giving swift access to London Marylebone in under 30 minutes. The M40 is within 2 miles, giving access to the M25 and M4, with Heathrow close by.
Buckinghamshire is renowned for its excellent choice of state and independent schools, including leading grammar schools, such as Beaconsfield High for Girls, Dr Challoner’s Boys Grammar School, Dr Challoner’s High School for Girls and The Royal Grammar School, as well as top private schools including Wycombe Abbey, The Royal Masonic, Berkhamsted School, Harrow, Merchant Taylors and Eton.
Additional
information
Council Tax Band: G
Local Authority: Buckinghamshire Council
EPC Rating: D
Mortgage calculator
Monthly repayment
£9,754 per month
Whole of market comparison
70+ lenders and 10,000+ products
The monthly repayments provided are estimates and should be used as a guide only. The actual amount you can borrow will depend on your personal financial situation and subject to a full application. For a more precise estimate, please use the Mojo mortgage calculator. Your home or property may be repossessed if you do not keep up repayments on your mortgage.



.png)