Guide price
£200,000
Land for saleColdhams Lane, Cambridge, Cambridgeshire CB1
2 beds
Freehold
About this property
Outline Planning
2 Bedroom Detached House
Great location
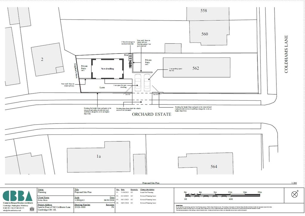
An opportunity to purchase a building plot in a central location offering excellent access to Cambridge City centre, benefitting from Outline Planning Consent to construct a two bedroom house with parking.
Location
Situated just off Coldhams Lane, which offers easy access to local amenities including but not limited to train station, Addenbrookes, arm, primary school and gym.
Planning Consent
Outline planning conset was granted on 16th January 2024 by Cambridge City Council under reference: 23/03377/out
Method of Sale
The plot is for sale by Private Treaty
Services
Interested parties are to make their own enquiries as to the location and provision of services.
Viewings are strictly by appointment with Carter Jonas New Homes
Location
Situated just off Coldhams Lane, which offers easy access to local amenities including but not limited to train station, Addenbrookes, arm, primary school and gym.
Planning Consent
Outline planning conset was granted on 16th January 2024 by Cambridge City Council under reference: 23/03377/out
Method of Sale
The plot is for sale by Private Treaty
Services
Interested parties are to make their own enquiries as to the location and provision of services.
Viewings are strictly by appointment with Carter Jonas New Homes
Mortgage calculator
Monthly repayment
£1,000 per month
Whole of market comparison
70+ lenders and 10,000+ products
The monthly repayments provided are estimates and should be used as a guide only. The actual amount you can borrow will depend on your personal financial situation and subject to a full application. For a more precise estimate, please use the Mojo mortgage calculator. Your home or property may be repossessed if you do not keep up repayments on your mortgage.



.png)