Offers over
£300,000
Land for saleCanalside, Redhill, Surrey RH1
Freehold
About this property
Planning permission granted
2 X 1 beds 3 X 2 beds 1 x 3 bed
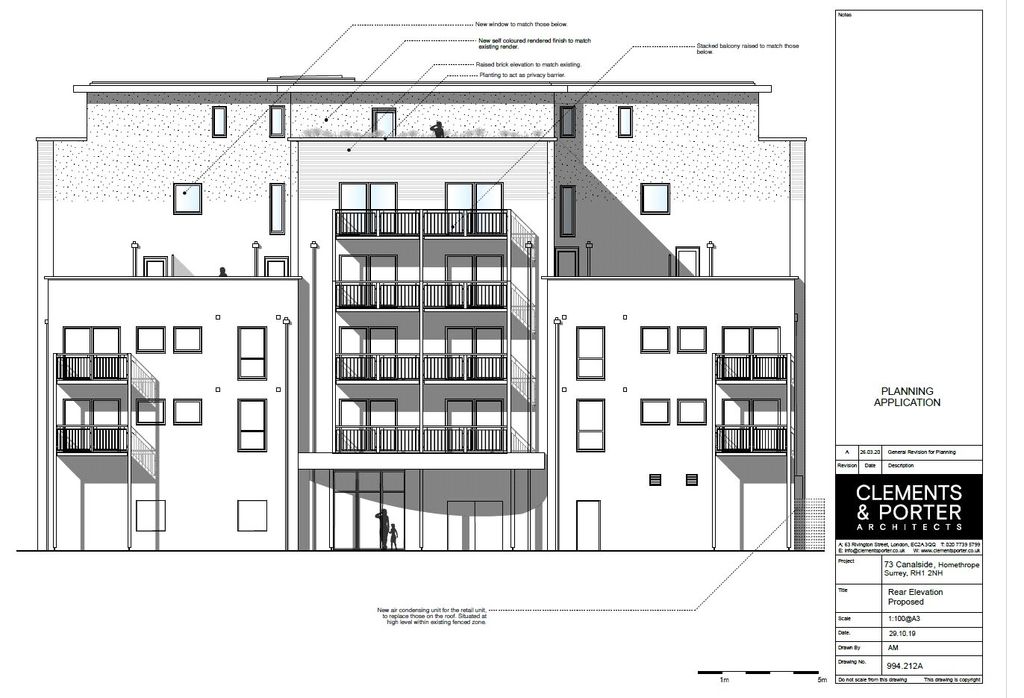
4th and floor floor extension
Purchase of freehold with
Planning permission
Burn and warne *development opportunity *planning consented for 2 X 1 beds 3 X 2 bed and 1 X 3 bed apartments, with further potential for 2 X 2 bed duplex apartments *good build to rent opportunity *gdv £1.85M estimated rental per annum circa £108'000 cil circa £35K
Burn And Warne are offering For Sale the freehold title of a development of 19 units (existing flats have no ground rents and 107 year leases) in Canalside Redhill
The sale of the Freehold title comes with benefit of full planning permission for 2 x one bedroom apartments 2 x two bedroom apartments and 1 x 3 bedroom on the 4th and 5th floor all capale of having lift service.
Planning reference at Reigate & Banstead is 22/02621/P and the cil calculation is approx £40k
Pleae call Neil Warne on for further details
Burn And Warne are offering For Sale the freehold title of a development of 19 units (existing flats have no ground rents and 107 year leases) in Canalside Redhill
The sale of the Freehold title comes with benefit of full planning permission for 2 x one bedroom apartments 2 x two bedroom apartments and 1 x 3 bedroom on the 4th and 5th floor all capale of having lift service.
Planning reference at Reigate & Banstead is 22/02621/P and the cil calculation is approx £40k
Pleae call Neil Warne on for further details
Mortgage calculator
Monthly repayment
£1,500 per month
Whole of market comparison
70+ lenders and 10,000+ products
The monthly repayments provided are estimates and should be used as a guide only. The actual amount you can borrow will depend on your personal financial situation and subject to a full application. For a more precise estimate, please use the Mojo mortgage calculator. Your home or property may be repossessed if you do not keep up repayments on your mortgage.



.png)