£475,000
Land for saleCarline Road, Lincoln LN1
Freehold
About this property
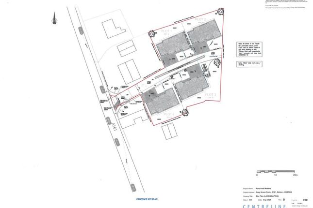
City of Lincoln Council Application Number: 2019/0465/ful
Planning for Two 4-storey Semi-Detached Houses with Garaging
Superb location overlooking the city in an uphill location
Sought-after Uphill Lincoln location
EPC Rating - N/A
A rare development land opportunity in a sought-after location. The land comprises two building plots with Planning Permission for a pair of 4-storey Semi-Detached Houses with Garaging. Alternatively, the site is considered potentially suitable for the development of one larger detached house (subject to Planning Permission). The site occupies a superb location overlooking the city, close to the Castle and Cathedral. City of Lincoln Council Application Number: 2019/0465/ful.
Location The property is situated in an established residential area in a superb location overlooking the city in an uphill location close to the castle and cathedral and within a few minutes for the downhill city centre and close to all amenities within the bailgate area and is within a short distance of the main city centre and the main University Campus. The historic Cathedral and University City of Lincoln has the usual High Street shops and department stores, plus banking and allied facilities, multiplex cinema, Marina and Art Gallery.
Description A rare development land opportunity in a sought-after location. The land comprises two building plots with Planning Permission for a pair of 4-storey Semi-Detached Houses with Garaging. Alternatively, the site is considered potentially suitable for the development of one larger detached house (subject to Planning Permission). The site occupies a superb location overlooking the city, close to the Castle and Cathedral. City of Lincoln Council Application Number: 2019/0465/ful.
Location The property is situated in an established residential area in a superb location overlooking the city in an uphill location close to the castle and cathedral and within a few minutes for the downhill city centre and close to all amenities within the bailgate area and is within a short distance of the main city centre and the main University Campus. The historic Cathedral and University City of Lincoln has the usual High Street shops and department stores, plus banking and allied facilities, multiplex cinema, Marina and Art Gallery.
Description A rare development land opportunity in a sought-after location. The land comprises two building plots with Planning Permission for a pair of 4-storey Semi-Detached Houses with Garaging. Alternatively, the site is considered potentially suitable for the development of one larger detached house (subject to Planning Permission). The site occupies a superb location overlooking the city, close to the Castle and Cathedral. City of Lincoln Council Application Number: 2019/0465/ful.
Mortgage calculator
Monthly repayment
£2,376 per month
Whole of market comparison
70+ lenders and 10,000+ products
The monthly repayments provided are estimates and should be used as a guide only. The actual amount you can borrow will depend on your personal financial situation and subject to a full application. For a more precise estimate, please use the Mojo mortgage calculator. Your home or property may be repossessed if you do not keep up repayments on your mortgage.



.png)