£1,250,000
(£1,020/sq. ft)
3 bed bungalow for saleMegg Lane, Chipperfield, Kings Langley, Hertfordshire WD4
3 beds
2 baths
1 reception
1,226 sq. ft
Freehold
About this property
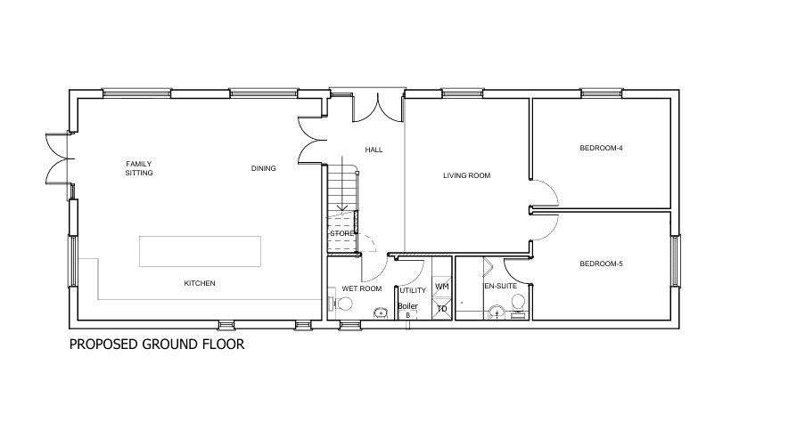
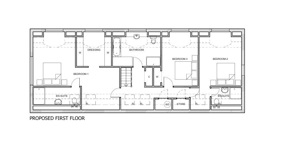
Planning permission granted for a first-floor extension increasing living space to approximatley 2300 sq ft
Elegant country home in the sought-after village of Chipperfield
Set on a substantial plot (1.29 acres)
Long driveway leading to the residence
Three spacious bedrooms
Principal suite with en-suite and walk-in shower
Open-plan kitchen/dining room
Generous family living room
Private patio garden, perfect for relaxation and entertaining
Council tax band – tbc
** development potential ** Welcome to Birch Lodge, an elegant and spacious country home nestled in the heart of the picturesque and highly sought-after village of Chipperfield.
With planning permission granted to add a first floor, allowing for further expansion and customization to suit your needs.
Offering a unique blend of charm, and modern convenience, this delightful bungalow presents a fantastic opportunity to own a stunning residence set on a generous plot of 1.29 acres of land.
Step inside and discover 1,126 sq. Ft. Of beautifully arranged living space, designed for comfort and functionality. The entrance hallway, complete with ample storage, leads to a well-appointed guest WC and a stylish family bathroom suite. The property boasts three spacious bedrooms, including a superb principal suite with a luxurious en-suite featuring a walk-in shower.
The heart of the home is the inviting family living room, accessed via elegant double doors from the hallway. A further set of double doors seamlessly connects to the open-plan kitchen and dining area-perfect for entertaining and everyday family life. With its bright and airy atmosphere, this space creates an effortless flow between indoor and outdoor living, leading out to a private patio garden, ideal for relaxing and hosting guests.
A long driveway enhances the sense of privacy, guiding you through the expansive grounds up to the residence. The impressive plot offers ample outdoor space, ensuring peace and seclusion in a truly idyllic setting. Additionally, full planning permission has been granted to add a first floor, allowing for further expansion and customisation to suit your needs.
Birch Lodge enjoys an enviable position in the charming village of Chipperfield. This thriving community features a village primary school, a cricket and tennis club, a general store, and several popular public houses. The nearby towns of Hemel Hempstead and Watford provide more extensive amenities, while excellent transport links make commuting effortless.
Rickmansworth and Chorleywood offer access to the Metropolitan Line to Baker Street and The City, as well as the Chiltern Turbo to Marylebone. Kings Langley Mainline Station provides a direct service to London Euston, and the M25 is easily accessible at Junctions 18 and 20.
With planning permission granted to add a first floor, allowing for further expansion and customization to suit your needs.
Offering a unique blend of charm, and modern convenience, this delightful bungalow presents a fantastic opportunity to own a stunning residence set on a generous plot of 1.29 acres of land.
Step inside and discover 1,126 sq. Ft. Of beautifully arranged living space, designed for comfort and functionality. The entrance hallway, complete with ample storage, leads to a well-appointed guest WC and a stylish family bathroom suite. The property boasts three spacious bedrooms, including a superb principal suite with a luxurious en-suite featuring a walk-in shower.
The heart of the home is the inviting family living room, accessed via elegant double doors from the hallway. A further set of double doors seamlessly connects to the open-plan kitchen and dining area-perfect for entertaining and everyday family life. With its bright and airy atmosphere, this space creates an effortless flow between indoor and outdoor living, leading out to a private patio garden, ideal for relaxing and hosting guests.
A long driveway enhances the sense of privacy, guiding you through the expansive grounds up to the residence. The impressive plot offers ample outdoor space, ensuring peace and seclusion in a truly idyllic setting. Additionally, full planning permission has been granted to add a first floor, allowing for further expansion and customisation to suit your needs.
Birch Lodge enjoys an enviable position in the charming village of Chipperfield. This thriving community features a village primary school, a cricket and tennis club, a general store, and several popular public houses. The nearby towns of Hemel Hempstead and Watford provide more extensive amenities, while excellent transport links make commuting effortless.
Rickmansworth and Chorleywood offer access to the Metropolitan Line to Baker Street and The City, as well as the Chiltern Turbo to Marylebone. Kings Langley Mainline Station provides a direct service to London Euston, and the M25 is easily accessible at Junctions 18 and 20.



.png)