Offers over
£350,000
Land for saleRidge Road, Kempston, Bedford, Bedfordshire MK43
EPC Rating: C
Freehold
About this property
Building Plot
Planning permission granted
Foundations have been completed.
Great location
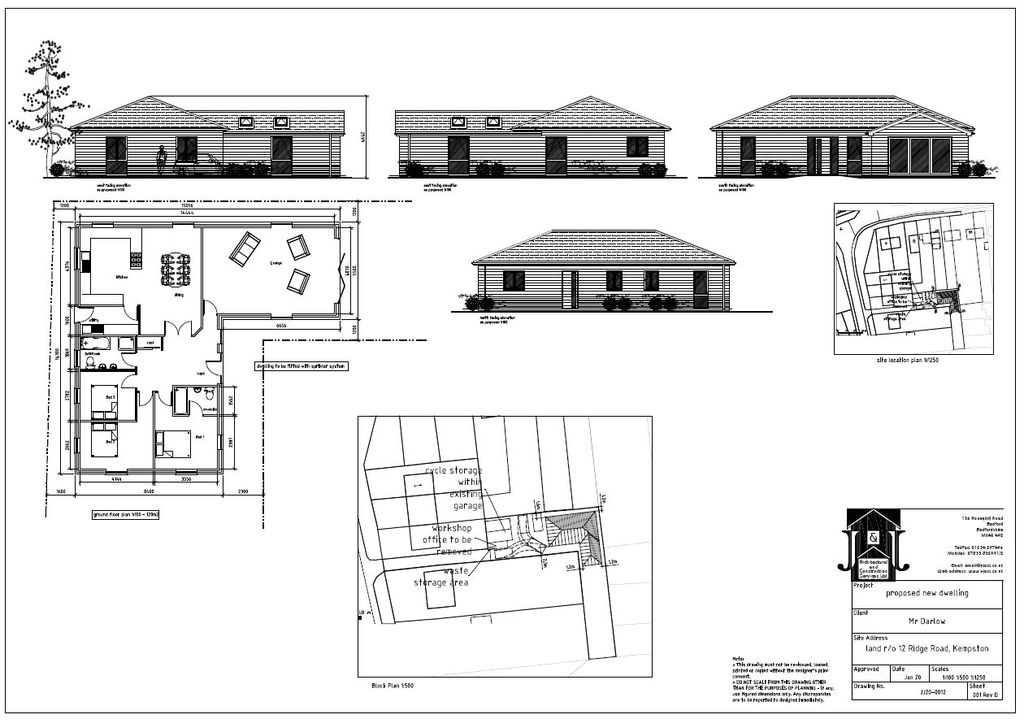
Exciting Opportunity: Self-Build Plot with Full Planning Permission in Kempston
This is your chance to acquire a fantastic self-build plot with full planning permission for a stunning detached 3-bedroom bungalow (approx. 1,500 sq. Ft gia). Set on a generous 0.18-acre L-shaped plot, this prime location offers the perfect foundation for your dream home.
Key features of the site include:
• Full Planning Permission for a 3-bedroom bungalow and a garage with separate store room (already constructed under a separate decision notice).
• Prime Location: Convenient access via Wootton Road, between house numbers 5 and 7, in the desirable town of Kempston, Bedfordshire.
• Proximity to Bedford: Just 2 miles from Bedford town centre, offering easy access to local amenities, schools, and transport links (train services to London and other major cities)
• Excellent Road Links: Close to the A421, providing quick access to the M1 (junction 13 is a 10–15-minute drive), as well as Milton Keynes and other key locations.
• Why Kempston? Kempston blends suburban comfort with rural charm. It offers a range of shops, schools, and leisure facilities, including parks, gyms, and sports clubs. With Bedford just a short distance away, you’ll also have access to a broader selection of amenities and educational institutions.
This is a rare opportunity to create your perfect home in a sought-after location with excellent connections and everything you need right at your doorstep.
For full planning details, please refer to the planning application links below.
Bungalow 20/02154/ful Won at appeal
Garage
Planning ref 24/00991/S73A
This is your chance to acquire a fantastic self-build plot with full planning permission for a stunning detached 3-bedroom bungalow (approx. 1,500 sq. Ft gia). Set on a generous 0.18-acre L-shaped plot, this prime location offers the perfect foundation for your dream home.
Key features of the site include:
• Full Planning Permission for a 3-bedroom bungalow and a garage with separate store room (already constructed under a separate decision notice).
• Prime Location: Convenient access via Wootton Road, between house numbers 5 and 7, in the desirable town of Kempston, Bedfordshire.
• Proximity to Bedford: Just 2 miles from Bedford town centre, offering easy access to local amenities, schools, and transport links (train services to London and other major cities)
• Excellent Road Links: Close to the A421, providing quick access to the M1 (junction 13 is a 10–15-minute drive), as well as Milton Keynes and other key locations.
• Why Kempston? Kempston blends suburban comfort with rural charm. It offers a range of shops, schools, and leisure facilities, including parks, gyms, and sports clubs. With Bedford just a short distance away, you’ll also have access to a broader selection of amenities and educational institutions.
This is a rare opportunity to create your perfect home in a sought-after location with excellent connections and everything you need right at your doorstep.
For full planning details, please refer to the planning application links below.
Bungalow 20/02154/ful Won at appeal
Garage
Planning ref 24/00991/S73A



.png)