£100,000
Land for saleMallory Road, Norton, Stockton-On-Tees TS20
3 beds
2 baths
1 reception
EPC Rating: D
About this property
Plot of land
Planning appoved
Ref. No: 23/1543/ful
Four bedrooms
Two reception rooms
Close to norton high street
Summary
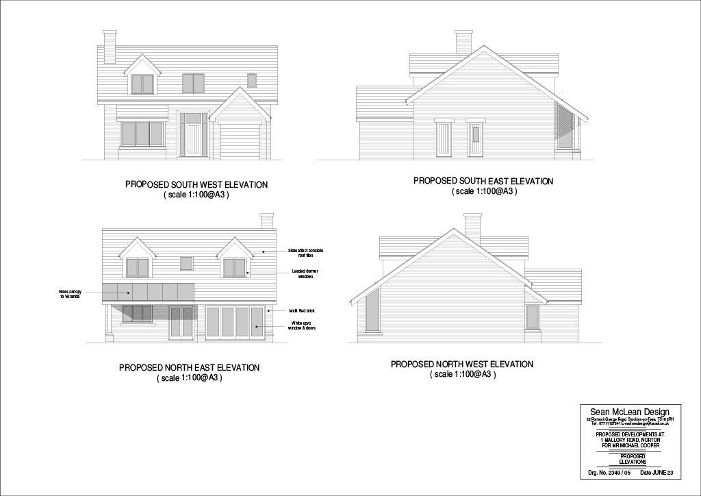
A rare and exciting proposal to build a house to your own specification with planning permission granted for a three bedroom detached dwelling all within a short walk of Norton High Street and Village Green. Planning application can be seen from Ref. No: 23/1543/ful
Council Tax Band: C
Tenure: Freehold
A rare and exciting proposal to build a house to your own specification with planning permission granted for a three bedroom detached dwelling all within a short walk of Norton High Street and Village Green. Planning application can be seen from Ref. No: 23/1543/ful
Council Tax Band: C
Tenure: Freehold
Mortgage calculator
Monthly repayment
£500 per month
Whole of market comparison
70+ lenders and 10,000+ products
The monthly repayments provided are estimates and should be used as a guide only. The actual amount you can borrow will depend on your personal financial situation and subject to a full application. For a more precise estimate, please use the Mojo mortgage calculator. Your home or property may be repossessed if you do not keep up repayments on your mortgage.



.png)