£450,000
Land for saleCrowhurst TN33
Freehold
About this property
Development Site
Foundations commenced
4 three bedroom semi detached homes
Central village location
Rural outlook
Note: The owners have paid the cil payment and £95,000 will be payable in addition to the sale price.
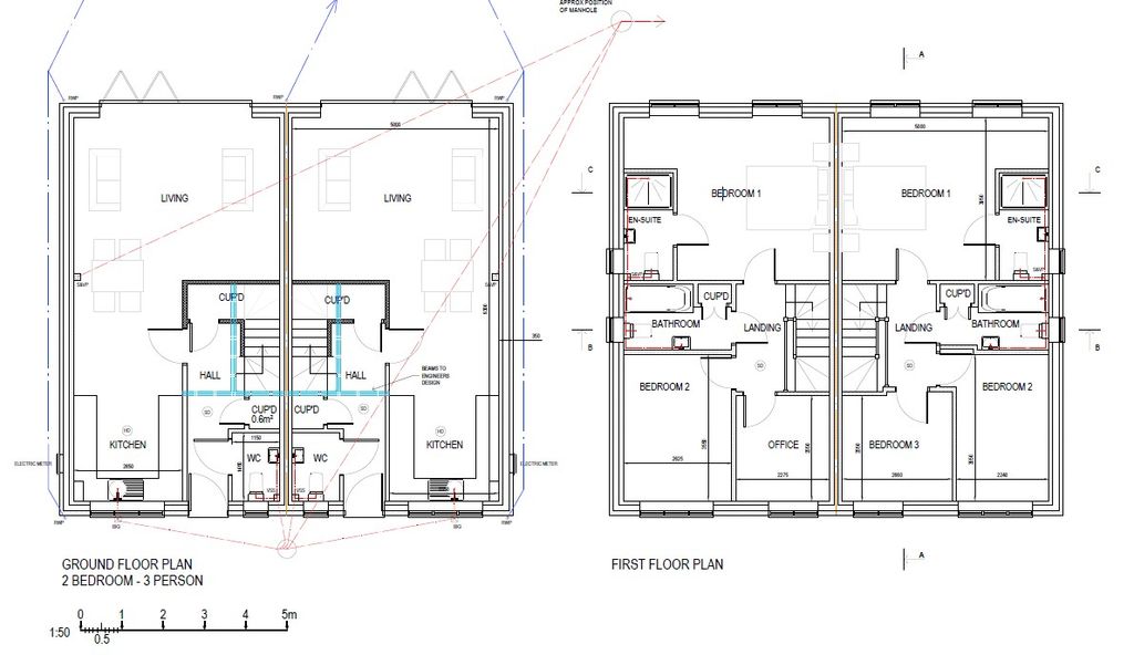
The foundations have been commenced at this development site for four three bedroom semi detached houses that occupy a tucked away location in the centre of the village granted under planning reference: Rr/2020/945/P. The planning allows for a new private driveway, parking and two pairs of three bedroom semi detached houses of circa 93 sq.m. The proposed accommodation will provide a reception hall, cloakroom and large open plan kitchen, living, dining area to the ground floor with three first floor bedrooms, the master with en-suite and separate bathroom. Outside a new driveway will provide access to turning and parking and each of the properties will enjoy gardens to the rear with an attractive rural outlook. For further details or to arrange a site visit please contact us on .
Note: We are advised that all pre-commencement conditions, including the service water strategy and mains drains connections have been designed and approved.
The foundations have been commenced at this development site for four three bedroom semi detached houses that occupy a tucked away location in the centre of the village granted under planning reference: Rr/2020/945/P. The planning allows for a new private driveway, parking and two pairs of three bedroom semi detached houses of circa 93 sq.m. The proposed accommodation will provide a reception hall, cloakroom and large open plan kitchen, living, dining area to the ground floor with three first floor bedrooms, the master with en-suite and separate bathroom. Outside a new driveway will provide access to turning and parking and each of the properties will enjoy gardens to the rear with an attractive rural outlook. For further details or to arrange a site visit please contact us on .
Note: We are advised that all pre-commencement conditions, including the service water strategy and mains drains connections have been designed and approved.
Mortgage calculator
Monthly repayment
£2,251 per month
Whole of market comparison
70+ lenders and 10,000+ products
The monthly repayments provided are estimates and should be used as a guide only. The actual amount you can borrow will depend on your personal financial situation and subject to a full application. For a more precise estimate, please use the Mojo mortgage calculator. Your home or property may be repossessed if you do not keep up repayments on your mortgage.



.png)