Offers in region of
£550,000
Land for saleRotherham Road, Barnsley S71
Freehold
About this property
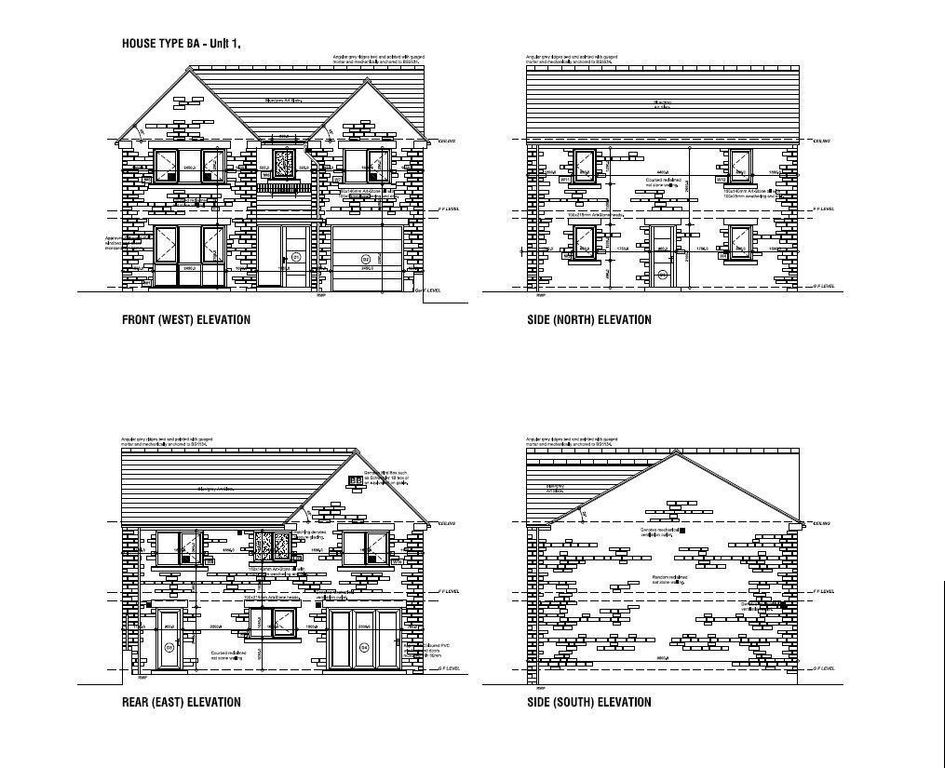
- Planning permission granted for X5 stone built detached homes.
- Large building plot
- Gated development
Exciting Investment Opportunity: Land for Sale on Rotherham Road, Barnsley
Discover an exceptional investment opportunity with this prime building plot located on Rotherham Road, Barnsley. Situated in one of the most up-and-coming areas in the region, this land is poised for high demand in the near future, making it a perfect choice for developers and investors looking to capitalize on the area's growth.
Planning Permission Approved
This plot comes with full planning permission to build five high-specification properties, each with an estimated market value of £450,000. With detailed plans already approved, you can start building right away without the hassle of delays or uncertainties. The properties have been designed with modern living in mind, offering spacious layouts and high-end finishes, ensuring they meet the needs of today’s discerning homebuyers.
Infrastructure Ready
The plot is already connected to the essential utilities, with plans for gas and electric mains in place. This makes the development process smooth and efficient, providing you with a hassle-free experience from start to finish.
Prime Location in a Thriving Area
Barnsley is rapidly emerging as a thriving hub for both residential and commercial development. The surrounding area is undergoing significant regeneration, with increased investment in infrastructure, transport links, and amenities. This makes the land on Rotherham Road a highly attractive prospect, not only for building quality homes but also as a long-term investment opportunity.
The increasing demand for housing in this region, combined with the rising property values, ensures that this land offers strong capital appreciation potential. It’s an opportunity not to be missed for developers looking to capitalize on Barnsley’s growing appeal.
- Large building plot
- Gated development
Exciting Investment Opportunity: Land for Sale on Rotherham Road, Barnsley
Discover an exceptional investment opportunity with this prime building plot located on Rotherham Road, Barnsley. Situated in one of the most up-and-coming areas in the region, this land is poised for high demand in the near future, making it a perfect choice for developers and investors looking to capitalize on the area's growth.
Planning Permission Approved
This plot comes with full planning permission to build five high-specification properties, each with an estimated market value of £450,000. With detailed plans already approved, you can start building right away without the hassle of delays or uncertainties. The properties have been designed with modern living in mind, offering spacious layouts and high-end finishes, ensuring they meet the needs of today’s discerning homebuyers.
Infrastructure Ready
The plot is already connected to the essential utilities, with plans for gas and electric mains in place. This makes the development process smooth and efficient, providing you with a hassle-free experience from start to finish.
Prime Location in a Thriving Area
Barnsley is rapidly emerging as a thriving hub for both residential and commercial development. The surrounding area is undergoing significant regeneration, with increased investment in infrastructure, transport links, and amenities. This makes the land on Rotherham Road a highly attractive prospect, not only for building quality homes but also as a long-term investment opportunity.
The increasing demand for housing in this region, combined with the rising property values, ensures that this land offers strong capital appreciation potential. It’s an opportunity not to be missed for developers looking to capitalize on Barnsley’s growing appeal.
Mortgage calculator
Monthly repayment
£2,751 per month
Whole of market comparison
70+ lenders and 10,000+ products
The monthly repayments provided are estimates and should be used as a guide only. The actual amount you can borrow will depend on your personal financial situation and subject to a full application. For a more precise estimate, please use the Mojo mortgage calculator. Your home or property may be repossessed if you do not keep up repayments on your mortgage.



.png)