£900,000
Land for saleNewhouse Lane, Upton Warren, Bromsgrove, Worcestershire B61
Auction
About this property
Opportunity to acquire a Development Site
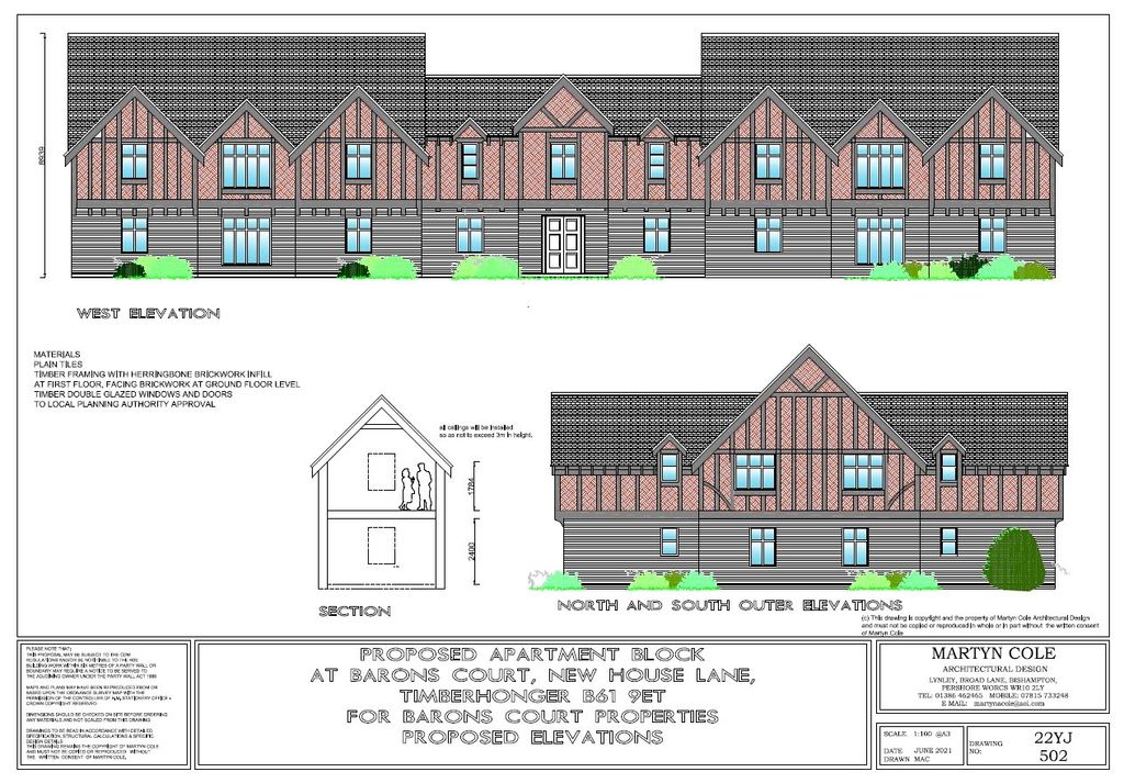
With previous planning granted for 13 units
Covering approximately 1.2 acres
Opportunity to acquire further land by separate negotiation.
Opportunity to acquire a Development Site with previous planning granted for 13 units
Location
The site covering approximately 1.2 acres consists of a large single storey industrial building along with an agricultural barn, to the North and West of the building are existing areas of hard standing. The site is situated within the West Midlands Green Belt and there is a residential area sited to the South-West of the site containing a Grade II listed granary. It has been historically used as a farm and for jewellery manufacture. The existing access from Newhouse Lane to the site will be utilised although a new private estate road can be constructed to provide a private gated community with the necessary planning permissions. There is also an opportunity to acquire further land by separate negotiation.
Planning
Wychavon DC W/23/01203/ful Proposed development of 10 dwellings application valid Date 10/07/2023 – Status Refused 25/04/2024
21/00176/gpza Application Type gpza - Demolition of buildings and construction of new dwelling houses in their place – Prior notification for the proposed demolition of a building and the construction of 10 new dwelling houses in its place – granted 02/07/2021, now lapsed.
21/01650/gpdq Application Type gpdq - agricultural to C3 dwelling house. Notification for prior approval for the proposed change of use of an agricultural building to three dwelling house (Class C3) and associated operational development – granted 08/09/2021, now lapsed..
Directions
From Bromsgrove, head south-west on Market Street/A448 towards Church Street then continue to follow A448 for 0.2 miles. At the roundabout, take the 2nd exit onto Kidderminster Road/A448 after 0.7 miles turn left onto Whitford Road. Then turn left to stay on Whitford Road, after 0.3 miles turn right onto Timberhonger Lane then after 1.8 miles turn right onto Newhouse Lane. After 0.3 miles take a slight right, the destination will be on the right. Take the private driveway on the right for approximately 150 meters to arrive at the site.
Town & Country Planning
Interested parties should make their own enquiries with Wychavon District Planning Department.
Viewings
Viewings are strictly by appointment however the site can also be viewed from the roadside.
Services & Tenure
To be sold with freehold title and full vacant possession, there are no leases.
We have not been advised that the site is affected by any onerous covenants or restrictions, which may affect title or future uses. We understand that all BT, fibre, mains water, electricity and 3 phase electricity are located at the site.
Important Notes
Any S106 or cil to be paid for by the Purchaser
Method of Sale
This land is offered through Modern Method of Auction. Should you view, offer or bid your data will be shared with the Auctioneer, iamsold Limited. This method requires both parties to complete the transaction within 56 days, allowing buyers to proceed with mortgage finance (subject to lending criteria, affordability and survey). The buyer is required to sign a reservation agreement and make payment of a non-refundable Reservation Fee of 4.5% of the purchase price including VAT, subject to a minimum of £6,600.00 including VAT. This fee is paid in addition to purchase price and will be considered as part of the chargeable
consideration for the property in the calculation for stamp duty liability. Buyers will be required to complete an identification process with iamsold and provide proof of how the purchase would be funded.
The property has a Buyer Information Pack containing documents about the property. The documents may not tell you everything you need to know, so you must complete your own due diligence before bidding. A sample of the Reservation Agreement and terms and conditions are contained within this pack.
The buyer will also make payment of £300 inc. VAT towards the preparation cost of the pack. The estate agent and auctioneer may recommend the services of other providers to you, in which they will be paid for the referral. These services are optional, and you will be advised of any payment, in writing before any services are accepted. Listing is subject to a start price and undisclosed reserve price that can change.
Location
The site covering approximately 1.2 acres consists of a large single storey industrial building along with an agricultural barn, to the North and West of the building are existing areas of hard standing. The site is situated within the West Midlands Green Belt and there is a residential area sited to the South-West of the site containing a Grade II listed granary. It has been historically used as a farm and for jewellery manufacture. The existing access from Newhouse Lane to the site will be utilised although a new private estate road can be constructed to provide a private gated community with the necessary planning permissions. There is also an opportunity to acquire further land by separate negotiation.
Planning
Wychavon DC W/23/01203/ful Proposed development of 10 dwellings application valid Date 10/07/2023 – Status Refused 25/04/2024
21/00176/gpza Application Type gpza - Demolition of buildings and construction of new dwelling houses in their place – Prior notification for the proposed demolition of a building and the construction of 10 new dwelling houses in its place – granted 02/07/2021, now lapsed.
21/01650/gpdq Application Type gpdq - agricultural to C3 dwelling house. Notification for prior approval for the proposed change of use of an agricultural building to three dwelling house (Class C3) and associated operational development – granted 08/09/2021, now lapsed..
Directions
From Bromsgrove, head south-west on Market Street/A448 towards Church Street then continue to follow A448 for 0.2 miles. At the roundabout, take the 2nd exit onto Kidderminster Road/A448 after 0.7 miles turn left onto Whitford Road. Then turn left to stay on Whitford Road, after 0.3 miles turn right onto Timberhonger Lane then after 1.8 miles turn right onto Newhouse Lane. After 0.3 miles take a slight right, the destination will be on the right. Take the private driveway on the right for approximately 150 meters to arrive at the site.
Town & Country Planning
Interested parties should make their own enquiries with Wychavon District Planning Department.
Viewings
Viewings are strictly by appointment however the site can also be viewed from the roadside.
Services & Tenure
To be sold with freehold title and full vacant possession, there are no leases.
We have not been advised that the site is affected by any onerous covenants or restrictions, which may affect title or future uses. We understand that all BT, fibre, mains water, electricity and 3 phase electricity are located at the site.
Important Notes
Any S106 or cil to be paid for by the Purchaser
Method of Sale
This land is offered through Modern Method of Auction. Should you view, offer or bid your data will be shared with the Auctioneer, iamsold Limited. This method requires both parties to complete the transaction within 56 days, allowing buyers to proceed with mortgage finance (subject to lending criteria, affordability and survey). The buyer is required to sign a reservation agreement and make payment of a non-refundable Reservation Fee of 4.5% of the purchase price including VAT, subject to a minimum of £6,600.00 including VAT. This fee is paid in addition to purchase price and will be considered as part of the chargeable
consideration for the property in the calculation for stamp duty liability. Buyers will be required to complete an identification process with iamsold and provide proof of how the purchase would be funded.
The property has a Buyer Information Pack containing documents about the property. The documents may not tell you everything you need to know, so you must complete your own due diligence before bidding. A sample of the Reservation Agreement and terms and conditions are contained within this pack.
The buyer will also make payment of £300 inc. VAT towards the preparation cost of the pack. The estate agent and auctioneer may recommend the services of other providers to you, in which they will be paid for the referral. These services are optional, and you will be advised of any payment, in writing before any services are accepted. Listing is subject to a start price and undisclosed reserve price that can change.
Mortgage calculator
Monthly repayment
£4,502 per month
Whole of market comparison
70+ lenders and 10,000+ products
The monthly repayments provided are estimates and should be used as a guide only. The actual amount you can borrow will depend on your personal financial situation and subject to a full application. For a more precise estimate, please use the Mojo mortgage calculator. Your home or property may be repossessed if you do not keep up repayments on your mortgage.
More information
Tenure
Council tax band
A band has not yet been confirmed.



.png)