£170,000
Land for saleSouthampton Row, Pembroke Dock, Pembrokeshire SA72
Freehold
About this property
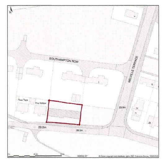
Development land with planning consent
Planning consent for, four semi-detached houses
Planning Application Number: 24/0229/pa.
Private parking to the front
Gardens to the front side and rear
*** Development land with planning consent ***
Planning consent for, four semi-detached houses on a vacant parcel of land sited in Pembroke Dock fronting Victoria Road. The land slopes steeply from south to north and the area is characterised by mixed residential development.
This full application seeks consent for the erection of 4 dwellings comprising 2 pairs of semi-detached dwellings, the dwellings would be set back from the road with private parking to the front and gardens to the front side and rear. The dwellings which would have the appearance of a single storey dwelling from the road frontage to the south and being three storeys to the rear to take advantage of the steeply sloping nature of the site.
Planning Application Number: 24/0229/pa.
Link for further planning information:
Services
Mains services are close to the development land ready for connection etc.
Directions
For sat nav please use postcode - SA72 6YE
what3words ///destined.walked.clinic
Planning Consent
Planning consent for, four semi-detached houses on a vacant parcel of land sited in Pembroke Dock fronting Victoria Road. The land slopes steeply from south to north and the area is characterised by mixed residential development.
This full application seeks consent for the erection of 4 dwellings comprising 2 pairs of semi-detached dwellings, the dwellings would be set back from the road with private parking to the front and gardens to the front side and rear. The dwellings which would have the appearance of a single storey dwelling from the road frontage to the south and being three storeys to the rear to take advantage of the steeply sloping nature of the site.
Planning Application Number: 24/0229/pa.
Link for further planning information:
Services
Mains services are close to the development land ready for connection etc.
Directions
For sat nav please use postcode - SA72 6YE
what3words ///destined.walked.clinic
Planning Consent
Mortgage calculator
Monthly repayment
£850 per month
Whole of market comparison
70+ lenders and 10,000+ products
The monthly repayments provided are estimates and should be used as a guide only. The actual amount you can borrow will depend on your personal financial situation and subject to a full application. For a more precise estimate, please use the Mojo mortgage calculator. Your home or property may be repossessed if you do not keep up repayments on your mortgage.



.png)