Guide price
£325,000
5 bed detached house for saleBlue House, Midlothian, Pathhead EH37
5 beds
2 receptions
About this property
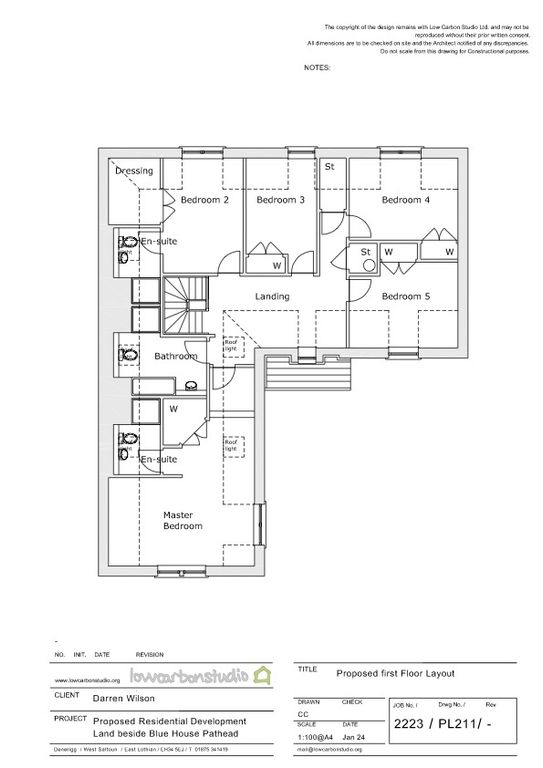
Rare development opportunity to create 2 bespoke 5 bedroom detached family homes
Planning ref 24/00121/ppp
Site area 2,250 m2
Peaceful yet accessible location
The proposed houses are family homes with 5 bedrooms, good size living/dining spaces and a utility room linked to double garages. The site is located in the countryside approximately half a mile north east of Pathead, adjacent to a group of 2 existing houses and out buildings. Located south west of the existing Blue House and Grey Barn with boundaries on the east to the existing road and east/south boundaries to the adjacent agricultural land.
Full planning details available via Council Website and available via email on request.
*Please note a buyers premium may apply*
EPC rating: Exempt.
Full planning details available via Council Website and available via email on request.
*Please note a buyers premium may apply*
EPC rating: Exempt.
Mortgage calculator
Monthly repayment
£1,625 per month
Whole of market comparison
70+ lenders and 10,000+ products
The monthly repayments provided are estimates and should be used as a guide only. The actual amount you can borrow will depend on your personal financial situation and subject to a full application. For a more precise estimate, please use the Mojo mortgage calculator. Your home or property may be repossessed if you do not keep up repayments on your mortgage.



.png)