£390,000
Land for saleWater Lane, Sherington, Newport Pagnell, Buckinghamshire MK16
Freehold
About this property
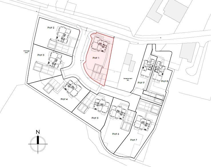
Fully serviced building plot
Planning for 4 bedroom detached house
Approximately 2,000 sq/ft
Plot price £390,000 freehold
Call for further details
Situated in the sought after village of Sherington, this superb building plot presents a rare opportunity to create your dream home in a picturesque countryside setting.
Fully serviced building plot with existing planning for a four bedroom detached circa 2,000 square foot
Fully serviced building plot with existing planning for a four bedroom detached circa 2,000 square foot
Mortgage calculator
Monthly repayment
£1,950 per month
Whole of market comparison
70+ lenders and 10,000+ products
The monthly repayments provided are estimates and should be used as a guide only. The actual amount you can borrow will depend on your personal financial situation and subject to a full application. For a more precise estimate, please use the Mojo mortgage calculator. Your home or property may be repossessed if you do not keep up repayments on your mortgage.



.png)