£500,000
(£246/sq. ft)
5 bed detached house for saleStation Road, Willingham CB24
5 beds
2 baths
4 receptions
2,034 sq. ft
EPC Rating: G
About this property
Substantial 1930s detached house
Partially complete renovation opportunity
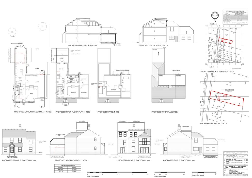
Ground floor extension and installation of dormer window already complete
Planning permission ref: 22/01781/hful
Four reception rooms on ground floor
Four first floor bedrooms and second floor master bedroom
0.15 acre plot backing on to fields
Located one mile away from the Guided Bus
189 Sqm, EPC G
The property benefits from live planning consent to convert the former house into the proposed 5 bedroom property. This work completed so far includes the construction of the ground floor extension and the addition of a wide dormer window across the back elevation of the loft to create a second floor master bedroom with a large ensuite.
Full planning details can be found on the South Cambs Planning portal using reference: 22/01781/hful.
The property is currently stripped back to the structure and is ready for electric and plumbing to be installed. The property does not have central heating or fitted kitchens and bathrooms and therefore is unlikely to be suitable to buy with a mortgage, although development/bridging finance can be provided by the sellers for a suitable buyer.
Potential stamp duty exemption
As the property is currently in an uninhabitable condition, it may be that sdlt exemptions could be applied to reduce any potential sdlt liability. This would be dependent on several factors including the purchasers own situation such as being a corporate entity purchaser or private individual. We would recommend that specific advice is taken in this regard.
Accommodation
The ground floor comprises an entrance hall, cloakroom, sitting room, dining room opening to a living room, and an extended kitchen/breakfast room with a door to the garden. On the first floor there are four bedrooms and unfitted rooms for a family bathroom, shower room and ensuite. The loft has been partially converted with the installation of wide dormer window across the rear of the house, which would allow for a fifth bedroom and ensuite. There is a gravelled front driveway providing parking for two/three cars.
Location
Willingham is approximately 12 miles northwest of Cambridge and offers excellent access into Cambridge via the recently expanded and improved A14, which leads onto M11 south and A1 north.
Popular for both cyclists and runners, the guided busway also provides a well-used cycle path parallel to the bus route. This is a direct route into Cambridge and stops at Cambridge North, the city centre and Addenbrooke's. With a Tesco superstore, petrol station and precinct of shops in nearby Bar Hill.
The village is well served with facilities including two village stores, two churches, two public houses, bakery, butchers and farm shop, doctor's surgery, pharmacy, library, takeaway, cafe, hairdressers, car repairs, primary school and nurseries, post office, auction rooms with tea rooms and an outside eatery, independent veterinary clinic, pet supplies store, a number of small businesses in the village centre.
There is also a recreation ground with play area, football pitches, bowls club, and sports pavilion, as well as a community centre, community orchard and social club.
The local primary school is located in the village and has recently been rated as 'Good' by Ofsted. The village is in the catchment area for Cottenham Village College and Sixth Form and the recently opened Northstowe Secondary School.
EPC Rating: G
Mortgage calculator
£2,501 per month
70+ lenders and 10,000+ products
The monthly repayments provided are estimates and should be used as a guide only. The actual amount you can borrow will depend on your personal financial situation and subject to a full application. For a more precise estimate, please use the Mojo mortgage calculator. Your home or property may be repossessed if you do not keep up repayments on your mortgage.



.png)