Offers in region of
£500,000
Detached house for saleOwens Farm, Broad Lane, Aughton L39
EPC Rating: D
Freehold
About this property
Excellent development opportunity in an idyllic rural setting
Two bedrooms with en suites and family bathroom to the first floor
Brick-built barn with planning permission for three dwellings
Dwelling three to be a five-bedroom mews property
Option to purchase with Farmhouse with 3 acres and agricultural barn with 26
Benefitting from three available parking spaces
Dwelling one and two to be three-bedroom mews propertys
Open-plan living-dining-kitchen
Enjoying a kitchen-dining space and separate living area
Separate reception room, study and w.c. To ground floor
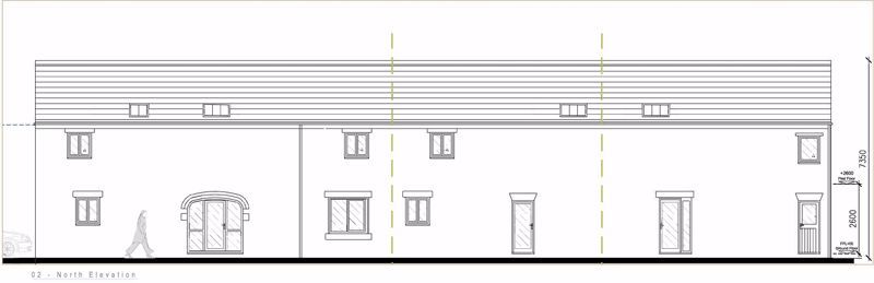
The introduction of this brick-built barn brings an exciting opportunity to develop three mews-type properties; dwellings one and two will be three bedroom mews, and dwelling three is to be a five bedroom property. Full planning consent has be obtained and is detailed below.
This brick-built barn is currently part of the Owens Farm estate which comprises of a five-bedroom, period Farm house with three acres of gardens and an agricultural barn with 26 acres of land. The option to purchase the main Farm house with three acres and the agricultural barn is also available both separately or altogether.
Ground Floor...
The ground floor of dwellings one and two consists of a dining-kitchen, separate reception room, w.c. And boot room.
The third dwelling is designed with a living-dining-kitchen area, separate reception, study and w.c. To its ground floor.
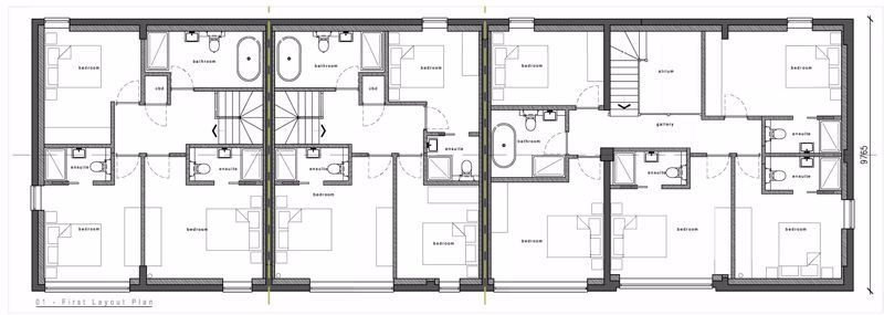
First Floor...
Dwellings one and two have been proposed as three-bedroom mews properties. Two of the bedrooms are to be equipped with an en suite, whilst a family bathroom services the third bedroom.
Dwelling number three is to be a five-bedroom mews, with three of the five bedrooms enjoying en suite facilities.
Parking
The barns will have ranch-style parking in the attached open-fronted hay barn. This offers two parking spaces each for dwellings one and two and three spaces for dwelling number three.
Planning Reference: 2023/1041/lbc
Please contact a member of our team and we will be happy to provide any further information required.
Viewing is strictly by appointment through Maria B Evans Estate Agents
We are reliably informed that the Tenure of the property is Freehold
The Local Authority is West Lancashire Borough Council
The property is served by septic tank
Please note:
Room measurements given in these property details are approximate and are supplied as a guide only.
All land measurements are supplied by the Vendor and should be verified by the buyer's solicitor. We
would advise that all services, appliances and heating facilities be confirmed in working order by an
appropriately registered service company or surveyor on behalf of the buyer as Maria B. Evans Estate
Agency cannot be held responsible for any faults found. No responsibility can be accepted for any
expenses incurred by prospective purchasers.
Sales Office: 34 Town Road, Croston, PR26 9RB T: Rentals T: W: E:
Company No 8160611 Registered Office: 5a The Common, Parbold, Lancs WN8 7HA
This brick-built barn is currently part of the Owens Farm estate which comprises of a five-bedroom, period Farm house with three acres of gardens and an agricultural barn with 26 acres of land. The option to purchase the main Farm house with three acres and the agricultural barn is also available both separately or altogether.
Ground Floor...
The ground floor of dwellings one and two consists of a dining-kitchen, separate reception room, w.c. And boot room.
The third dwelling is designed with a living-dining-kitchen area, separate reception, study and w.c. To its ground floor.
First Floor...
Dwellings one and two have been proposed as three-bedroom mews properties. Two of the bedrooms are to be equipped with an en suite, whilst a family bathroom services the third bedroom.
Dwelling number three is to be a five-bedroom mews, with three of the five bedrooms enjoying en suite facilities.
Parking
The barns will have ranch-style parking in the attached open-fronted hay barn. This offers two parking spaces each for dwellings one and two and three spaces for dwelling number three.
Planning Reference: 2023/1041/lbc
Please contact a member of our team and we will be happy to provide any further information required.
Viewing is strictly by appointment through Maria B Evans Estate Agents
We are reliably informed that the Tenure of the property is Freehold
The Local Authority is West Lancashire Borough Council
The property is served by septic tank
Please note:
Room measurements given in these property details are approximate and are supplied as a guide only.
All land measurements are supplied by the Vendor and should be verified by the buyer's solicitor. We
would advise that all services, appliances and heating facilities be confirmed in working order by an
appropriately registered service company or surveyor on behalf of the buyer as Maria B. Evans Estate
Agency cannot be held responsible for any faults found. No responsibility can be accepted for any
expenses incurred by prospective purchasers.
Sales Office: 34 Town Road, Croston, PR26 9RB T: Rentals T: W: E:
Company No 8160611 Registered Office: 5a The Common, Parbold, Lancs WN8 7HA



.png)