£1,500,000
Land for saleQuinta Drive, Barnet EN5
EPC Rating: F
Freehold
About this property
** development opportunity **land with planning approval!
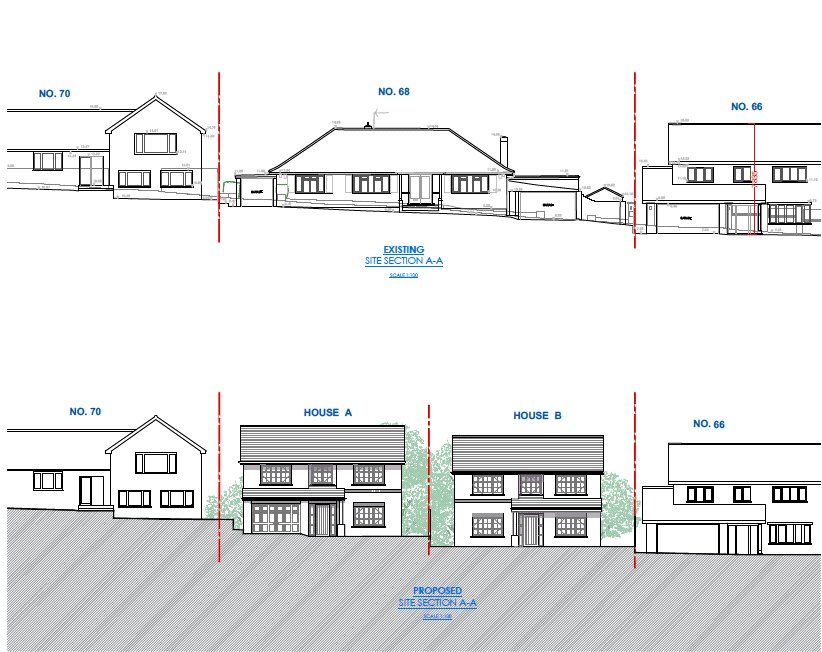
Full planning permission granted for the demolition of the existing dwelling and construction of 2 x four-bedroom, two-storey detached houses with private gardens, off-street parking, and refuse storage.
Planning Ref: 25/0841/ful -
There will be a cil liability of approx. £131,000.00
Martyn Gerrard`s New Homes team have advised of a gdv of £3,250,000-£3,500,000 once the properties have been built.
SItuated in the very desirable location of Arkely North London.
Arkley has always enjoyed a reputation as a highly desirable residential area, with a bustling town centre containing restaurants, shops and leisure spaces. Local amenities include the Spires Shopping Centre, Places of worship and Ravenscroft Lawn Tennis Club.
Transport links are excellent, with the A1, M1 and M25 being within a 5 minutes’ drive, and Stanstead and Luton Airports within a 30 minute drive.
Highly regarded schools such as Haberdashers’, Mill Hill, qe Boys, and Aldenham are all nearby, with many offering coach routes through Arkley.
Tenure : Freehold
A excellent opportunity for a developer or one wanting to build their dream homes.
Tenure: Freehold
Viewings are strictly by appointment only
Full planning permission granted for the demolition of the existing dwelling and construction of 2 x four-bedroom, two-storey detached houses with private gardens, off-street parking, and refuse storage.
Planning Ref: 25/0841/ful -
There will be a cil liability of approx. £131,000.00
Martyn Gerrard`s New Homes team have advised of a gdv of £3,250,000-£3,500,000 once the properties have been built.
SItuated in the very desirable location of Arkely North London.
Arkley has always enjoyed a reputation as a highly desirable residential area, with a bustling town centre containing restaurants, shops and leisure spaces. Local amenities include the Spires Shopping Centre, Places of worship and Ravenscroft Lawn Tennis Club.
Transport links are excellent, with the A1, M1 and M25 being within a 5 minutes’ drive, and Stanstead and Luton Airports within a 30 minute drive.
Highly regarded schools such as Haberdashers’, Mill Hill, qe Boys, and Aldenham are all nearby, with many offering coach routes through Arkley.
Tenure : Freehold
A excellent opportunity for a developer or one wanting to build their dream homes.
Tenure: Freehold
Viewings are strictly by appointment only
Mortgage calculator
Monthly repayment
£7,503 per month
Whole of market comparison
70+ lenders and 10,000+ products
The monthly repayments provided are estimates and should be used as a guide only. The actual amount you can borrow will depend on your personal financial situation and subject to a full application. For a more precise estimate, please use the Mojo mortgage calculator. Your home or property may be repossessed if you do not keep up repayments on your mortgage.



.png)