£343,000
2 bed terraced house for saleIvel Road, Shefford SG17
2 beds
1 bath
2 receptions
EPC Rating: D
Freehold
About this property
Two double bedrooms
Just a short stroll from Shefford High Street and local amenities
Short commute to Arlesey station providing a direct link to London
Highly regarded local schools
Private enclosed rear garden with side access
Separate Lounge & Dining Areas
This deceptively spacious extended 2 double bedroom cottage dating back to the 1850's is bursting with character and charm and benefits from a private enclosed garden. Just a short stroll to Shefford High Street with its amenities, highly regarded schooling & access to countryside walks
Dining/Family Room
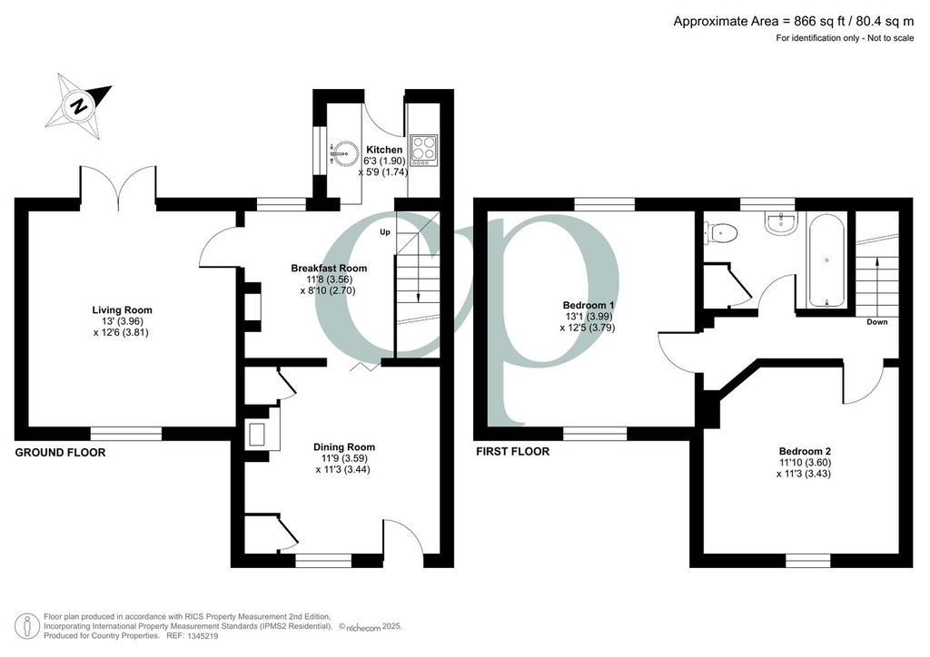
11' 9" x 11' 3" (3.58m x 3.43m) Enter into Dining/Family Room. Double glazed window to front. Radiator. Feature brick fireplace with Morso wood burning stove and alcove cupboards.
Folding door into Breakfast room.
Breakfast Room
11' 8" x 8' 10" (3.56m x 2.69m) Radiator. Double glazed window to rear. Ceramic tiled flooring. Base cupboards with wooden work surfaces over. Space for fridge/freezer. Brick built feature fireplace. Stairs rising to first floor. Door into lounge. Opening to Kitchen
Kitchen
6' 3" x 5' 9" (1.91m x 1.75m) Step down to a range of eye & base level units with wood effect work surfaces over. Stainless steel sink & drainer unit with mixer tap. Electric freestanding oven with gas hob & extractor fan. Space for washing machine. Glazed door to rear garden.
Lounge
13' 0" x 12' 6" (3.96m x 3.81m) Dual aspect double glazed window to front & rear. Radiator. French doors to rear garden.
Landing
Doors to all rooms. Loft hatch. Boiler located in loft.
Bedroom 1
13' 1" x 12' 5" (3.99m x 3.78m) Dual aspect double glazed window to front & rear. Radiator. Exposed floorboards.
Bedroom 2
11' 10" x 11' 3" (3.61m x 3.43m) Double glazed window to front. Radiator.
Family Bathroom
Double glazed window to side. Three piece suite comprising panel enclosed bath with shower over. WC. Wash hand basin with vanity under storage cupboard. Radiator.
Front Garden
Wrought iron gate & pathway leading to front door. Late borders with various hedges & shrubs. Further Area to side for bin storage.
Rear Garden
Private enclosed garden with paved patio area. Gate providing access to front. Various shrubs, apple tree and vines. Decked area.
Agents Note
The vendor informs us they have pedestrian access over the driveway to the left of the property to access their rear garden.
We advise any buyer to confirm this information with their legal representative prior to exchange of contracts.
For all your mortgage needs contact Dawn Olney at Mortgage Vision on or email:
Preliminary details - not yet approved and maybe subject to changes
Dining/Family Room
11' 9" x 11' 3" (3.58m x 3.43m) Enter into Dining/Family Room. Double glazed window to front. Radiator. Feature brick fireplace with Morso wood burning stove and alcove cupboards.
Folding door into Breakfast room.
Breakfast Room
11' 8" x 8' 10" (3.56m x 2.69m) Radiator. Double glazed window to rear. Ceramic tiled flooring. Base cupboards with wooden work surfaces over. Space for fridge/freezer. Brick built feature fireplace. Stairs rising to first floor. Door into lounge. Opening to Kitchen
Kitchen
6' 3" x 5' 9" (1.91m x 1.75m) Step down to a range of eye & base level units with wood effect work surfaces over. Stainless steel sink & drainer unit with mixer tap. Electric freestanding oven with gas hob & extractor fan. Space for washing machine. Glazed door to rear garden.
Lounge
13' 0" x 12' 6" (3.96m x 3.81m) Dual aspect double glazed window to front & rear. Radiator. French doors to rear garden.
Landing
Doors to all rooms. Loft hatch. Boiler located in loft.
Bedroom 1
13' 1" x 12' 5" (3.99m x 3.78m) Dual aspect double glazed window to front & rear. Radiator. Exposed floorboards.
Bedroom 2
11' 10" x 11' 3" (3.61m x 3.43m) Double glazed window to front. Radiator.
Family Bathroom
Double glazed window to side. Three piece suite comprising panel enclosed bath with shower over. WC. Wash hand basin with vanity under storage cupboard. Radiator.
Front Garden
Wrought iron gate & pathway leading to front door. Late borders with various hedges & shrubs. Further Area to side for bin storage.
Rear Garden
Private enclosed garden with paved patio area. Gate providing access to front. Various shrubs, apple tree and vines. Decked area.
Agents Note
The vendor informs us they have pedestrian access over the driveway to the left of the property to access their rear garden.
We advise any buyer to confirm this information with their legal representative prior to exchange of contracts.
For all your mortgage needs contact Dawn Olney at Mortgage Vision on or email:
Preliminary details - not yet approved and maybe subject to changes



.png)