Guide price
£230,000
4 bed detached house for saleSaughall Road, Chester, Cheshire CH1
4 beds
3 baths
2 receptions
EPC Rating: D
Auction
Freehold
About this property
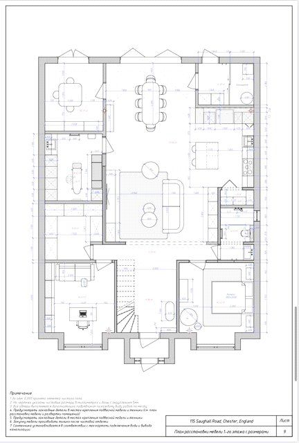
Impressive development opportunity
Planning approved and drawing done
Steel beems and upstairs structure complete
To be up to A 6 bed house
Large garden
Spacious building at the bottom of the garden
£120k budgeted to finish and expected to achieve approx £550k as A luxuary home
A Rare Development Opportunity. Please take a look at the architect drawings for the approved development to turn what was a small bungalow into a 5/6 bedroom luxury house on a large plot without building at the bottom of the garden.
A fantastic opportunity to acquire this detached home development opportunity with full planning permission granted to transform the property into a substantial five/six-bedroom family home.
The property is currently mid-construction, making it the perfect project for developers, investors, or buyers seeking to create their dream home close to Chester city centre.
• Two-bedroom detached bungalow with steel beams added to create the upstairs construction
• Full planning permission and architectural drawings completed
• Permission approved for a spacious 5/6-bedroom detached home
• Excellent location close to Chester city centre and local amenities
• Ideal self-build or investment opportunity
Location
Situated on Saughall Road in the popular residential area of Blacon, the property benefits from excellent local facilities including schools, shops, supermarkets, healthcare centres, and leisure amenities. The area also offers convenient public transport links and easy access to Chester city centre, the Chester Business Park, and major road networks including the M53 and M56, making it well placed for commuters to Liverpool, Manchester, and North Wales.
Blacon is known for its strong community feel, plentiful green spaces, and proximity to the River Dee and Chester’s historic city walls, offering the best of both suburban living and city convenience.
This property is offered through Modern Method of Auction. Should you view, offer or bid your data will be shared with the Auctioneer, iamsold Limited. This method requires both parties to complete the transaction within 56 days, allowing buyers to proceed with mortgage finance (subject to lending criteria, affordability and survey). The buyer is required to sign a reservation agreement and make payment of a non-refundable Reservation Fee of 4.5% of the purchase price including VAT, subject to a minimum of £6,600.00 including VAT. This fee is paid in addition to purchase price and will be considered as part of the chargeable consideration for the property in the calculation for stamp duty liability. Buyers will be required to complete an identification process with iamsold and provide proof of how the purchase would be funded. The property has a Buyer Information Pack containing documents about the property. The documents may not tell you everything you need to know, so you must complete your own due diligence before bidding. A sample of the Reservation Agreement and terms and conditions are contained within this pack. The buyer will also make payment of £300 inc. VAT towards the preparation cost of the pack. The estate agent and auctioneer may recommend the services of other providers to you, in which they will be paid for the referral. These services are optional, and you will be advised of any payment, in writing before any services are accepted. Listing is subject to a start price and undisclosed reserve price that can change.
A fantastic opportunity to acquire this detached home development opportunity with full planning permission granted to transform the property into a substantial five/six-bedroom family home.
The property is currently mid-construction, making it the perfect project for developers, investors, or buyers seeking to create their dream home close to Chester city centre.
• Two-bedroom detached bungalow with steel beams added to create the upstairs construction
• Full planning permission and architectural drawings completed
• Permission approved for a spacious 5/6-bedroom detached home
• Excellent location close to Chester city centre and local amenities
• Ideal self-build or investment opportunity
Location
Situated on Saughall Road in the popular residential area of Blacon, the property benefits from excellent local facilities including schools, shops, supermarkets, healthcare centres, and leisure amenities. The area also offers convenient public transport links and easy access to Chester city centre, the Chester Business Park, and major road networks including the M53 and M56, making it well placed for commuters to Liverpool, Manchester, and North Wales.
Blacon is known for its strong community feel, plentiful green spaces, and proximity to the River Dee and Chester’s historic city walls, offering the best of both suburban living and city convenience.
This property is offered through Modern Method of Auction. Should you view, offer or bid your data will be shared with the Auctioneer, iamsold Limited. This method requires both parties to complete the transaction within 56 days, allowing buyers to proceed with mortgage finance (subject to lending criteria, affordability and survey). The buyer is required to sign a reservation agreement and make payment of a non-refundable Reservation Fee of 4.5% of the purchase price including VAT, subject to a minimum of £6,600.00 including VAT. This fee is paid in addition to purchase price and will be considered as part of the chargeable consideration for the property in the calculation for stamp duty liability. Buyers will be required to complete an identification process with iamsold and provide proof of how the purchase would be funded. The property has a Buyer Information Pack containing documents about the property. The documents may not tell you everything you need to know, so you must complete your own due diligence before bidding. A sample of the Reservation Agreement and terms and conditions are contained within this pack. The buyer will also make payment of £300 inc. VAT towards the preparation cost of the pack. The estate agent and auctioneer may recommend the services of other providers to you, in which they will be paid for the referral. These services are optional, and you will be advised of any payment, in writing before any services are accepted. Listing is subject to a start price and undisclosed reserve price that can change.
Mortgage calculator
Monthly repayment
£1,150 per month
Whole of market comparison
70+ lenders and 10,000+ products
The monthly repayments provided are estimates and should be used as a guide only. The actual amount you can borrow will depend on your personal financial situation and subject to a full application. For a more precise estimate, please use the Mojo mortgage calculator. Your home or property may be repossessed if you do not keep up repayments on your mortgage.



.png)