Offers in region of
£300,000
Property for saleTop Street, East Drayton, Retford DN22
About this property
**no upward chain**
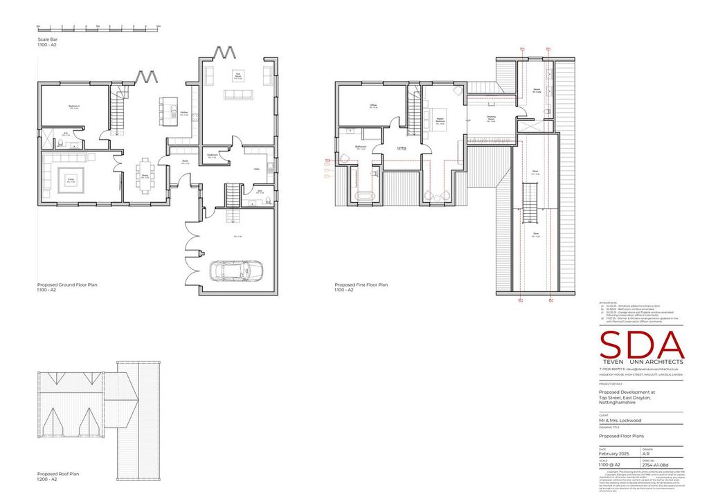
• Generous Building Plot with Full Planning Permission for two/ three bedroom Detached Dorma Bungalow
Planning ref: 25/00247/ful
Potential to Split the Land into Two Building Plots
Located in the Highly Regarded Village of East Drayton
Easy Access to Retford via Retford Road
Please Call the Office Today for Further Information, or to Arrange a Viewing
Council Tax Band: Tbc EPC Rating: Exempt
Please call the office today for further information, or to arrange a viewing.
Tenure & Charges:
Tenure: Freehold- Vacant possession will be given upon completion.
Local Authority: Bassetlaw District Council
General:
While we endeavour to make our sales particulars fair, accurate and reliable, they are only a general guide to the property and, accordingly, if there is any point which is of particular importance to you, please contact the office of Alexander Jacob Limited and we will be pleased to check the position for you, especially if you are contemplating travelling some distance to view the property.
Measurements:
These approximate room sizes are only intended as general guidance. You must verify the dimensions carefully before ordering carpets or any built-in furniture.
Services:
Please note we have not tested the services or any of the equipment or appliances in this property, accordingly we strongly advise prospective buyers to commission their own survey or service reports before finalising their offer to purchase.
Money Laundering Regulations:
Intending purchasers will be asked to produce identification documentation at a later stage and we would ask for your co-operation in order that there will be no delay in agreeing the sale.
Particulars:
These particulars are issued in good faith but do not constitute representations of fact or form part of any offer or contract. The matters referred to in these particulars should be independently verified by prospective buyers or tenants. Neither Alexander Jacob limited nor any of its employees or agents has any authority to make or give any representation or warranty whatever in relation to this property.
Mortgage calculator
£1,500 per month
70+ lenders and 10,000+ products
The monthly repayments provided are estimates and should be used as a guide only. The actual amount you can borrow will depend on your personal financial situation and subject to a full application. For a more precise estimate, please use the Mojo mortgage calculator. Your home or property may be repossessed if you do not keep up repayments on your mortgage.



.png)