Guide price
£650,000
Property for saleMarsh Road, Tenby SA70
About this property
Fantastic Opportunity To Purchase Luxury New Build Detached House
Architect Designed
Four Bedrooms Five Bathrooms
South Facing Glass Fronted Balcony & Veranda
Spacious Open Plan Living Space
Detached Studio Ideal For Home Office
Electric Gated Entrance. Landscaped Gardens
EER - tbc
The property A fantastic opportunity to acquire a unique architect designed four Bedroom, five Bathroom detached house in the convenient and popular location of the Marsh Road Tenby. This property is to be purchased off plan and will enable the purchaser to be interactive in the design of many aspects of the interior, such as a large spacious open plan Lounge/Kitchen/Dining Room, four En-Suite Bathrooms and a further Shower Room on the Ground Floor. *There are generous allowances for choice of Kitchen, Bathrooms, tiling and flooring. The property will benefit from gas fired under floor heating throughout. The house will be approached over a brick paved driveway providing ample off road parking with electric entry gates, and a landscaped garden with the added benefit of a detached two storey Studio which offers a versatile space perfect for a home office, games room or playroom. The property is ideally located about three quarters of a mile from the town centre, beautiful beaches and harbour. Schools of all levels and the leisure centre are close by.
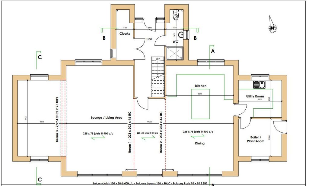
Entrance hall Enter through uPVC door to rear with windows each side into Hall. Stairs to first floor. Door to Open Plan Lounge/Kitchen/Dining Room. Door to Shower Room. Double doors to large built in closet with window to side.
Shower room 11' 1" x 37' 8" (3.4m x 11.5m) Frosted window to side. *To be furnished with modern matching suite comprising WC, wash hand basin and shower.
Open plan lounge/kitchen/dining room 47' 6" x 22' 11" (14.5m x 7m) Generous open plan living space. Double aspect with large windows to front and rear and glazed doors to front, giving access to the south facing veranda and allowing lots of natural light to flood the room.
Lounge area Windows to front and rear. Tri fold and bi fold glazed doors to front leading to south facing veranda.
Kitchen/dining area *To be fitted with a range of modern wall and base units with matching worktop and island, and high specification integrated appliances. Ample space for large family dining suite. Door to Utility Room. Window to rear. Tri fold glazed doors to front.
Utilty room 9' 6" x 8' 2" (2.9m x 2.5m) Window to rear. *To be fitted with a range of wall and base units with matching worktop with space and connection for washing machine and tumble drier. Inset sink and drainer. Door to Boiler/Plant Room.
Boiler/plant room 9' 6" x 8' 2" (2.9m x 2.5m) Window to rear. UPVC door to side. Housing gas fired boiler and hot water system.
First floor landing Doors to all rooms.
Master bedroom 14' 9" x 13' 5" (4.5m x 4.1m) Tri fold doors to front giving access to Balcony. Door to En Suite Shower Room.
En suite shower room Frosted window to front. *To be furnished with modern matching suite comprising WC, wash hand basin and shower.
Bedroom 2 14' 9" x 12' 3" (4.5m x 3.75m) Tri fold doors to front giving access to balcony. Door to En Suite Shower Room.
En suite shower room Frosted window to front. *To be furnished with modern matching suite comprising WC, wash hand basin and shower.
Balcony South facing balcony with glass balustrades running the whole length of the front of the house, accessed from the Master Bedroom and Bedroom 2.
Bedroom 3 14' 9" x 9' 6" (4.5m x 2.9m) Window to rear. Door to En Suite Bathroom.
En suite bathroom 11' 1" x 7' 2" (3.4m x 2.2m) Frosted windows to rear and side. *To be furnished with matching modern suite comprising WC, wash hand basin, bath and separate shower.
Bedroom 4 11' 1" x 7' 2" (3.4m x 2.2m) Window to rear. Door to En Suite Bathroom.
En suite bathroom Frosted windows to rear and side. *To be furnished with matching modern suite comprising WC, wash hand basin, bath and separate shower.
Externally The property is approached from the front over a brick paved driveway which will provide off road parking for three cars. The front and rear gardens will be landscaped and enclosed with rendered walls, offering views overs towards Caldey Island and the lighthouse.
Studio There is also the added benefit of a detached two storey Studio which offers a versatile space ideal for a Home Office, Playroom or Games Room.
Directions From our office proceed to the top of Upper Frog Street and turn left. At the crossroads turn right and continue down Greenhill Road to the mini roundabouts. Proceed straight across into Marsh Road and follow the road for a short distance. The entrance to the property will be found on the right hand side just after Greenhill School, as indicated by our For Sale board.
Entrance hall Enter through uPVC door to rear with windows each side into Hall. Stairs to first floor. Door to Open Plan Lounge/Kitchen/Dining Room. Door to Shower Room. Double doors to large built in closet with window to side.
Shower room 11' 1" x 37' 8" (3.4m x 11.5m) Frosted window to side. *To be furnished with modern matching suite comprising WC, wash hand basin and shower.
Open plan lounge/kitchen/dining room 47' 6" x 22' 11" (14.5m x 7m) Generous open plan living space. Double aspect with large windows to front and rear and glazed doors to front, giving access to the south facing veranda and allowing lots of natural light to flood the room.
Lounge area Windows to front and rear. Tri fold and bi fold glazed doors to front leading to south facing veranda.
Kitchen/dining area *To be fitted with a range of modern wall and base units with matching worktop and island, and high specification integrated appliances. Ample space for large family dining suite. Door to Utility Room. Window to rear. Tri fold glazed doors to front.
Utilty room 9' 6" x 8' 2" (2.9m x 2.5m) Window to rear. *To be fitted with a range of wall and base units with matching worktop with space and connection for washing machine and tumble drier. Inset sink and drainer. Door to Boiler/Plant Room.
Boiler/plant room 9' 6" x 8' 2" (2.9m x 2.5m) Window to rear. UPVC door to side. Housing gas fired boiler and hot water system.
First floor landing Doors to all rooms.
Master bedroom 14' 9" x 13' 5" (4.5m x 4.1m) Tri fold doors to front giving access to Balcony. Door to En Suite Shower Room.
En suite shower room Frosted window to front. *To be furnished with modern matching suite comprising WC, wash hand basin and shower.
Bedroom 2 14' 9" x 12' 3" (4.5m x 3.75m) Tri fold doors to front giving access to balcony. Door to En Suite Shower Room.
En suite shower room Frosted window to front. *To be furnished with modern matching suite comprising WC, wash hand basin and shower.
Balcony South facing balcony with glass balustrades running the whole length of the front of the house, accessed from the Master Bedroom and Bedroom 2.
Bedroom 3 14' 9" x 9' 6" (4.5m x 2.9m) Window to rear. Door to En Suite Bathroom.
En suite bathroom 11' 1" x 7' 2" (3.4m x 2.2m) Frosted windows to rear and side. *To be furnished with matching modern suite comprising WC, wash hand basin, bath and separate shower.
Bedroom 4 11' 1" x 7' 2" (3.4m x 2.2m) Window to rear. Door to En Suite Bathroom.
En suite bathroom Frosted windows to rear and side. *To be furnished with matching modern suite comprising WC, wash hand basin, bath and separate shower.
Externally The property is approached from the front over a brick paved driveway which will provide off road parking for three cars. The front and rear gardens will be landscaped and enclosed with rendered walls, offering views overs towards Caldey Island and the lighthouse.
Studio There is also the added benefit of a detached two storey Studio which offers a versatile space ideal for a Home Office, Playroom or Games Room.
Directions From our office proceed to the top of Upper Frog Street and turn left. At the crossroads turn right and continue down Greenhill Road to the mini roundabouts. Proceed straight across into Marsh Road and follow the road for a short distance. The entrance to the property will be found on the right hand side just after Greenhill School, as indicated by our For Sale board.
More information
Tenure
Council tax band
Council tax band not yet known
Ground rent
£0



.png)