Guide price
£600,000
3 bed semi-detached house for saleHeath Road, Locks Heath, Southampton SO31
3 beds
1 bath
3 receptions
About this property
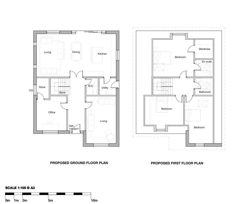
An exceptional character cottage
With current planning consent to custom build a detached family home exteding to in excess of 2000 sq ft
Lounge, dining room and conservatory
Contemporary kitchen and separate utility room
Three bedroom and modern family bathroom
Off road parking for two/ three vehicles
Highly regarded road within close proximity to the Locks Heath Centre
Also wirhin walking distance of the local schools
The charm of the existing cottage is immediately apparent, greeting you with a warm and welcoming façade. The accommodation inside is thoughtfully laid out for versatile family living. The hub of the home is a sleek, contemporary kitchen, cleverly designed to maximise both storage and workspace, ideal for the keen home cook or busy family routines. An adjoining utility area and a downstairs WC enhance everyday convenience. Upstairs, the property offers three bedrooms alongside a stylish family bathroom, all finished with an eye for comfort and practicality.
Outside, the generous garden not only creates a safe space for play and leisure, but also serves as the foundation for your grand design aspirations, given the approved planning permission at the rear. There is ample space for outdoor entertaining and family activities, framed by established borders and providing a sense of privacy.
Opportunities to acquire such a versatile property, with scope to further enhance and develop, are exceptionally rare.
Disclaimer
Successful buyers will be required to complete online identity checks provided by Lifetime Legal. The cost of these checks is £65 inc. VAT per property and is paid in advance, directly to Lifetime Legal. This charge verifies your identity in line with our obligations as agreed with hmrc and includes mover protection insurance to protect against the cost of an abortive purchase.
Sellers: Upon receipt of instructions to act in the selling of your home, under Anti Money Laundering Regulations (2017) we are required by law to conduct Anti Money Laundering Checks. There is a charge of £65 inc VAT per property.
Mortgage calculator
£3,001 per month
70+ lenders and 10,000+ products
The monthly repayments provided are estimates and should be used as a guide only. The actual amount you can borrow will depend on your personal financial situation and subject to a full application. For a more precise estimate, please use the Mojo mortgage calculator. Your home or property may be repossessed if you do not keep up repayments on your mortgage.



.png)