Guide price
£90,000
4 bed terraced house for saleLockwood Scar, Huddersfield HD4
4 beds
1 bath
1 reception
Chain free
Auction
Leasehold
About this property
Sale by Modern Auction (T&Cs apply)
Subject to an undisclosed Reserve Price
Buyers fees apply
Granted planning permission in place
Cash investors only
Prime student location
Grade II listed building
Fabulously sized throughout
Summary
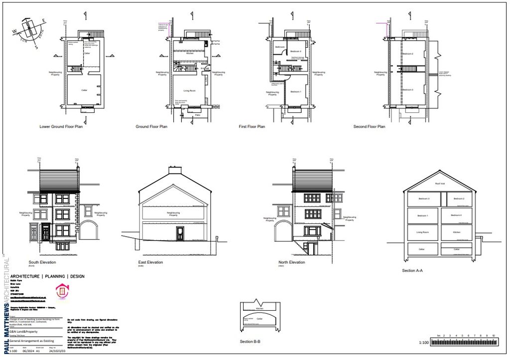
A renovation project with great potential, this grade II listed property has full planning permission granted for an apartment and a 3 bedroom HMO. A great opportunity for investors to complete a project in a prime location for students and professionals, offered chain free to cash purchasers only.
Description
With huge scope for renovation, this grade II listed property has already has planning permission granted to convert it into an apartment with a three bedroom HMO, making this the ideal project for those looking for their next investment, with scope for good rental returns. With accommodation over three floors plus the lower-ground floor with it's own access via the rear of the property, providing ample space and endless options for conversion. Currently comprising of an entrance into a hallway, with a reception room to the front of the property and a reception room at the rear with access into the cellar. To the first floor, there are two further rooms and a bathroom. On the second floor, there are two spacious rooms. Externally, the property has a plot of garden to the front, and a larger plot to the rear, enclosed with a wall.
Auctioneer's Comments
This property is offered through Modern Method of Auction. Should you view, offer or bid your data will be shared with the Auctioneer, iamsold Limited. This method requires both parties to complete the transaction within 56 days, allowing buyers to proceed with mortgage finance (subject to lending criteria, affordability and survey). The buyer is required to sign a reservation agreement and make payment of a non-refundable Reservation Fee of 4.5% of the purchase price including VAT, subject to a minimum of £6600.00 including VAT. This fee is paid in addition to purchase price and will be considered as part of the chargeable consideration for the property in the calculation for stamp duty liability. Buyers will be required to complete an identification process with iamsold and provide proof of how the purchase would be funded. The property has a Buyer Information Pack containing documents about the property. The documents may not tell you everything you need to know, so you must complete your own due diligence before bidding. A sample of the Reservation Agreement and terms and conditions are contained within this pack. The buyer will also make payment of no more than £349 inc. VAT towards the preparation cost of the pack. Please confirm exact costs with the auctioneer. The estate agent and auctioneer may recommend the services of other providers to you, in which they will be paid for the referral. These services are optional, and you will be advised of any payment, in writing before any services are accepted. Listing is subject to a start price and undisclosed reserve price that can change.
Entrance Hallway
Entrance hallway with access from the side of the property providing access into reception room one and reception room two.
Living Room
Wtih single glazed sash windows overlooking the front and an original feature fireplace.
Kitchen
A second reception room with single glazed sash windows overlooking the rear of the property and providing access into the cellar.
Bedroom 1
Bedroom 2
A sizeable second bedroom with single glazed sash windows overlooking the rear.
Bathroom
The house bathroom with plumbing for the bathroom suite and a single glazed sash window overlooking the rear.
Bedroom 3
A generously sized third bedroom to the second floor of the property with single glazed sash windows overlooking the rear of the property.
Bedroom 4
A further large double bedroom on the second floor of the property with single glazed sash windows overlooking the front of the property.
Lease details are currently being compiled. For further information please contact the branch. Please note additional fees could be incurred for items such as leasehold packs.
1. Money laundering regulations: Intending purchasers will be asked to produce identification documentation at a later stage and we would ask for your co-operation in order that there will be no delay in agreeing the sale.
2. General: While we endeavour to make our sales particulars fair, accurate and reliable, they are only a general guide to the property and, accordingly, if there is any point which is of particular importance to you, please contact the office and we will be pleased to check the position for you, especially if you are contemplating travelling some distance to view the property.
3. The measurements indicated are supplied for guidance only and as such must be considered incorrect.
4. Services: Please note we have not tested the services or any of the equipment or appliances in this property, accordingly we strongly advise prospective buyers to commission their own survey or service reports before finalising their offer to purchase.
5. These particulars are issued in good faith but do not constitute representations of fact or form part of any offer or contract. The matters referred to in these particulars should be independently verified by prospective buyers or tenants. Neither sequence (UK) limited nor any of its employees or agents has any authority to make or give any representation or warranty whatever in relation to this property.
A renovation project with great potential, this grade II listed property has full planning permission granted for an apartment and a 3 bedroom HMO. A great opportunity for investors to complete a project in a prime location for students and professionals, offered chain free to cash purchasers only.
Description
With huge scope for renovation, this grade II listed property has already has planning permission granted to convert it into an apartment with a three bedroom HMO, making this the ideal project for those looking for their next investment, with scope for good rental returns. With accommodation over three floors plus the lower-ground floor with it's own access via the rear of the property, providing ample space and endless options for conversion. Currently comprising of an entrance into a hallway, with a reception room to the front of the property and a reception room at the rear with access into the cellar. To the first floor, there are two further rooms and a bathroom. On the second floor, there are two spacious rooms. Externally, the property has a plot of garden to the front, and a larger plot to the rear, enclosed with a wall.
Auctioneer's Comments
This property is offered through Modern Method of Auction. Should you view, offer or bid your data will be shared with the Auctioneer, iamsold Limited. This method requires both parties to complete the transaction within 56 days, allowing buyers to proceed with mortgage finance (subject to lending criteria, affordability and survey). The buyer is required to sign a reservation agreement and make payment of a non-refundable Reservation Fee of 4.5% of the purchase price including VAT, subject to a minimum of £6600.00 including VAT. This fee is paid in addition to purchase price and will be considered as part of the chargeable consideration for the property in the calculation for stamp duty liability. Buyers will be required to complete an identification process with iamsold and provide proof of how the purchase would be funded. The property has a Buyer Information Pack containing documents about the property. The documents may not tell you everything you need to know, so you must complete your own due diligence before bidding. A sample of the Reservation Agreement and terms and conditions are contained within this pack. The buyer will also make payment of no more than £349 inc. VAT towards the preparation cost of the pack. Please confirm exact costs with the auctioneer. The estate agent and auctioneer may recommend the services of other providers to you, in which they will be paid for the referral. These services are optional, and you will be advised of any payment, in writing before any services are accepted. Listing is subject to a start price and undisclosed reserve price that can change.
Entrance Hallway
Entrance hallway with access from the side of the property providing access into reception room one and reception room two.
Living Room
Wtih single glazed sash windows overlooking the front and an original feature fireplace.
Kitchen
A second reception room with single glazed sash windows overlooking the rear of the property and providing access into the cellar.
Bedroom 1
Bedroom 2
A sizeable second bedroom with single glazed sash windows overlooking the rear.
Bathroom
The house bathroom with plumbing for the bathroom suite and a single glazed sash window overlooking the rear.
Bedroom 3
A generously sized third bedroom to the second floor of the property with single glazed sash windows overlooking the rear of the property.
Bedroom 4
A further large double bedroom on the second floor of the property with single glazed sash windows overlooking the front of the property.
Lease details are currently being compiled. For further information please contact the branch. Please note additional fees could be incurred for items such as leasehold packs.
1. Money laundering regulations: Intending purchasers will be asked to produce identification documentation at a later stage and we would ask for your co-operation in order that there will be no delay in agreeing the sale.
2. General: While we endeavour to make our sales particulars fair, accurate and reliable, they are only a general guide to the property and, accordingly, if there is any point which is of particular importance to you, please contact the office and we will be pleased to check the position for you, especially if you are contemplating travelling some distance to view the property.
3. The measurements indicated are supplied for guidance only and as such must be considered incorrect.
4. Services: Please note we have not tested the services or any of the equipment or appliances in this property, accordingly we strongly advise prospective buyers to commission their own survey or service reports before finalising their offer to purchase.
5. These particulars are issued in good faith but do not constitute representations of fact or form part of any offer or contract. The matters referred to in these particulars should be independently verified by prospective buyers or tenants. Neither sequence (UK) limited nor any of its employees or agents has any authority to make or give any representation or warranty whatever in relation to this property.
More information
Tenure
Leasehold (896 years)
Service charge
Council tax band
A
Ground rent
£0
Ground rent date of next review



.png)