Guide price
£100,000
Land for saleSt. Gregorys Avenue, Salisbury, Wiltshire SP2
Freehold
About this property
A development opportunity for the construction of a small dwelling on the site of a double garage and driveway.
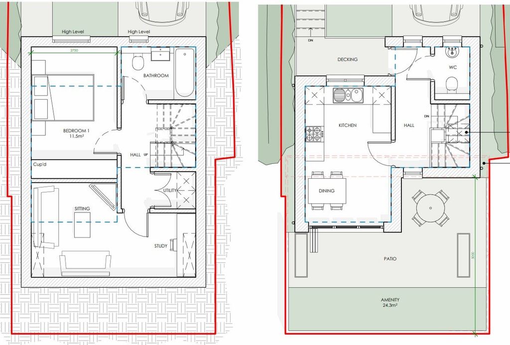
Offered to the market is an opportunity to buy a building plot measuring approximately 95 Sq Meters in size with planning permission for a detached one bedroom property in the popular residential area of St Gregory Avenue. Planning number: Pl/2024/07673
On site there is currently a double garage with a drive in front.
- Building Plot
- Approximately 95 Sq meter plot
- Planning Permission for a detached 1 bedroom property
- Small garden
- Driveway parking
The property is conveniently situated on the western edge of the City where there are a number of local facilities including, a regular bus service into the City Centre and to the Salisbury District Hospital. There is schooling, nearby, convenience stores, and a variety of shops along Wilton Road. Salisbury has an excellent range of educational, recreational, leisure and shopping facilities which combine with a twice weekly market in addition to a mainline railway station (Waterloo).
Offered to the market is an opportunity to buy a building plot measuring approximately 95 Sq Meters in size with planning permission for a detached one bedroom property in the popular residential area of St Gregory Avenue. Planning number: Pl/2024/07673
On site there is currently a double garage with a drive in front.
- Building Plot
- Approximately 95 Sq meter plot
- Planning Permission for a detached 1 bedroom property
- Small garden
- Driveway parking
The property is conveniently situated on the western edge of the City where there are a number of local facilities including, a regular bus service into the City Centre and to the Salisbury District Hospital. There is schooling, nearby, convenience stores, and a variety of shops along Wilton Road. Salisbury has an excellent range of educational, recreational, leisure and shopping facilities which combine with a twice weekly market in addition to a mainline railway station (Waterloo).
Mortgage calculator
Monthly repayment
£500 per month
Whole of market comparison
70+ lenders and 10,000+ products
The monthly repayments provided are estimates and should be used as a guide only. The actual amount you can borrow will depend on your personal financial situation and subject to a full application. For a more precise estimate, please use the Mojo mortgage calculator. Your home or property may be repossessed if you do not keep up repayments on your mortgage.



.png)